City Pearl

Eladó téglalakás
Győr, 1. emelet

+ 1 kép 1/4
56 070 000 Ft56.07 M Ft 1 121 400 Ft/m2
2 szoba
50 m2
1. emelet
építés éve:2025

Részletes adatok

Fűtés: Egyéb
Közmű: Víz, Villany, Csatorna
Energetikai besorolás: Nem adta meg a hirdető

Az OTP Bank lakáshitel ajánlataFizetett hirdetés

+36 70 904
Balogh Martin
referens

Érdekel az OTP Bank kedvezményes lakáshitel ajánlata? *

* A kérdésre „Igen” válasz bejelölése esetén, az „Üzenet küldése” gombra kattintva kijelentem, hogy az OTP Bank Nyrt. Adatkezelési tájékoztatójának tartalmát megismertem és tudomásul vettem.

Eladó téglalakás leírása

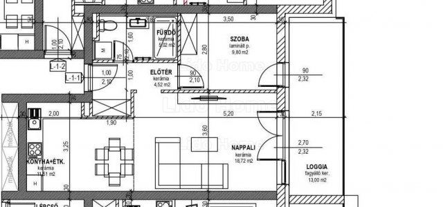
Lido Home győri irodája eladásra kínál egy ÚJ ÉPITÉSŰ lakóparkban ENERGIATAKARÉKOS lakásokat Győr-Szitásdomb lakóparkban! Az ingatlan közigazgatásilag Vámosszabadihoz tartozik, de fizikailag Győrhöz szervesen kapcsolódva helyezkedik el a Szitásdomb lakóparkban. A 35 lakásos, modern épület kivitelezése már zajlik, az átadás 2026 őszre várható! A kínálatban különböző méretű, nappali + 1 hálószobás vagy nappali + 2 hálószobás lakások szerepelnek, amelyek mindegyike tágas erkéllyel és praktikus elosztással rendelkezik. Az otthonok világosak, jól szigeteltek, így alacsony rezsiköltséggel fenntarthatók. Lakásadatok: 1. emelet L1 -Nettó alapterület: 49,57 m² -Erkély: 13 m² -Elosztás: amerikai konyhás nappali, hálószoba, fürdőszoba, erkély További lehetőségek: -1 db udvari parkolóhely vásárlása kiélező Ára: 1,7M -Zárható tárolók 1,5–2,5 m² méretben, 1,58–2,45 millió Ft között Műszaki tartalom: -Teherhordó szerkezet: 30 cm Porotherm tégla -Hanggátló falazat: Leier hangszigetelt téglák -Homlokzati hőszigetelés: 15 cm vastag Austrotherm grafitos rendszer -Nyílászárók: VEKA háromrétegű, 5 légkamrás ablakok -Fűtés-hűtés: központi levegő-víz hőszivattyú, egyedi hőmennyiségmérő -Padló- és mennyezetfűtés minden lakásban -Fürdő: padlófűtéssel ellátva Az árak emeltszintű fűtéskész állapotra vonatkoznak, de lehetőség van kulcsrakész átadásra is – igény szerint, rövid határidővel. Ez a projekt tökéletes választás mindazoknak, akik minőségi, modern otthont keresnek Győr közelében, csendes, zöld környezetben, de mégis pár percre a városi élettől. Ideális választás saját otthonnak vagy értékálló befektetésnek is! Érdeklődj még ma, és foglald le új otthonod, amíg a legjobb lakások elérhetők! Amennyiben a Lido Home által kínált lakás vagy bármely, a kínálatunkban található ingatlan felkeltette érdeklődését, hívjon a megadott telefonszámon! Vásárolna, de nincs rá keret? Kollégám díjmentes, banksemleges hitelügyintézéssel áll rendelkezésére. Lido Home - Ingatlanok egy életen át!

Hirdetés feltöltve: 2025. 12. 05. Utoljára módosítva: 2025. 12. 14.

2 szobás téglalakások ára Győrött

Ebből az összehasonlításból megtudhatod, hogyan viszonyul a lakás ára a környékbeli téglalakások átlagos árához. Ez nem azt jelenti, hogy ennyivel olcsóbb vagy drágább, mint amennyit a lakás ér, hanem hogy ennyivel tér el a környékbeli átlagtól.

Ennek a m² ára
Győr m² ár
1121 e Ft
940 e Ft -19%
Ennek az ára
Győr átlagár
56.07 M Ft m Ft
152 m Ft 63%

Az ingatlan elhelyezkedése

Cím: Győr, 1. emelet

Eladó téglalakások a környékről

Eladó téglalakás
Eladó téglalakás

Győr

60.282 M Ft
3 szoba
59 m2
Eladó téglalakás
Eladó téglalakás

Győr

54.99 M Ft
3 szoba
64 m2
Eladó téglalakás
Eladó téglalakás

Sopron

96.9 M Ft
3 szoba
72 m2
Eladó téglalakás
Eladó téglalakás

Győr

48.99 M Ft
3 szoba
57 m2
Eladó téglalakás
Eladó téglalakás

Sopron

95.7 M Ft
3 szoba
87 m2
Eladó téglalakás
Eladó téglalakás

Győr

95 M Ft
4 szoba
94 m2
Eladó téglalakás
Eladó téglalakás

Nagycenk

63.9 M Ft
1 + 2 szoba
62 m2
Eladó téglalakás
Eladó téglalakás

Győr

98.745 M Ft
4 szoba
98 m2
Eladó téglalakás
Eladó téglalakás

Győr

71.978 M Ft
3 szoba
71 m2
Eladó téglalakás
Eladó téglalakás

Győr

57.99 M Ft
3 szoba
57 m2
Eladó téglalakás
Eladó téglalakás

Győr

199.99 M Ft
3 + 1 szoba
160 m2
Eladó téglalakás
Eladó téglalakás

Győr

38.99 M Ft
2 szoba
43 m2
Eladó téglalakás
Eladó téglalakás

Győr

38.99 M Ft
2 szoba
43 m2
Eladó téglalakás
Eladó téglalakás

Győr

56.447 M Ft
2 szoba
56 m2
Eladó téglalakás
Eladó téglalakás

Győr

98.5 M Ft
3 szoba
96 m2
Eladó téglalakás
Eladó téglalakás

Sopron

54.99 M Ft
1 + 1 szoba
55 m2
Eladó téglalakás
Eladó téglalakás

Sopron

77 M Ft
4 szoba
143 m2
Eladó téglalakás
Eladó téglalakás

Sopron

105.99 M Ft
5 szoba
122 m2
Eladó téglalakás
Eladó téglalakás

Győr

115.875 M Ft
4 szoba
115 m2
Eladó téglalakás
Eladó téglalakás

Mosonmagyaróvár

31.9 M Ft
2 + 1 szoba
59 m2
Eladó téglalakás
Eladó téglalakás

Győr

48.99 M Ft
3 szoba
57 m2
Eladó téglalakás
Eladó téglalakás

Győr

55.844 M Ft
2 szoba
55 m2
Eladó téglalakás
Eladó téglalakás

Győr

199.99 M Ft
3 + 1 szoba
160 m2
Eladó téglalakás
Eladó téglalakás

Sopron

84.99 M Ft
3 + 1 szoba
56 m2

Falusi CSOK ingatlanok

Eladó családi ház
Eladó családi ház

Tápióbicske

38 M Ft
3 szoba
50 m2
Eladó családi ház
Eladó családi ház

Mezőzombor

19.99 M Ft
3 szoba
91 m2
Eladó ikerház
Eladó ikerház

Tápióbicske

28.5 M Ft
4 szoba
74 m2
Eladó családi ház
Eladó családi ház

Ivánc

13.5 M Ft
2 szoba
64 m2
Eladó családi ház
Eladó családi ház

Hosszúpereszteg

35 M Ft
4 szoba
145 m2
Eladó családi ház
Eladó családi ház

Röszke

99.99 M Ft
4 szoba
122 m2
Eladó családi ház
Eladó családi ház

Mezőfalva

39 M Ft
3 szoba
77 m2
Eladó családi ház
Eladó családi ház

Tiszatenyő

13.99 M Ft
2 szoba
63 m2