Stay Family Park

Eladó téglalakás
Győr, földszint

1/1
54 990 000 Ft54.99 M Ft 859 219 Ft/m2
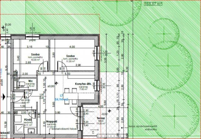
3 szoba
64 m2
földszint
építés éve:2023

Részletes adatok

Fűtés: Egyéb
Energetikai besorolás: Nem adta meg a hirdető

Az OTP Bank lakáshitel ajánlataFizetett hirdetés

+36 70 622
Komádi Csaba
referens

Érdekel az OTP Bank kedvezményes lakáshitel ajánlata? *

* A kérdésre „Igen” válasz bejelölése esetén, az „Üzenet küldése” gombra kattintva kijelentem, hogy az OTP Bank Nyrt. Adatkezelési tájékoztatójának tartalmát megismertem és tudomásul vettem.

Eladó téglalakás leírása

Győr-Szabadhegy kiváló lokációju városrészében, prémium hőszivattyús padló / mennyezet hűtéssel / fűtéssel és hőszivattyús meleg víz előállítással rendelkező nappali +1 és nappali +2 szobás lakások akár kertkapcsolattal leköthetőek.
Továbbá irodák is, melyek a társasház alapító okirata szerint lakócélra is hasznosíthatóak.
Az emelt szintű fűtés kész alap szerelt készültség a következőket tartalmazza:
A lakások kültér felé eső határoló főfalai 30-40 cm vastagságú falazóelemek, 15 cm vastag hőszigeteléssel. A födémek helyszíni monolit vasbeton lemezek a két lakószinten. A válaszfalak 10-15 cm vastag falazóelemek. Műanyag homlokzati nyílászárók (bukó, nyíló) 3 rétegű üvegezéssel (Ug = 0,6 az üvegre). Rejtett vakolható lindab redőny tok elektromos mozgatás kábelezéssel redőny nélkül. A tető szigetelése 20-25 cm vastag hőszigetelés.
Burkolat nélküli beton aljzatok. Simított belsővakolat elkészítése. Bádogos szerkezetek, külső PVC párkány. Műanyag, több ponton záródó biztonsági bejárati ajtó.
A belső válaszfalak szabadon változtathatóak a gépészeti gerincvezetékek elhelyezkedését figyelem bevéve , így formálhatja új otthonát az Ön igénye szerint. A társas házi lakások emelt szintű szerkezet kész állapotának elkészülése 2024 vége. Részletes műszaki dokumentációért, bővebb információért vagy megtekintéssel kapcsolatban keressen bizalommal a hét bármely napján!
Állok rendelkezésre ingatlan eladás-vétel, pénzügyi termékek, hitel, CSOK ügyintézésében. Több százas ingatlanállományból biztos megtalálom az Ön igényeinek megfelelőt! Hívjon bizalommal: Komádi Csaba +36706229209

Referencia szám: M260365-ZE

Hirdetés feltöltve: 2025. 11. 05. Utoljára módosítva: 2025. 11. 08.

3 szobás téglalakások ára Győrött

Ebből az összehasonlításból megtudhatod, hogyan viszonyul a lakás ára a környékbeli téglalakások átlagos árához. Ez nem azt jelenti, hogy ennyivel olcsóbb vagy drágább, mint amennyit a lakás ér, hanem hogy ennyivel tér el a környékbeli átlagtól.

Ennek a m² ára
Győr m² ár
859 e Ft
1013 e Ft 15%
Ennek az ára
Győr átlagár
54.99 M Ft m Ft
72.8 m Ft 25%

Az ingatlan elhelyezkedése

Cím: Győr, földszint

Eladó téglalakások a környékről

Eladó téglalakás
Eladó téglalakás

Győr

48.99 M Ft
3 szoba
57 m2
Eladó téglalakás
Eladó téglalakás

Győr

38.99 M Ft
2 szoba
43 m2
Eladó téglalakás
Eladó téglalakás

Győr

56.04 M Ft
2 szoba
56 m2
Eladó téglalakás
Eladó téglalakás

Mosonmagyaróvár

46.9 M Ft
2 szoba
60 m2
Eladó téglalakás
Eladó téglalakás

Nagycenk

57.9 M Ft
1 + 2 szoba
54 m2
Eladó téglalakás
Eladó téglalakás

Győr

54.99 M Ft
3 szoba
64 m2
Eladó téglalakás
Eladó téglalakás

Győr

57.99 M Ft
3 szoba
57 m2
Eladó téglalakás
Eladó téglalakás

Győr

60.282 M Ft
3 szoba
59 m2
Eladó téglalakás
Eladó téglalakás

Győr

48.99 M Ft
3 szoba
57 m2
Eladó téglalakás
Eladó téglalakás

Győr

38.99 M Ft
2 szoba
43 m2
Eladó téglalakás
Eladó téglalakás

Győr

57 M Ft
2 szoba
57 m2
Eladó téglalakás
Eladó téglalakás

Győr

48.99 M Ft
3 szoba
57 m2
Eladó téglalakás
Eladó téglalakás

Győr

85 M Ft
4 szoba
112 m2
Eladó téglalakás
Eladó téglalakás

Győr

38.99 M Ft
2 szoba
43 m2
Eladó téglalakás
Eladó téglalakás

Győr

38.99 M Ft
2 szoba
43 m2
Eladó téglalakás
Eladó téglalakás

Győr

38.99 M Ft
2 szoba
46 m2
Eladó téglalakás
Eladó téglalakás

Győr

38.99 M Ft
2 szoba
46 m2
Eladó téglalakás
Eladó téglalakás

Győr

38.99 M Ft
2 szoba
43 m2
Eladó téglalakás
Eladó téglalakás

Sopron, Gólya utca

46.9 M Ft
2 szoba
44 m2
Eladó téglalakás
Eladó téglalakás

Győr

199.99 M Ft
3 + 1 szoba
160 m2
Eladó téglalakás
Eladó téglalakás

Győr

71.978 M Ft
3 szoba
71 m2
Eladó téglalakás
Eladó téglalakás

Győr

199.99 M Ft
3 + 1 szoba
160 m2
Eladó téglalakás
Eladó téglalakás

Győr

55.844 M Ft
2 szoba
55 m2
Eladó téglalakás
Eladó téglalakás

Győr

98.5 M Ft
3 szoba
96 m2

Falusi CSOK ingatlanok

Eladó családi ház
Eladó családi ház

Tésenfa, Kossuth utca 23/a

5.55 M Ft
1 + 1 szoba
109 m2
Eladó családi ház
Eladó családi ház

Magyarszék

48.5 M Ft
3 + 1 szoba
86 m2
Eladó családi ház
Eladó családi ház

Pápakovácsi

33 M Ft
3 szoba
87 m2
Eladó ikerház
Eladó ikerház

Balatonakali

129 M Ft
4 szoba
145 m2
Eladó családi ház
Eladó családi ház

Nemesbőd

87 M Ft
5 szoba
120 m2
Eladó ikerház
Eladó ikerház

Seregélyes

39.9 M Ft
4 szoba
150 m2
Eladó családi ház
Eladó családi ház

Orci

119.9 M Ft
6 szoba
200 m2
Eladó családi ház
Eladó családi ház

Hegyeshalom

85 M Ft
4 + 1 szoba
123 m2