Eladó téglalakás
Győr, 1. emelet 
Részletes adatok
Az OTP Bank lakáshitel ajánlataFizetett hirdetés
Induló törlesztőrészlet
101 262 Ft /hóTörlesztőrészlet a 13. hónaptól
129 106 Ft /hóInduló törlesztőrészlet
135 016 Ft /hóTörlesztőrészlet a 13. hónaptól
172 142 Ft /hóA tájékoztatás nem teljes körű és nem minősül ajánlattételnek. Az OTP Évnyerő Lakáshitelei 1 éves türelmi idős kölcsönök, amellyel az első 12 hónapban alacsonyabb a havi törlesztőrészlet. A tőke törlesztését a 13. hónaptól kell megkezdeni.
Eladó téglalakás leírása
Győr-Szabadhegy mellékutcájában új építésű 28 lakásos társasházban különböző alapterületű lakások eladók.
A modern társasházban nappali + 1 szobás, nappali + 2 szobás és nappali + 3 szobás lakások kerülnek kialakításra. A földszinti lakások kertkapcsolattal és terasszal, az emeleti lakások erkéllyel, galériával és tetőterasszal, a penthouse lakások tetőterasszal rendelkeznek.
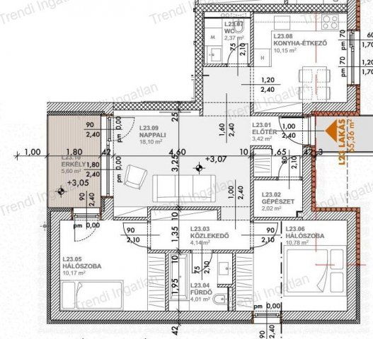
A meghirdetett 1. emeleten található 65,16 nm-es lakásban konyha-étkező, nappali, 2 szoba, fürdőszoba, külön WC, közlekedő, gépészet és előtér található. Nappaliból 5,49 nm-es terasz nyílik.
A lakás fűtéskész ára: 69.900.000 Ft. Kulcsrakész befejezés kérhető.
Gépkocsibeállló ára: 2.900.000 Ft
Fedett gépkocsibeálló ára: 4.900.000 Ft
Lehetőség van tároló vásárlására is, ára: 3.500.000 Ft – 3.900.000 Ft
A társasház 30 cm-es falazóelemből, 15 cm-es homlokzati hőszigeteléssel épül. A homlokzati műanyag nyílászárók 3 rétegűek. Az ingatlanok fűtése kondenzációs gázkazánnal történik, lakásonként egyedi hőmennyiségmérővel és hőmérséklet szabályozó termosztáttal, hőleadás padlófűtéssel. Az ár 1 db klímaelőkészítést tartalmaz.
Várható átadás: 2027 tavasz
Bővebb információkért forduljon hozzám bizalommal.
Hétköznap és hétvégén is várom hívását!
Díjmentes, bankfüggetlen hitelügyintézéssel állunk rendelkezésére.
A hirdetésben feltüntetett képek illusztrációk.
Hirdetés feltöltve: 2025. 10. 01. Utoljára módosítva: 2025. 10. 02.
3 szobás téglalakások ára Győrött
Ebből az összehasonlításból megtudhatod, hogyan viszonyul a lakás ára a környékbeli téglalakások átlagos árához. Ez nem azt jelenti, hogy ennyivel olcsóbb vagy drágább, mint amennyit a lakás ér, hanem hogy ennyivel tér el a környékbeli átlagtól.
Az ingatlan elhelyezkedése
Cím: Győr, 1. emelet
 
 
 
 
 
 
 
 
 
 
 
 
 
 
 
 
 
 
 
 
 
 
 
 
 
 
 
 
 
 
 
