Astora Art House

Eladó téglalakás
Debrecen, 1. emelet

+ 5 kép 1/8
67 990 000 Ft67.99 M Ft 1 545 227 Ft/m2
2 szoba
44 m²
1. emelet
építés éve:2026

Részletes adatok

Fűtés: Gázkazán
Emelet: 1. emelet
Energetikai besorolás: Nem adta meg a hirdető

Az OTP Bank lakáshitel ajánlataFizetett hirdetés

3652234113
Lovász Lajos László
Duna House - Debrecen, Derék utca

Érdekel az OTP Bank kedvezményes lakáshitel ajánlata? *

* A kérdésre „Igen” válasz bejelölése esetén, az „Üzenet küldése” gombra kattintva kijelentem, hogy az OTP Bank Nyrt. Adatkezelési tájékoztatójának tartalmát megismertem és tudomásul vettem.

Eladó téglalakás leírása

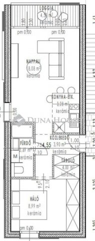
Eladó  1 emeleti 3-es lakás, alapterülete 41.94 nm , terasz 4.58 nm..
A lakás DK fekvésű, amerikai konyhás nappali plusz hálószoba.
.Egy kis lakászámú társasház épül, ahol a modern technológiák és a kényelem ötvöződnek.
Ami igazán különlegessé teszi ezt a projektet, hogy nincs közös fal a lakások között, így az otthon érzése olyan, mintha családi házban élnél, miközben élvezheted a társasházi kényelmi előnyöket. A zöld, nyugodt környezet és a közelben lévő minden szükséges infrastruktúra ideális választássá teszi ezt a lakást modern műszaki megoldásokat keresőknek, akik nem szeretnének kompromisszumot kötni az otthonuk minőségét illetően.

A lakásokhoz saját, lakáson belüli tároló vagy gardrób tartozik, ami extra tárolási lehetőséget biztosít. A 36 cm vastag Isospan falazati rendszer (16 cm grafitos szigeteléssel és vasbetonnal) egyenletes hőmérsékletet garantál fűtés és hűtés nélkül is, a prémium hő- és hangszigetelés mellett. A tűzállóság érdekében a lakás beton sávalappal és monolit vasbeton födémmel került kialakításra, a külső nyílászárók pedig 3 réteg üvegezésű, 6 légkamrás műanyag profilban készültek.

Az ingatlan főbb jellemzői között szerepel az A+ energetikai besorolás, ami alacsony rezsi költséget és korszerű műszaki megoldásokat ígér. Minden lakás gáz cirkó kazánnal és padlófűtéssel van ellátva a kellemes hőérzetért. Emellett klíma biztosítja a nyári komfortot minden szobában.
Az épület a tervek szerint 2026 IV negyedévében kerül átadásra. A lakás kimagasló fényviszonyokkal rendelkezik, köszönhetően a napfényes elhelyezkedésének.Bővebb felvilágosításért forduljon hozzám bizalommal akár hétvégén is.

Hirdetés feltöltve: 2026. 04. 01. Utoljára módosítva: 2026. 04. 02.

2 szobás téglalakások ára Debrecenben

Ebből az összehasonlításból megtudhatod, hogyan viszonyul a lakás ára a környékbeli téglalakások átlagos árához. Ez nem azt jelenti, hogy ennyivel olcsóbb vagy drágább, mint amennyit a lakás ér, hanem hogy ennyivel tér el a környékbeli átlagtól.

Ennek a m² ára
Debrecen m² ár
1545 e Ft
1294 e Ft -19%
Ennek az ára
Debrecen átlagár
67.99 M Ft m Ft
68.3 m Ft 0%

Az ingatlan elhelyezkedése

Cím: Debrecen, 1. emelet

Eladó téglalakások a környékről

Debrecen, Belváros, Hatvan köz
Eladó téglalakás

Debrecen

83.943 M Ft
2 szoba
64 m²
Debrecen, Belváros, Hatvan köz
Eladó téglalakás

Debrecen

111.05 M Ft
3 szoba
95 m²
Debrecen, Belváros, Hatvan köz
Eladó téglalakás

Debrecen

98.181 M Ft
2 szoba
85 m²
Debrecen
Eladó téglalakás

Debrecen

87.9 M Ft
3 szoba
64 m²
Debrecen, Belváros, Hatvan köz
Eladó téglalakás

Debrecen

70.703 M Ft
1 szoba
64 m²
Hajdúszoboszló, József Attila utca
Eladó téglalakás

Hajdúszoboszló

137.5 M Ft
2 szoba
106 m²
Debrecen
Eladó téglalakás

Debrecen

106 M Ft
4 szoba
84 m²
Debrecen
Eladó téglalakás

Debrecen

144.6 M Ft
4 szoba
101 m²
Debrecen
Eladó téglalakás

Debrecen

69.9 M Ft
4 szoba
95 m²
Hajdúszoboszló, József Attila utca
Eladó téglalakás

Hajdúszoboszló

107.5 M Ft
3 szoba
107 m²
Debrecen, Belváros, Hatvan köz
Eladó téglalakás

Debrecen

75.213 M Ft
1 szoba
81 m²
Debrecen, Belváros, Hatvan köz
Eladó téglalakás

Debrecen

120.891 M Ft
3 szoba
103 m²
Püspökladány
Eladó téglalakás

Püspökladány

39.9 M Ft
1 szoba
336 m²
Debrecen, Belváros, Hatvan köz
Eladó téglalakás

Debrecen

75.213 M Ft
1 szoba
81 m²
Debrecen, Belváros, Hatvan köz
Eladó téglalakás

Debrecen

118.936 M Ft
4 szoba
107 m²
Debrecen, Belváros, Hatvan köz
Eladó téglalakás

Debrecen

120.891 M Ft
3 szoba
103 m²
Debrecen
Eladó téglalakás

Debrecen

86.5 M Ft
3 szoba
62 m²
Debrecen
Eladó téglalakás

Debrecen

99.7 M Ft
3 szoba
66 m²
Debrecen
Eladó téglalakás

Debrecen

69.9 M Ft
4 szoba
95 m²
Debrecen, Belváros, Hatvan köz
Eladó téglalakás

Debrecen

118.936 M Ft
4 szoba
107 m²
Hajdúszoboszló
Eladó téglalakás

Hajdúszoboszló

84 M Ft
5 szoba
90 m²
Debrecen
Eladó téglalakás

Debrecen

106 M Ft
4 szoba
84 m²
Hajdúsámson
Eladó téglalakás

Hajdúsámson

75 M Ft
4 szoba
92 m²
Debrecen, Belváros, Hatvan köz
Eladó téglalakás

Debrecen

117.277 M Ft
4 szoba
95 m²

Falusi CSOK ingatlanok

Kunadacs
Eladó családi ház

Kunadacs

80 M Ft
4 szoba
148 m²
Németkér
Eladó családi ház

Németkér

149.9 M Ft
2 szoba
540 m²
Zákányfalu
Eladó családi ház

Zákányfalu

14.5 M Ft
2 szoba
80 m²
Bogyoszló
Eladó családi ház

Bogyoszló

27.9 M Ft
3 szoba
120 m²
Balatonkeresztúr
Eladó családi ház

Balatonkeresztúr

89 M Ft
3 szoba
63 m²
Karád, Kodály utca
Eladó családi ház

Karád

24.5 M Ft
3 szoba
75 m²
Balatonszárszó
Eladó családi ház

Balatonszárszó

30 M Ft
3 szoba
45 m²
Berzence
Eladó családi ház

Berzence

40 M Ft
3 szoba
233 m²