Astora Art House

Eladó téglalakás
Debrecen

+ 14 kép 1/17
115 921 000 Ft115.921 M Ft 1 505 468 Ft/m2
3 szoba
77 m2

Részletes adatok

Fűtés: Egyéb
Energetikai besorolás: Nem adta meg a hirdető

Az OTP Bank lakáshitel ajánlataFizetett hirdetés

+36 20 502
Bécsiné Kocsár Aliz
Partner Iroda

Érdekel az OTP Bank kedvezményes lakáshitel ajánlata? *

* A kérdésre „Igen” válasz bejelölése esetén, az „Üzenet küldése” gombra kattintva kijelentem, hogy az OTP Bank Nyrt. Adatkezelési tájékoztatójának tartalmát megismertem és tudomásul vettem.

Eladó téglalakás leírása

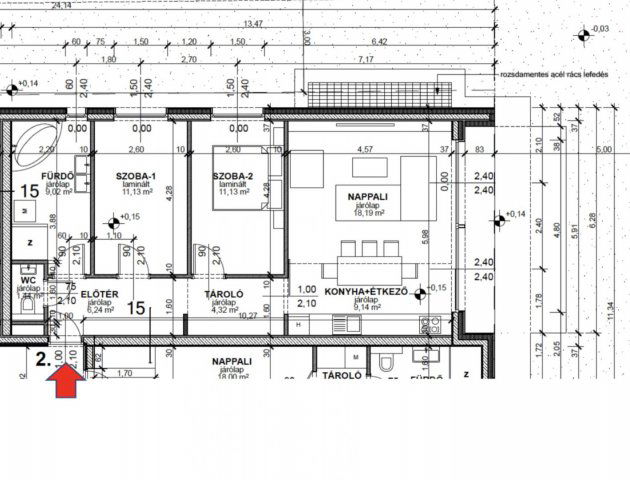
Újépítésű, kertkapcsolatos 2 hálószobás lakás eladó – Debrecen, Nyulas

Debrecen egyik legexkluzívabb újépítésű társasházában, a Lóverseny utcában eladó egy földszinti, kertkapcsolatos lakás, amely kiváló választás akár saját otthonnak, akár rendelőnek, irodának vagy befektetésnek.

A lakás 76,5 m² összterületű, ebből a belső lakótér 70,61 m², a terasz 5,89 m², valamint 83 m² kizárólagos használatú kert tartozik hozzá.

Elosztás: nappali + konyha-étkező, 2 külön nyíló hálószoba, fürdő, külön WC, előtér, tároló és terasz.
Az elrendezés ideális akár családoknak, akár olyan vállalkozásoknak, akik nyugodt, zöldövezeti környezetben működnének (pl. orvosi rendelő, kozmetika, iroda, ügyvédi iroda).

A társasház A+ energetikai besorolású, talajszondás hőszivattyús rendszerrel és fan-coil fűtés-hűtéssel épül, így a lakások alacsony fenntartásúak és környezetbarátok.

Főbb jellemzők:
Lakás alapterülete: 70,61 m²
Terasz: 5,89 m²
Kert: 83 m² kizárólagos használat
A+ energiaosztály
Fan-coil hűtés-fűtés, padlófűtés a fürdőben
3 rétegű nyílászárók, prémium hő- és hangszigetelés
Okosotthon előkészítés, riasztórendszer, elektromos autótöltés előkészítés (opcionális)

Zárt, fedett parkolóhely vásárolható a pincében (13,9–14,1 M Ft között)
Kiváló elhelyezkedés: zöldövezet, közel az egyetemhez és a belvároshoz

Ár: 115 921 000 Ft
Átadás: 2026

Részletes műszaki információkért és bemutató anyagért hívjon bizalommal:
Bécsiné Kocsár Aliz – +36 20 502 2460

Hirdetés feltöltve: 2025. 12. 16. Utoljára módosítva: 2026. 01. 13.

3 szobás téglalakások ára Debrecenben

Ebből az összehasonlításból megtudhatod, hogyan viszonyul a lakás ára a környékbeli téglalakások átlagos árához. Ez nem azt jelenti, hogy ennyivel olcsóbb vagy drágább, mint amennyit a lakás ér, hanem hogy ennyivel tér el a környékbeli átlagtól.

Ennek a m² ára
Debrecen m² ár
1505 e Ft
1308 e Ft -15%
Ennek az ára
Debrecen átlagár
115.921 M Ft m Ft
95.8 m Ft -21%

Az ingatlan elhelyezkedése

Cím: Debrecen

Eladó téglalakások a környékről

Eladó téglalakás
Eladó téglalakás

Derecske

61.132 M Ft
4 szoba
72 m2
Eladó téglalakás
Eladó téglalakás

Hajdúszoboszló, József Attila utca

107.5 M Ft
3 szoba
107 m2
Eladó téglalakás
Eladó téglalakás

Debrecen

112.5 M Ft
3 szoba
83 m2
Eladó téglalakás
Eladó téglalakás

Debrecen, Belváros, Hatvan köz

70.703 M Ft
1 szoba
64 m2
Eladó téglalakás
Eladó téglalakás

Debrecen

89.9 M Ft
3 szoba
64 m2
Eladó téglalakás
Eladó téglalakás

Debrecen

78.5 M Ft
4 szoba
68 m2
Eladó téglalakás
Eladó téglalakás

Debrecen, Belváros, Hatvan köz

95.929 M Ft
2 szoba
87 m2
Eladó téglalakás
Eladó téglalakás

Debrecen, Belváros, Hatvan köz

98.181 M Ft
2 szoba
85 m2
Eladó téglalakás
Eladó téglalakás

Debrecen

78.5 M Ft
4 szoba
68 m2
Eladó téglalakás
Eladó téglalakás

Debrecen, Belváros, Hatvan köz

81.769 M Ft
2 szoba
72 m2
Eladó téglalakás
Eladó téglalakás

Debrecen, Belváros, Hatvan köz

83.943 M Ft
2 szoba
64 m2
Eladó téglalakás
Eladó téglalakás

Debrecen, Belváros, Hatvan köz

98.181 M Ft
2 szoba
85 m2
Eladó téglalakás
Eladó téglalakás

Debrecen, Belváros, Hatvan köz

70.703 M Ft
1 szoba
64 m2
Eladó téglalakás
Eladó téglalakás

Debrecen, Belváros, Hatvan köz

95.929 M Ft
2 szoba
87 m2
Eladó téglalakás
Eladó téglalakás

Hajdúszoboszló, József Attila utca

69 M Ft
2 szoba
59 m2
Eladó téglalakás
Eladó téglalakás

Debrecen, Belváros, Hatvan köz

101.969 M Ft
3 szoba
85 m2
Eladó téglalakás
Eladó téglalakás

Debrecen, Belváros, Hatvan köz

83.943 M Ft
2 szoba
64 m2
Eladó téglalakás
Eladó téglalakás

Debrecen

91.9 M Ft
2 szoba
54 m2
Eladó téglalakás
Eladó téglalakás

Debrecen, Belváros, Hatvan köz

118.936 M Ft
4 szoba
107 m2
Eladó téglalakás
Eladó téglalakás

Debrecen, Belváros, Hatvan köz

132.124 M Ft
4 szoba
107 m2
Eladó téglalakás
Eladó téglalakás

Debrecen, Belváros, Hatvan köz

123.522 M Ft
3 szoba
100 m2
Eladó téglalakás
Eladó téglalakás

Debrecen, Belváros, Hatvan köz

70.703 M Ft
1 szoba
64 m2
Eladó téglalakás
Eladó téglalakás

Debrecen, Belváros, Hatvan köz

70.703 M Ft
1 szoba
64 m2
Eladó téglalakás
Eladó téglalakás

Püspökladány

39.9 M Ft
1 szoba
336 m2

Falusi CSOK ingatlanok

Eladó családi ház
Eladó családi ház

Balatonszárszó

178 M Ft
6 szoba
260 m2
Eladó családi ház
Eladó családi ház

Ozora

24.9 M Ft
3 + 1 szoba
90 m2
Eladó családi ház
Eladó családi ház

Balatonkeresztúr, Dózsa György u. 29

145 M Ft
5 szoba
150 m2
Eladó családi ház
Eladó családi ház

Verseg

54 M Ft
2 szoba
92 m2
Eladó családi ház
Eladó családi ház

Somogygeszti

38.6 M Ft
3 + 1 szoba
98 m2
Eladó családi ház
Eladó családi ház

Kislőd

53.2 M Ft
3 szoba
86 m2
Eladó családi ház
Eladó családi ház

Nagyberki

39.9 M Ft
5 szoba
170 m2
Eladó családi ház
Eladó családi ház

Bezenye

84.9 M Ft
4 szoba
139 m2