BAM Living

Eladó téglalakás
Cegléd, földszint

+ 17 kép 1/20
77 473 000 Ft77.473 M Ft 890 494 Ft/m2
4 szoba
87 m2
földszint
építés éve:2025

Részletes adatok

Telekméret: 34 m2
Fűtés: Egyéb
Közmű: Villany, Csatorna
Energetikai besorolás: Nem adta meg a hirdető

Az OTP Bank lakáshitel ajánlataFizetett hirdetés

+36 70 465
Mészáros Béla
Otthon Centrum Cegléd

Érdekel az OTP Bank kedvezményes lakáshitel ajánlata? *

* A kérdésre „Igen” válasz bejelölése esetén, az „Üzenet küldése” gombra kattintva kijelentem, hogy az OTP Bank Nyrt. Adatkezelési tájékoztatójának tartalmát megismertem és tudomásul vettem.

Eladó téglalakás leírása

Nappali + 3 szobás, belső kétszintes lakás. A lakáshoz tartozik egy 8 nm-es fedett terasz és egy 6 nm-es tornác is. Az ingatlanhoz tartozik egy kötelezően megvásárolandó gépkocsi beálló, melynek ára 1,5 millió forint valamint saját udvarrésszel is rendelkezik. A lakóparkon belül játszótér, pihenőpark kerül kialakításra.
- 30-as Porotherm tégla falazat
- 18 cm-es hőszigetelés
- Creaton tetőcserép
- műanyag nyílászárók 3 rétegű üvegezéssel, aluredőnyökkel
- egyedi hőszivattyús hűtés-fűtés padlófűtéssel és fan coillokkal
- lakásonként 3x20A elektromos áram + H tarifa

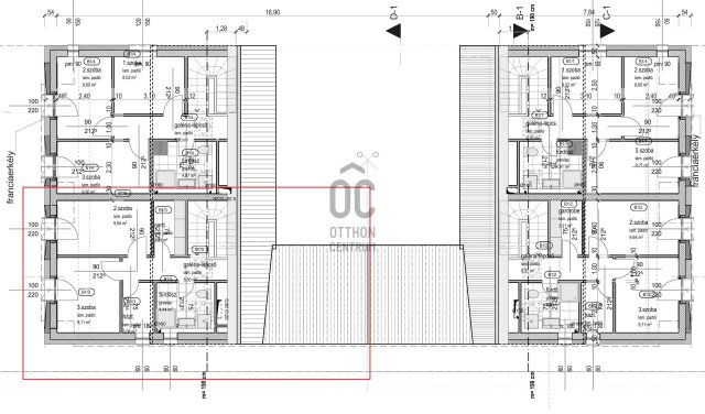
87 m2 alapterületű 4 szobás lakás. A lakás földszint + tetőteres kialakítású.
A földszinten elhelyezett étkezőkonyha és nappali összesített alapterülete meghaladja a 26 m2-t. A nappali mérete
meghaladja a 16 m2-t, amely területből étkező nem foglal el helyet. A lakáshoz nagyméretű, 1, 5 m széles fedett
terasz kapcsolódik, mind az étkező-konyhából, mind a nappaliból önálló kijutási lehetőséget biztosítottunk a teraszra.
A földszinten a két főtömeget összekötő szárnyban egy szobát alakítottunk ki. A tágas földszinti mosdó helyiségben
helyeztük el a hőszivattyú beltéri egységét. A lakásnak van külön WC-je és kamrája a földszinten. Az emeletre húzottkarú gipszbeton szerkezetű lépcső vezet fel.
Minden tetőtéri szobának van homlokzati nyílása (ablak vagy franciaerkély), ahonnan a kilátás teljes mértékben biztosított.
Tetőablakot csak a fürdőszobára és a galéria-közlekedőhöz tettünk.
A lakások fűtése/hűtése víz-levegős hőszivattyúval történik, a lakáson belüli hőleadás padlón és fan-coil berendezésen
keresztül történik. Parkolást a telken belül oldjuk meg szilárd burkolaton garázsépület nélkül.
A hőszivattyú kültéri egységét a földszinti mosdó mellett a külső falba süllyesztetten alakítottuk
ki rácsos takarással, a beltéri egységet az emeleti tágas fürdőszobában helyeztük el. Az emeleti fürdőszobában mosógép, mosdó
Wc és tusoló kap helyet.
Projekt bemutatása

Stílus - Minőség - Biztonság - Környezettudatosság - Alacsony fenntartási költségek
Ezek a mai ingatlanfejlesztések legfontosabb hívószavai! Cegléd legújabb lakóparkja ezeknek az elvárásoknak kíván megfelelni szem előtt tartva a közösségépítést és az egyedi igények megvalósítását is!

A Vadvirág Lakópark Cegléd nyugati kapujában épül, közvetlenül természetvédelmi terület szomszédságában, ahol a fokozottan védett Pókbangó nevű ritka orchidea faj legjelentősebb hazai termőterülete található. A városközponttól 2 km-re fekszik, kerékpárúton is megközelíthető. Szupermarket a közvetlen közelben található, a Vasútállomás 3,5 km. A Ceglédi Termálfürdő 5 km, az M4 autópálya legközelebbi felhajtója 3,5 km, Budapest autóval 40 perc alatt elérhető. A terület könnyen megközelíthető mégis csöndes, természetközeli élményt tud nyújtani. A teraszáról a naplementében gyönyörködhet.

Tervek szerint a lakóparkban 40 db lakás épül, 10 db 4 lakásos sorház formájában. A lakások belső kétszintesek, tetőtérbeépítéssel. Minden lakáshoz saját kertrész tartozik. Minden egységhez biztosított egy gépkocsi tárolása garázs, fedett beálló vagy nyitott beálló formájában. A lakások terasszal vagy erkéllyel rendelkeznek. 3 típusú társasház közül lehet majd választani, a lakások mérete 61 és 95 nm közé esik, elrendezésük szerint nappali + 2 vagy 3 hálószobával.

A kortárs stílusú épületek a legjobb minőségű anyagokból készültek, és a legmodernebb technológiákat használtuk a fenntartható életvitel érdekében. Energetikailag a mai kor igényeinek mindenben megfelelnek. Az épületek korszerű homlokzati-, padló- és padlásszigeteléssel, hőszivattyús hűtés-fűtéssel rendelkeznek amit oldalfali fancoilok és padlófűtés biztosítanak. Opcióként az energiahatékonyság növelése érdekében lakásonként egyedi napelemes rendszert is árulunk. A korszerű, színben illeszkedő nyílászárókat alumínium redőnyökkel szereljük.

Az eladó társasházi lakásaink nagyszerű lehetőséget kínálnak mindazoknak, akik egy modern, zöld és közösségi életmódra vágynak. Ezért a saját élettér mellett fontos szerepet játszik a közösségi terek kialakítása is. Saját park, sétányok, szökőkút és játszótér fog gondoskodni a nyugodt pihenésről. A biztonságot a terület körbekerítése és kapukon keresztüli megközelítése fogja garantálni.

A kivitelezés már javában zajlik. Az első húsz lakás már tető alatt van, a belső munkálatokat végzik. Az első lakások átadására várhatóan 2025 őszén kerül sor.
A szerződéskötés részleteiről és feltételeiről személyes találkozó keretében tudom tájékoztatni!
Amennyiben hitel vagy CSOK Plusz érdekli, úgy az Otthon Centrum az ország egyik legnagyobb és legmegbízhatóbb hitelközvetítőjeként teljes körű és
díjmentes hitelügyintézéssel, biztosításkötéssel áll rendelkezésére!
Kérje személyre szabott ajánlatunkat Kollégáinktól!

Hirdetés feltöltve: 2025. 11. 12. Utoljára módosítva: 2025. 11. 13.

4 szobás téglalakások ára Cegléden

Ebből az összehasonlításból megtudhatod, hogyan viszonyul a lakás ára a környékbeli téglalakások átlagos árához. Ez nem azt jelenti, hogy ennyivel olcsóbb vagy drágább, mint amennyit a lakás ér, hanem hogy ennyivel tér el a környékbeli átlagtól.

Ennek a m² ára
Cegléd m² ár
890 e Ft
838 e Ft -6%
Ennek az ára
Cegléd átlagár
77.473 M Ft m Ft
72.8 m Ft -6%

Az ingatlan elhelyezkedése

Cím: Cegléd, földszint

Eladó téglalakások a környékről

Eladó téglalakás
Eladó téglalakás

Göd

44.5 M Ft
3 szoba
70 m2
Eladó téglalakás
Eladó téglalakás

Cegléd

87.999 M Ft
2 szoba
93 m2
Eladó téglalakás
Eladó téglalakás

Göd

27.9 M Ft
2 szoba
43 m2
Eladó téglalakás
Eladó téglalakás

Cegléd

39.9 M Ft
1 szoba
51 m2
Eladó téglalakás
Eladó téglalakás

Göd

32.9 M Ft
2 szoba
44 m2
Eladó téglalakás
Eladó téglalakás

Cegléd

66.8 M Ft
3 szoba
86 m2
Eladó téglalakás
Eladó téglalakás

Göd

28.9 M Ft
2 szoba
46 m2
Eladó téglalakás
Eladó téglalakás

Cegléd

76.257 M Ft
2 szoba
80 m2
Eladó téglalakás
Eladó téglalakás

Cegléd

68 M Ft
5 szoba
86 m2
Eladó téglalakás
Eladó téglalakás

Göd

27.9 M Ft
2 szoba
43 m2
Eladó téglalakás
Eladó téglalakás

Cegléd

76.1 M Ft
3 szoba
87 m2
Eladó téglalakás
Eladó téglalakás

Cegléd

36.3 M Ft
2 szoba
59 m2
Eladó téglalakás
Eladó téglalakás

Cegléd

64 M Ft
1 szoba
62 m2
Eladó téglalakás
Eladó téglalakás

Cegléd

65.405 M Ft
4 szoba
73 m2
Eladó téglalakás
Eladó téglalakás

Göd

46.5 M Ft
4 szoba
72 m2
Eladó téglalakás
Eladó téglalakás

Göd

44.5 M Ft
3 szoba
73 m2
Eladó téglalakás
Eladó téglalakás

Göd, Oázis utca

27.9 M Ft
2 szoba
44 m2
Eladó téglalakás
Eladó téglalakás

Cegléd

42.8 M Ft
2 szoba
66 m2
Eladó téglalakás
Eladó téglalakás

Cegléd

68 M Ft
5 szoba
86 m2
Eladó téglalakás
Eladó téglalakás

Göd

29.5 M Ft
2 szoba
44 m2
Eladó téglalakás
Eladó téglalakás

Cegléd

55.5 M Ft
3 szoba
86 m2
Eladó téglalakás
Eladó téglalakás

Cegléd

68 M Ft
4 szoba
86 m2
Eladó téglalakás
Eladó téglalakás

Göd

28.9 M Ft
2 szoba
46 m2
Eladó téglalakás
Eladó téglalakás

Cegléd

68 M Ft
4 szoba
86 m2

Falusi CSOK ingatlanok

Eladó családi ház
Eladó családi ház

Kondorfa, Fővég utca

24.9 M Ft
3 szoba
102 m2
Eladó családi ház
Eladó családi ház

Iváncsa

73.9 M Ft
1 + 3 szoba
97 m2
Eladó családi ház
Eladó családi ház

Enese

82.9 M Ft
4 szoba
90 m2
Eladó családi ház
Eladó családi ház

Bükkszentkereszt, Zrínyi u 13

51.9 M Ft
5 szoba
230 m2
Eladó családi ház
Eladó családi ház

Bugac

90 M Ft
5 szoba
230 m2
Eladó családi ház
Eladó családi ház

Pétfürdő

36.5 M Ft
3 szoba
100 m2
Eladó családi ház
Eladó családi ház

Földeák

39.9 M Ft
3 szoba
86 m2
Eladó családi ház
Eladó családi ház

Tass

6.999 M Ft
1 szoba
40 m2