NapForrás 20 - Buda

Eladó téglalakás
Budapest, XXIII. kerület, földszint

+ 17 kép 1/20
99 900 000 Ft99.9 M Ft 1 029 897 Ft/m2
2 + 2 szoba
97 m²
földszint
építés éve:1988

Részletes adatok

Fűtés: Gázkazán
Energetikai besorolás: Nem adta meg a hirdető

Az OTP Bank lakáshitel ajánlataFizetett hirdetés

+36 30 989
Keszthelyi László
Szigetszentmiklós OTP Ip

Érdekel az OTP Bank kedvezményes lakáshitel ajánlata? *

* A kérdésre „Igen” válasz bejelölése esetén, az „Üzenet küldése” gombra kattintva kijelentem, hogy az OTP Bank Nyrt. Adatkezelési tájékoztatójának tartalmát megismertem és tudomásul vettem.

Eladó téglalakás leírása

Árcsökkenés! Eladó sorház Budapest, XXIII. kerület közkedvelt részén!

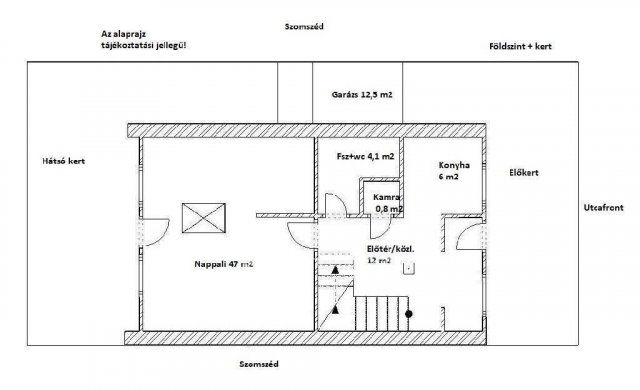
Budapest XXIII. kerületének egyik kedvelt utcájában kínálunk megvételre egy jó állapotú, belső kétszintes, könnyűszerkezetes sorházat, amely igazi otthonos hangulatot áraszt.

Az ingatlan nettó 97, bruttó 110 négyzetméter alapterületű, kényelmes elosztású, 2+2 szobával és duplakomforttal rendelkezik. A ház különlegessége a közel 47 négyzetméteres, tágas és világos, kertkapcsolatos nappali, amelyet a korábbi terasz beépítésével alakítottak ki, így igazi központja lehet a családi életnek.

A saját, kizárólagos kerthasználat egy igazi kincs: bár nem nagy, éppen ideális arra, hogy a család kiüljön egy beszélgetésre, kávéra a barátokkal, nyári estéken gyertyafény mellett vacsorázzon, vagy egy kis zölddel vegye körül magát a rohanó hétköznapok után. A kerthez saját garázs is tartozik, az ingatlan minden közműve önálló mérőórával rendelkezik. A ház 1988-ban épült, majd 2001-ben szinte teljes körű felújításon esett át. A fűtésről gázcirkó és elektromos rendszer gondoskodik, a kellemes komfortérzetet a nappaliban központi klíma, és egy külön klíma biztosítja az emeleten.

Az elhelyezkedés szintén kiemelkedő: a ház nyugodt környezetben található, mégis kiváló közlekedési adottságokkal rendelkezik. A közeli buszjáratok (66, 66E, 123, 135, 166) gyors kapcsolatot biztosítanak a belváros és a környező kerületek felé, a H6-os HÉV-vel pedig szintén könnyedén elérhető a város. Átszállással az M3 metró is rövid idő alatt megközelíthető, autóval pedig néhány perc az M0-s autóút. A közelben minden megtalálható, ami a kényelmes mindennapokhoz szükséges: bevásárlási lehetőségek, iskola, óvoda, önkormányzat, gyógyszertár és orvosi rendelő, sportolási lehetőségek rövid időn belül elérhetőek.

Ez az ingatlan azok számára lehet ideális választás, akik szeretnék a kertvárosi nyugalmat élvezni, miközben tágas, világos terekkel rendelkező, jól karbantartott otthonban élnek, ahol a mindennapok kényelme és a városhoz való jó közlekedési kapcsolat egyaránt adott.

Hirdetés feltöltve: 2025. 11. 28. Utoljára módosítva: 2026. 04. 01.

4 szobás téglalakások ára Budapesten

Ebből az összehasonlításból megtudhatod, hogyan viszonyul a lakás ára a környékbeli téglalakások átlagos árához. Ez nem azt jelenti, hogy ennyivel olcsóbb vagy drágább, mint amennyit a lakás ér, hanem hogy ennyivel tér el a környékbeli átlagtól.

Ennek a m² ára
XXIII. kerület m² ár
Budapest m² ár
1030 e Ft
971 e Ft -6%
1788 e Ft 42%
Ennek az ára
XXIII. kerület átlagár
Budapest átlagár
99.9 M Ft m Ft
94.2 m Ft -6%
186.9 m Ft 47%

Az ingatlan elhelyezkedése

Cím: Budapest, XXIII. kerület, földszint

Eladó ingatlanok a környékről

XI. kerület, Kelenföld, Budafoki út 64/B
Eladó téglalakás

Budapest, XI. kerület

97.545 M Ft
2 szoba
45 m²
XIII. kerület, Vizafogó, Sólyatér utca 15
Eladó téglalakás

Budapest, XIII. kerület

84.315 M Ft
2 szoba
40 m²
XIII. kerület, Vizafogó, Sólyatér utca 15
Eladó téglalakás

Budapest, XIII. kerület

256.515 M Ft
5 szoba
110 m²
XXIII. kerület
Eladó téglalakás

Budapest, XXIII. kerület

58 M Ft
2 szoba
40 m²
XIII. kerület, Vizafogó, Sólyatér utca 15
Eladó téglalakás

Budapest, XIII. kerület

63.21 M Ft
1 szoba
31 m²
XXIII. kerület, Soroksár-újtelep, Ördögszekér utca
Eladó téglalakás

Budapest, XXIII. kerület

89 M Ft
2 + 2 szoba
90 m²
XXIII. kerület
Eladó téglalakás

Budapest, XXIII. kerület

74.9 M Ft
3 szoba
107 m²
XI. kerület, Kelenföld, Budafoki út 64/B
Eladó téglalakás

Budapest, XI. kerület

135.345 M Ft
3 szoba
66 m²
XXIII. kerület, Soroksár, Grassalkovich út
Eladó téglalakás

Budapest, XXIII. kerület

66.9 M Ft
3 szoba
90 m²
XIII. kerület, Vizafogó, Sólyatér utca 15
Eladó téglalakás

Budapest, XIII. kerület

85.155 M Ft
2 szoba
41 m²
XXIII. kerület
Eladó téglalakás

Budapest, XXIII. kerület

138 M Ft
3 + 2 szoba
150 m²
XIII. kerület, Vizafogó, Sólyatér utca 15
Eladó téglalakás

Budapest, XIII. kerület

68.145 M Ft
1 szoba
33 m²
XXIII. kerület
Eladó téglalakás

Budapest, XXIII. kerület

69.9 M Ft
3 szoba
87 m²
XIII. kerület, Vizafogó, Sólyatér utca 15
Eladó téglalakás

Budapest, XIII. kerület

171.36 M Ft
4 szoba
87 m²
XXIII. kerület
Eladó téglalakás

Budapest, XXIII. kerület

38 M Ft
2 szoba
38 m²
XI. kerület, Kelenföld, Budafoki út 64/B
Eladó téglalakás

Budapest, XI. kerület

229.74 M Ft
4 szoba
96 m²
XIII. kerület, Vizafogó, Sólyatér utca 15
Eladó téglalakás

Budapest, XIII. kerület

79.275 M Ft
2 szoba
40 m²
XXIII. kerület
Eladó téglalakás

Budapest, XXIII. kerület

54.9 M Ft
2 szoba
70 m²
XI. kerület, Kelenföld, Budafoki út 64/B
Eladó téglalakás

Budapest, XI. kerület

143.535 M Ft
3 szoba
67 m²
XXIII. kerület
Eladó téglalakás

Budapest, XXIII. kerület

66.9 M Ft
2 szoba
90 m²
XI. kerület, Kelenföld, Budafoki út 64/B
Eladó téglalakás

Budapest, XI. kerület

236.25 M Ft
4 szoba
88 m²
XXIII. kerület
Eladó téglalakás

Budapest, XXIII. kerület

85 M Ft
3 szoba
84 m²
XI. kerület, Kelenföld, Budafoki út 64/B
Eladó téglalakás

Budapest, XI. kerület

99.645 M Ft
2 szoba
42 m²
XIII. kerület, Vizafogó, Sólyatér utca 15
Eladó téglalakás

Budapest, XIII. kerület

133.245 M Ft
3 szoba
69 m²

Falusi CSOK ingatlanok

Szigliget
Eladó családi ház

Szigliget

299 M Ft
3 szoba
95 m²
Németkér
Eladó családi ház

Németkér

149.9 M Ft
2 szoba
540 m²
Zalalövő
Eladó családi ház

Zalalövő

47 M Ft
4 + 1 szoba
117 m²
Perkáta
Eladó családi ház

Perkáta

38.95 M Ft
1 + 2 szoba
72 m²
Belezna
Eladó családi ház

Belezna

9.5 M Ft
2 szoba
86 m²
Hajdúbagos
Eladó családi ház

Hajdúbagos

36.9 M Ft
3 szoba
50 m²
Kilimán
Eladó családi ház

Kilimán

69.9 M Ft
3 szoba
130 m²
Bag
Eladó családi ház

Bag

110 M Ft
5 szoba
320 m²