Astora Márvány8

Eladó téglalakás
Budapest, XX. kerület, földszint

+ 7 kép 1/10
56 900 000 Ft56.9 M Ft 1 161 224 Ft/m2
1 + 1 szoba
49 m²
földszint
építés éve:1980

Részletes adatok

Fűtés: Gázkazán
Emelet: földszint
Energetikai besorolás: D

Az OTP Bank lakáshitel ajánlataFizetett hirdetés

+36 30 353
Sasaran-Kereki Katalin
referens

Érdekel az OTP Bank kedvezményes lakáshitel ajánlata? *

* A kérdésre „Igen” válasz bejelölése esetén, az „Üzenet küldése” gombra kattintva kijelentem, hogy az OTP Bank Nyrt. Adatkezelési tájékoztatójának tartalmát megismertem és tudomásul vettem.

Eladó téglalakás leírása

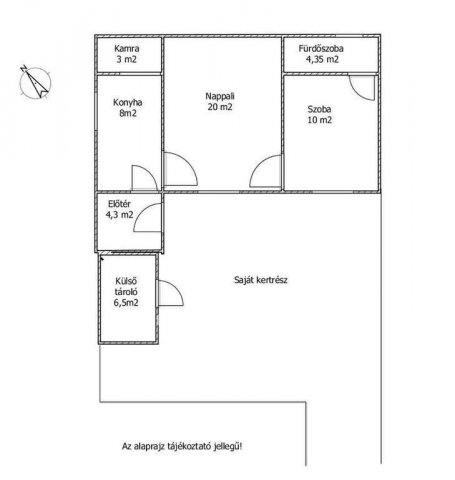
Eladó Budapest, XX., Pesterzsébet nagyon jó közlekedésű, kertvárosias részén br. 63, nettó 49 nm-es, másfél szobás, részben már felújított önálló kis ház. Az ingatlan saját, külön leválasztott bejárattal, kizárólagos használatú kertrésszel rendelkezik. Jelenleg osztatlan közös tulajdon még használati megállapodással, de tavaly júniusban már be lett adva a Földhivatalhoz a társasházzá való nyilvánítási kérelem, az albetétesítés. Felújításra és szigetelésre került a tető, a teljes villanyvezeték hálózat, a külső nyílászárók, belső melegburkolatok. A ház 10 cm-es dryvit szigetelést is kapott. A kert rendezett, új térburkolatos járda került kialakításra. A fürdőszoba még felújítandó - ez már az új tulajdonosra vár!
Kellemes otthon alakítható ki fiatalok, újrakezdők, kis családosok számára. A közelben, sétatávolságra kisboltok, piac, cukrászda, gyógyszertár, iskolák, ovi, bölcsi...
Kiváló közlekedéssel rendelkezik: az 52-es és 2B villamos közvetlen közelségben, a 36, 136, 123, 224, 224E, 966, és 923-as buszok pár perc sétával elérhetők.
Ügyfeleink számára teljes körű ügyintézéssel állunk rendelkezésre. Kínálatunkból választott ingatlan finanszírozásához kedvezményes hitelmegoldásokat kínálunk, illetve az adásvételi szerződés megkötéséhez megbízható ügyvédi közreműködést is tudunk biztosítani!
Ha hirdetésünk felkeltette érdeklődését, kérem hívjon bizalommal a hét bármely napján!

56900000 Ft

Referencia szám: M323895

Hirdetés feltöltve: 2026. 03. 12. Utoljára módosítva: 2026. 04. 01.

2 szobás téglalakások ára Budapesten

Ebből az összehasonlításból megtudhatod, hogyan viszonyul a lakás ára a környékbeli téglalakások átlagos árához. Ez nem azt jelenti, hogy ennyivel olcsóbb vagy drágább, mint amennyit a lakás ér, hanem hogy ennyivel tér el a környékbeli átlagtól.

Ennek a m² ára
XX. kerület m² ár
Budapest m² ár
1161 e Ft
1132 e Ft -3%
1690 e Ft 31%
Ennek az ára
XX. kerület átlagár
Budapest átlagár
56.9 M Ft m Ft
63.5 m Ft 10%
89.8 m Ft 37%

Az ingatlan elhelyezkedése

Cím: Budapest, XX. kerület, földszint

Eladó ingatlanok a környékről

XX. kerület
Eladó téglalakás

Budapest, XX. kerület

82 M Ft
2 szoba
57 m²
XV. kerület, Rákospalota, Bocskai utca
Eladó téglalakás

Budapest, XV. kerület

61.9 M Ft
2 szoba
37 m²
XX. kerület
Eladó téglalakás

Budapest, XX. kerület

71 M Ft
2 szoba
46 m²
XX. kerület
Eladó téglalakás

Budapest, XX. kerület

45.5 M Ft
2 szoba
45 m²
XX. kerület
Eladó téglalakás

Budapest, XX. kerület

99 M Ft
3 szoba
100 m²
XVI. kerület
Eladó családi ház

Budapest, XVI. kerület

117.999 M Ft
4 szoba
140 m²
XVIII. kerület
Eladó ikerház

Budapest, XVIII. kerület

124.9 M Ft
4 szoba
180 m²
XX. kerület
Eladó téglalakás

Budapest, XX. kerület

107 M Ft
4 szoba
87 m²
XX. kerület
Eladó téglalakás

Budapest, XX. kerület

79.9 M Ft
2 + 1 szoba
68 m²
XVII. kerület
Eladó családi ház

Budapest, XVII. kerület

69.9 M Ft
4 szoba
100 m²
XV. kerület
Eladó családi ház

Budapest, XV. kerület

32.9 M Ft
1 szoba
40 m²
XX. kerület
Eladó téglalakás

Budapest, XX. kerület

148 M Ft
4 szoba
126 m²
XVII. kerület
Eladó családi ház

Budapest, XVII. kerület

73.9 M Ft
3 szoba
110 m²
XVI. kerület
Eladó téglalakás

Budapest, XVI. kerület

69.9 M Ft
2 + 1 szoba
40 m²
XVII. kerület
Eladó panellakás

Budapest, XVII. kerület

62.9 M Ft
3 szoba
60 m²
XX. kerület, Tótfalusi Kis Miklós sétány
Eladó téglalakás

Budapest, XX. kerület

76.99 M Ft
1 + 3 szoba
75 m²
X. kerület
Eladó téglalakás

Budapest, X. kerület

55.9 M Ft
2 szoba
53 m²
XX. kerület
Eladó téglalakás

Budapest, XX. kerület

29.9 M Ft
2 szoba
43 m²
XX. kerület
Eladó téglalakás

Budapest, XX. kerület

23 M Ft
1 szoba
32 m²
X. kerület
Eladó panellakás

Budapest, X. kerület

49.9 M Ft
1 szoba
38 m²
XV. kerület
Eladó családi ház

Budapest, XV. kerület

110 M Ft
6 szoba
187 m²
XVIII. kerület
Eladó téglalakás

Budapest, XVIII. kerület

98 M Ft
3 szoba
72 m²
XX. kerület
Eladó téglalakás

Budapest, XX. kerület

73 M Ft
3 szoba
67 m²
XVIII. kerület
Eladó családi ház

Budapest, XVIII. kerület

84.9 M Ft
3 szoba
64 m²

Falusi CSOK ingatlanok

Hajdúbagos
Eladó családi ház

Hajdúbagos

36.9 M Ft
3 szoba
50 m²
Tápióbicske
Eladó ikerház

Tápióbicske

93.5 M Ft
7 szoba
136 m²
Ceglédbercel
Eladó családi ház

Ceglédbercel

79.9 M Ft
5 szoba
140 m²
Aranyosgadány
Eladó családi ház

Aranyosgadány

24.9 M Ft
2 szoba
70 m²
Nagyréde
Eladó családi ház

Nagyréde

69.5 M Ft
4 szoba
110 m²
Ábrahámhegy
Eladó családi ház

Ábrahámhegy

139 M Ft
4 szoba
106 m²
Bag
Eladó családi ház

Bag

110 M Ft
5 szoba
320 m²
Ceglédbercel
Eladó családi ház

Ceglédbercel

79.9 M Ft
5 szoba
140 m²