Astora Olive Club House

Eladó téglalakás
Budapest, XX. kerület, 2. emelet

+ 6 kép 1/9
56 900 000 Ft56.9 M Ft 1 161 224 Ft/m2
1 + 1 szoba
49 m²
2. emelet
építés éve:1980

Részletes adatok

Fűtés: Gázkazán
Emelet: 2. emelet
Energetikai besorolás: Nem adta meg a hirdető

Az OTP Bank lakáshitel ajánlataFizetett hirdetés

+36 30 400
Papp-Horváth Katalin
Otp Ingatlanpont Falk Miksa

Érdekel az OTP Bank kedvezményes lakáshitel ajánlata? *

* A kérdésre „Igen” válasz bejelölése esetén, az „Üzenet küldése” gombra kattintva kijelentem, hogy az OTP Bank Nyrt. Adatkezelési tájékoztatójának tartalmát megismertem és tudomásul vettem.

Eladó téglalakás leírása

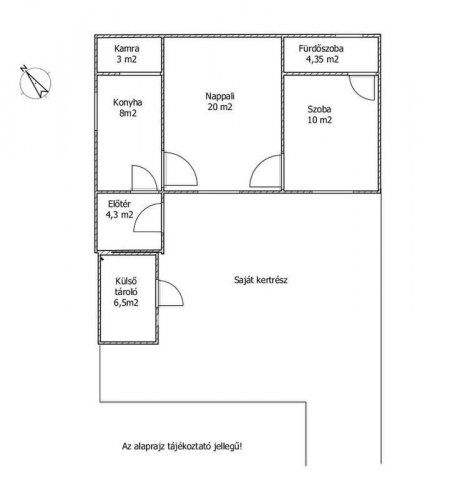
Eladó Budapest, XX., Pesterzsébet nagyon jó közlekedésű, kertvárosias részén egy br. 63, nettó 49 nm-es, másfél szobás, részben már felújított önálló kis ház. Az ingatlan saját, külön leválasztott bejárattal, kizárólagos használatú kertrésszel rendelkezik. Jelenleg osztatlan közös tulajdon még használati megállapodással, de tavaly júniusban már be lett adva a Földhivatalhoz a társasházzá való nyilvánítási kérelem, az albetétesítés. Felújításra és szigetelésre került a tető, a teljes villanyvezeték hálózat, a külső nyílászárók, belső melegburkolatok. A ház 10 cm-es dryvit szigetelést is kapott. A fürdőszoba még felújítandó - ez már az új tulajdonosra vár!
Kellemes otthon alakítható ki fiatalok, újrakezdők, kis családosok számára. A közelben, sétatávolságra kisboltok, piac, cukrászda, gyógyszertár, iskolák, ovi, bölcsi...
Kiváló közlekedéssel rendelkezik: az 52-es és 2B villamos közvetlen közelségben, a 36, 136, 123, 224, 224E, 966, és 923-as buszok pár perc sétával elérhetők.
Ügyfeleink számára teljes körű ügyintézéssel állunk rendelkezésre. Kínálatunkból választott ingatlan finanszírozásához kedvezményes hitelmegoldásokat kínálunk, illetve az adásvételi szerződés megkötéséhez megbízható ügyvédi közreműködést is tudunk biztosítani!
Ha hirdetésünk felkeltette érdeklődését, kérem hívjon bizalommal a hét bármely napján!

Referencia szám: M323895

Hirdetés feltöltve: 2026. 03. 06. Utoljára módosítva: 2026. 03. 22.

2 szobás téglalakások ára Budapesten

Ebből az összehasonlításból megtudhatod, hogyan viszonyul a lakás ára a környékbeli téglalakások átlagos árához. Ez nem azt jelenti, hogy ennyivel olcsóbb vagy drágább, mint amennyit a lakás ér, hanem hogy ennyivel tér el a környékbeli átlagtól.

Ennek a m² ára
XX. kerület m² ár
Budapest m² ár
1161 e Ft
1136 e Ft -2%
1693 e Ft 31%
Ennek az ára
XX. kerület átlagár
Budapest átlagár
56.9 M Ft m Ft
63.2 m Ft 10%
90.2 m Ft 37%

Az ingatlan elhelyezkedése

Cím: Budapest, XX. kerület, 2. emelet

Eladó ingatlanok a környékről

XX. kerület
Eladó téglalakás

Budapest, XX. kerület

71 M Ft
2 szoba
46 m²
XX. kerület
Eladó téglalakás

Budapest, XX. kerület

45.5 M Ft
2 szoba
45 m²
XVII. kerület, Rákoshegy
Eladó családi ház

Budapest, XVII. kerület

158.9 M Ft
5 szoba
148 m²
XX. kerület
Eladó téglalakás

Budapest, XX. kerület

23 M Ft
1 szoba
32 m²
XX. kerület, Pacsirtatelep
Eladó téglalakás

Budapest, XX. kerület

83.9 M Ft
3 szoba
100 m²
XX. kerület
Eladó téglalakás

Budapest, XX. kerület

107 M Ft
4 szoba
87 m²
XX. kerület, Erzsébetfalva
Eladó téglalakás

Budapest, XX. kerület

71 M Ft
2 szoba
46 m²
XV. kerület, Rákospalota
Eladó téglalakás

Budapest, XV. kerület

66.9 M Ft
3 szoba
57 m²
XVII. kerület
Eladó téglalakás

Budapest, XVII. kerület

99.9 M Ft
3 szoba
78 m²
II. kerület
Eladó téglalakás

Budapest, II. kerület

184 M Ft
3 szoba
84 m²
XIV. kerület, Alsórákos, Dorozsmai utca
Eladó téglalakás

Budapest, XIV. kerület

94.9 M Ft
2 szoba
50 m²
XX. kerület
Eladó téglalakás

Budapest, XX. kerület

73.5 M Ft
3 szoba
66 m²
XX. kerület
Eladó téglalakás

Budapest, XX. kerület

148 M Ft
4 szoba
126 m²
XX. kerület
Eladó téglalakás

Budapest, XX. kerület

85 M Ft
3 szoba
70 m²
VI. kerület
Eladó téglalakás

Budapest, VI. kerület

215 M Ft
4 szoba
117 m²
VIII. kerület
Eladó téglalakás

Budapest, VIII. kerület

59 M Ft
1 szoba
30 m²
XX. kerület
Eladó téglalakás

Budapest, XX. kerület

25.5 M Ft
1 szoba
25 m²
XX. kerület
Eladó téglalakás

Budapest, XX. kerület

99.9 M Ft
659 m²
452 m²
XX. kerület
Eladó téglalakás

Budapest, XX. kerület

107 M Ft
4 szoba
87 m²
XVI. kerület, Sashalom
Eladó családi ház

Budapest, XVI. kerület

190 M Ft
7 szoba
360 m²
XV. kerület, Rákospalota
Eladó téglalakás

Budapest, XV. kerület

67 M Ft
2 + 1 szoba
57 m²
XX. kerület, Erzsébetfalva
Eladó téglalakás

Budapest, XX. kerület

148 M Ft
4 szoba
126 m²
VII. kerület
Eladó téglalakás

Budapest, VII. kerület

43.9 M Ft
1 szoba
29 m²
XX. kerület
Eladó téglalakás

Budapest, XX. kerület

79.9 M Ft
2 + 1 szoba
68 m²

Falusi CSOK ingatlanok

Darnózseli
Eladó családi ház

Darnózseli

69.9 M Ft
4 szoba
104 m²
Balatonszárszó
Eladó családi ház

Balatonszárszó

178 M Ft
6 szoba
260 m²
Tiszasziget, Sziget lakópark
Eladó sorház

Tiszasziget

33.9 M Ft
2 szoba
48 m²
Mecseknádasd
Eladó családi ház

Mecseknádasd

61.875 M Ft
6 szoba
132 m²
Nagyréde
Eladó családi ház

Nagyréde

69.5 M Ft
4 szoba
110 m²
Somogyhárságy
Eladó családi ház

Somogyhárságy

183.75 M Ft
5 szoba
250 m²
Balatonszemes
Eladó téglalakás

Balatonszemes

119.9 M Ft
2 szoba
81 m²
Segesd
Eladó családi ház

Segesd

14.3 M Ft
3 szoba
100 m²