Astora Márvány8

Eladó téglalakás
Budapest, XX. kerület, 9. emelet

+ 12 kép 1/15
59 500 000 Ft59.5 M Ft 1 166 667 Ft/m2
2 szoba
51 m²
9. emelet
építés éve:1987

Részletes adatok

Fűtés: Távfűtés
Emelet: 9. emelet
Extrák: Lift
Energetikai besorolás: Nem adta meg a hirdető

Az OTP Bank lakáshitel ajánlataFizetett hirdetés

+36 30 613
Kissné Pergő Viktória
Szigetszentmiklós OTP Ip

Érdekel az OTP Bank kedvezményes lakáshitel ajánlata? *

* A kérdésre „Igen” válasz bejelölése esetén, az „Üzenet küldése” gombra kattintva kijelentem, hogy az OTP Bank Nyrt. Adatkezelési tájékoztatójának tartalmát megismertem és tudomásul vettem.

Eladó téglalakás leírása

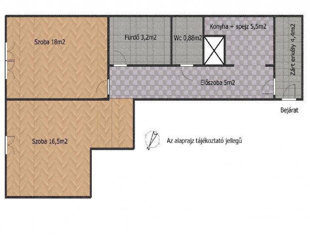
Eladó 2 szobás, felújított panellakás Budapest XX. kerületének szívében, 9. emelet, remek állapot, kiváló közlekedés!

Budapest XX. kerületének központi részén kínálunk megvételre egy 51 m2-es, 9. emeleti, 2 szobás, összkomfortos lakást, mely jó műszaki állapotban van. így akár azonnal költözhető, apró ráncfelvarrással, tisztasági festéssel.

Felújítások és műszaki jellemzők:
Hőszigetelt, új modern műanyag nyílászárók, és bejárati ajtó, új hideg- és meleg burkolatok a vizes helyiségekben és a szobákban egyaránt. Az elektromos hálózat teljes körű felújításon esett át: a vezetékeket újrahúzták, korszerű rézvezetékek kerültek beépítésre. A rendszer FI relével lett ellátva, a rendelkezésre álló teljesítmény pedig 1×16 amperre lett kialakítva.

Alacsony költségű távfűtés, jól szabályozható, kiszámítható:

Közös költség 14.000Ft, Rezsi havi szinten kb 20.000 Ft, télen nyáron.

A lépcsőház rendezett, tiszta, az épületben 2 lift segíti a kényelmes közlekedést.

Környék és elhelyezkedés:

A lakás kiváló elhelyezkedésű:

Bevásárlási lehetőségek (kisboltok, szupermarketek, plázák) a közelben.
Óvoda, iskola, orvosi rendelő, patika gyalogosan elérhető.

Kiváló tömegközlekedés: több busz- és villamosjárat, gyors eljutás a belvárosba.

Autósok számára az autópályák könnyen elérhetők, így agglomerációs kapcsolat is kiváló.

Kinek ajánljuk:

Ez a lakás ideális választás lehet:

fiatal pároknak első lakásként, idősebbeknek, akik jó közlekedésű, mégis nyugodt otthont keresnek.

Befektetőknek, kiadásra, a felújítási igény hiánya miatt azonnal hasznosítható. Az OTP Bankcsoport teljes körű ügyintézéssel áll az eladók és a vevők rendelkezésére! A kínálatunkból választott ingatlan finanszírozásához kedvezményes hitelkonstrukciókat kínálunk. Az adásvételi szerződés megkötéséhez igény szerint megbízható ügyvédi közreműködést biztosítunk és segítséget nyújtunk az adásvételhez kapcsolódó ügyek intézéséhez. Referenciaszám: M315810

Hirdetés feltöltve: 2026. 03. 04. Utoljára módosítva: 2026. 03. 04.

2 szobás téglalakások ára Budapesten

Ebből az összehasonlításból megtudhatod, hogyan viszonyul a lakás ára a környékbeli téglalakások átlagos árához. Ez nem azt jelenti, hogy ennyivel olcsóbb vagy drágább, mint amennyit a lakás ér, hanem hogy ennyivel tér el a környékbeli átlagtól.

Ennek a m² ára
XX. kerület m² ár
Budapest m² ár
1167 e Ft
1142 e Ft -2%
1644 e Ft 29%
Ennek az ára
XX. kerület átlagár
Budapest átlagár
59.5 M Ft m Ft
63.6 m Ft 6%
247.4 m Ft 76%

Az ingatlan elhelyezkedése

Cím: Budapest, XX. kerület, 9. emelet

Eladó ingatlanok a környékről

X. kerület
Eladó ikerház

Budapest, X. kerület

145 M Ft
4 + 1 szoba
122 m²
V. kerület
Eladó téglalakás

Budapest, V. kerület

89.9 M Ft
1 szoba
43 m²
XXIII. kerület
Eladó telek

Budapest, XXIII. kerület

94.9 M Ft
1240 m²
0 m²
VII. kerület
Eladó téglalakás

Budapest, VII. kerület

89.9 M Ft
4 szoba
70 m²
XX. kerület
Eladó téglalakás

Budapest, XX. kerület

148 M Ft
4 szoba
126 m²
XIV. kerület
Eladó téglalakás

Budapest, XIV. kerület

75 M Ft
2 szoba
39 m²
XX. kerület
Eladó téglalakás

Budapest, XX. kerület

85 M Ft
3 szoba
70 m²
XX. kerület
Eladó téglalakás

Budapest, XX. kerület

79 M Ft
3 szoba
66 m²
XX. kerület, Tótfalusi Kis Miklós sétány
Eladó téglalakás

Budapest, XX. kerület

76.99 M Ft
1 + 3 szoba
75 m²
XX. kerület
Eladó téglalakás

Budapest, XX. kerület

73 M Ft
3 szoba
67 m²
XX. kerület, Pacsirtatelep
Eladó téglalakás

Budapest, XX. kerület

83.9 M Ft
3 szoba
100 m²
XIV. kerület, Alsórákos
Eladó téglalakás

Budapest, XIV. kerület

129 M Ft
3 szoba
92 m²
XI. kerület
Eladó ipari ingatlan

Budapest, XI. kerület

29.9 M Ft
65 m²
XX. kerület, Erzsébetfalva
Eladó téglalakás

Budapest, XX. kerület

148 M Ft
4 szoba
126 m²
XX. kerület
Eladó téglalakás

Budapest, XX. kerület

59.9 M Ft
2 szoba
62 m²
VII. kerület
Eladó téglalakás

Budapest, VII. kerület

104 M Ft
5 szoba
129 m²
XX. kerület
Eladó téglalakás

Budapest, XX. kerület

73.5 M Ft
3 szoba
66 m²
VIII. kerület
Eladó téglalakás

Budapest, VIII. kerület

0.23 M Ft
1 + 1 szoba
40 m²
XX. kerület
Eladó téglalakás

Budapest, XX. kerület

114.9 M Ft
659 m²
452 m²
IX. kerület
Eladó téglalakás

Budapest, IX. kerület

85.7 M Ft
2 szoba
52 m²
XX. kerület
Eladó téglalakás

Budapest, XX. kerület

23 M Ft
1 szoba
32 m²
IX. kerület
Eladó téglalakás

Budapest, IX. kerület

139.5 M Ft
2 szoba
52 m²
XIII. kerület
Eladó téglalakás

Budapest, XIII. kerület

149 M Ft
3 szoba
87 m²
XX. kerület
Eladó téglalakás

Budapest, XX. kerület

85 M Ft
3 szoba
70 m²

Falusi CSOK ingatlanok

Pécsvárad
Eladó családi ház

Pécsvárad

189 M Ft
7 szoba
618 m²
Csővár
Eladó családi ház

Csővár

62 M Ft
4 szoba
137 m²
Szigetcsép
Eladó családi ház

Szigetcsép

110 M Ft
3 szoba
137 m²
Újszilvás
Eladó családi ház

Újszilvás

49.9 M Ft
8 szoba
310 m²
Felsőlajos
Eladó családi ház

Felsőlajos

100 M Ft
4 szoba
140 m²
Rétság
Eladó téglalakás

Rétság

39.9 M Ft
2 szoba
55 m²
Bugac
Eladó családi ház

Bugac

17 M Ft
3 szoba
80 m²
Halimba
Eladó családi ház

Halimba

59.9 M Ft
6 szoba
182 m²