BAM Living

Eladó téglalakás
Budapest, XIII. kerület, Sorház

+ 17 kép 1/20
102 000 000 Ft102 M Ft 1 416 667 Ft/m2
2 + 1 szoba
72 m2
Sorház
építés éve:1930

Részletes adatok

Állapot: Felújítandó
Fűtés: Távfűtés
Emelet: 3. emelet
Extrák: Lift
Energetikai besorolás: Nem adta meg a hirdető

Az OTP Bank lakáshitel ajánlataFizetett hirdetés

+36 30 870
Havas János
referens

Érdekel az OTP Bank kedvezményes lakáshitel ajánlata? *

* A kérdésre „Igen” válasz bejelölése esetén, az „Üzenet küldése” gombra kattintva kijelentem, hogy az OTP Bank Nyrt. Adatkezelési tájékoztatójának tartalmát megismertem és tudomásul vettem.

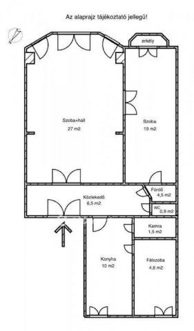
Eladó téglalakás leírása

FELÚJÍTANDÓ INGATLAN ÚJLIPÓTVÁROS SZÍVÉBEN!
Eladó Budapest XIII. kerületének egyik legnépszerűbb területén, Újlipótvárosban, egy 72 m2-es, erkélyes lakás.
Az ingatlan egy Bauhaus stílusú, liftes társasház 3. emeletén található.
A lakásba a felújított, lépcsőházból egy elegáns kétszárnyú ajtón keresztül juthatunk be. A felújítandó ingatlanban 2,5 szoba hall, konyha, spájz, fürdőszoba, külön WC található.
Az utcára néző szobák és az erkély délkeleti fekvésűek. A északnyugati tájolású félszoba és a konyha egy rendezett belső udvarra néznek.
A fürdőszoba az előszobából és az egyik szobából is megközelíthető. A konyhából nyíló félszoba akár egy nagyobb étkezős konyhává is átalakítható igény szerint. Tulajdonosaik nagyon vigyáztak az ingatlanra, melynek köszönhetően (a ház kora ellenére), a szobákban és az előszobában lévő parketták jó állapotban vannak. Fűtése távfűtés.
A lakás jó fekvésének köszönhetően szép, napos, világos otthon kialakítására van lehetőség.
A társasház tiszta, rendezett, a lakóközössége kulturált.
A lokáció kitűnő, közel a Jászai Mari térhez, Duna-parthoz, Szent István parkhoz, Nyugati térhez, Westendhez és a Margitszigethez. Tömegközlekedéssel a város minden pontja rövid időn belül elérhető.
Amennyiben hirdetésem felkeltette érdeklődését, vagy szeretné megtekinteni az ingatlant, várom hívását!

Referencia szám: M316976

Hirdetés feltöltve: 2026. 01. 10. Utoljára módosítva: 2026. 01. 10.

3 szobás téglalakások ára Budapesten

Ebből az összehasonlításból megtudhatod, hogyan viszonyul a lakás ára a környékbeli téglalakások átlagos árához. Ez nem azt jelenti, hogy ennyivel olcsóbb vagy drágább, mint amennyit a lakás ér, hanem hogy ennyivel tér el a környékbeli átlagtól.

Ennek a m² ára
XIII. kerület m² ár
Budapest m² ár
1417 e Ft
1768 e Ft 20%
1693 e Ft 16%
Ennek az ára
XIII. kerület átlagár
Budapest átlagár
102 M Ft m Ft
130.2 m Ft 22%
130.6 m Ft 22%

Az ingatlan elhelyezkedése

Cím: Budapest, XIII. kerület, Sorház

Eladó ingatlanok a környékről

Eladó téglalakás
Eladó téglalakás

XI. kerület, Gellérthegy, Gyula utca

130 M Ft
2 szoba
56 m2
Eladó téglalakás
Eladó téglalakás

XIV. kerület, Kiszugló, Kövér Lajos utca

168 M Ft
3 + 1 szoba
84 m2
Eladó téglalakás
Eladó téglalakás

XIII. kerület, Angyalföld, Dévai utca

104.801 M Ft
3 szoba
52 m2
Eladó téglalakás
Eladó téglalakás

XIII. kerület, Angyalföld, Dévai utca

104.139 M Ft
3 szoba
68 m2
Eladó téglalakás
Eladó téglalakás

III. kerület, Óbudaisziget, Folyamőr utca

72.9 M Ft
1 szoba
25 m2
Eladó téglalakás
Eladó téglalakás

XIII. kerület

111.34 M Ft
2 szoba
55 m2
Eladó téglalakás
Eladó téglalakás

VII. kerület, Belső Erzsébetváros, Erzsébet körút

160 M Ft
3 szoba
88 m2
Eladó téglalakás
Eladó téglalakás

XIII. kerület, Angyalföld, Kucsma utca

88.348 M Ft
4 szoba
97 m2
Eladó téglalakás
Eladó téglalakás

XIII. kerület, Újlipótváros

179.9 M Ft
4 + 1 szoba
155 m2
Eladó téglalakás
Eladó téglalakás

VII. kerület

45 M Ft
1 szoba
21 m2
Eladó családi ház
Eladó családi ház

XIX. kerület, Kispest, Nagysándor József utca

28.3 M Ft
1 szoba
19 m2
Eladó téglalakás
Eladó téglalakás

XIII. kerület, Vizafogó, Népfürdő utca 47

78.15 M Ft
2 szoba
43 m2
Eladó téglalakás
Eladó téglalakás

XIII. kerület, Angyalföld, Lomb utca 13

142.5 M Ft
3 szoba
76 m2
Eladó téglalakás
Eladó téglalakás

XIII. kerület

127.12 M Ft
3 szoba
81 m2
Eladó téglalakás
Eladó téglalakás

XIII. kerület, Angyalföld, Dévai utca

114.012 M Ft
3 szoba
52 m2
Eladó téglalakás
Eladó téglalakás

XIII. kerület, Angyalföld, Fiastyúk utca

39.9 M Ft
1 + 1 szoba
34 m2
Eladó téglalakás
Eladó téglalakás

XIII. kerület, Angyalföld, Dévai utca

60.963 M Ft
1 szoba
33 m2
Eladó téglalakás
Eladó téglalakás

XIII. kerület

139.935 M Ft
2 szoba
67 m2
Eladó téglalakás
Eladó téglalakás

IV. kerület, Újpest, Kassai utca

84.9 M Ft
2 + 1 szoba
71 m2
Eladó téglalakás
Eladó téglalakás

XIII. kerület, Angyalföld

84.9 M Ft
5 + 2 szoba
124 m2
Eladó családi ház
Eladó családi ház

XXII. kerület, Budafok, Baross utca

199 M Ft
6 + 1 szoba
200 m2
Eladó téglalakás
Eladó téglalakás

XIII. kerület, Vizafogó, Népfürdő utca 47

138.3 M Ft
3 szoba
81 m2
Eladó téglalakás
Eladó téglalakás

XIII. kerület, Vizafogó, Dráva utca

99 M Ft
3 + 1 szoba
98 m2
Eladó téglalakás
Eladó téglalakás

VII. kerület, Belső Erzsébetváros, Erzsébet körút

89.9 M Ft
1 + 1 szoba
71 m2

Falusi CSOK ingatlanok

Eladó családi ház
Eladó családi ház

Devecser

62.49 M Ft
5 szoba
180 m2
Eladó családi ház
Eladó családi ház

Szabolcs

64.9 M Ft
6 szoba
272 m2
Eladó családi ház
Eladó családi ház

Devecser

42.9 M Ft
3 szoba
100 m2
Eladó családi ház
Eladó családi ház

Helesfa

17.999 M Ft
2 szoba
74 m2
Eladó családi ház
Eladó családi ház

Palkonya

137 M Ft
6 szoba
160 m2
Eladó családi ház
Eladó családi ház

Jánosháza

25 M Ft
3 szoba
90 m2
Eladó családi ház
Eladó családi ház

Szentlőrinckáta

17 M Ft
4 szoba
67 m2
Eladó családi ház
Eladó családi ház

Gáborján

5.5 M Ft
2 szoba
68 m2