BAM Living

Eladó téglalakás
Budapest, XII. kerület, Virányos

+ 9 kép 1/12
411 701 850 Ft411.702 M Ft 3 812 054 Ft/m2
3 szoba
108 m²
építés éve:2025

Részletes adatok

Fűtés: Egyéb
Parkolás: Garázs
Extrák: Lift
Energetikai besorolás: Nem adta meg a hirdető

Az OTP Bank lakáshitel ajánlataFizetett hirdetés

+36 70 442
Heinrich Krisztina
Budapest XIII. kerület Pannónia utca 25 - OTP Ingatlanpont Iroda

Érdekel az OTP Bank kedvezményes lakáshitel ajánlata? *

* A kérdésre „Igen” válasz bejelölése esetén, az „Üzenet küldése” gombra kattintva kijelentem, hogy az OTP Bank Nyrt. Adatkezelési tájékoztatójának tartalmát megismertem és tudomásul vettem.

Eladó téglalakás leírása

VIRÁNYOS VILLAPARK - PRÉMIUM OTTHONOK!
Elindult a Virányos Villapark épülő lakásainak értékesítése! Részletes információk, alaprajzok, parkolóhelyek, tárolók a viranyosvillapark oldalon! Várható átadás: 2026. 3. negyedév!
A Virányos Villapark Budapest 12. kerületében, a budai Széll Kálmán térhez közel, mégis csendes környezetben elhelyezkedő prémium minőségű lakópark.
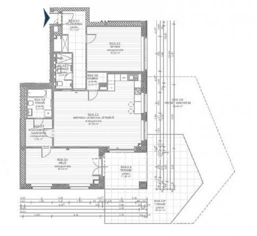
A hirdetésben szereplő lakás, a B épület földszintjén helyezkedik el, DK-i tájolással, 108,48m2 alapterülettel, mely életteret tovább növeli az 51,72m2 alapterületű terasz és a 46,40m2 területű privát kert. A lakás helyiségei: előszoba, amerikai konyhás nappali és étkező, 2 szoba, 2 fürdőszoba, gardrób, kamra, terasz és kert.
A Villaparkban 60-175m2 közötti, N + 1-2-3-4 szobás, kertes, teraszos, erkélyes, tágas tetőteraszos, valamint duplex és penthouse lakások közül választhat. Az elérhető lakásokról érdeklődjön telefonon! A kiválasztott lakáshoz mélygarázs beálló hely és tároló vásárlása kötelező. További beálló helyek és tárolók a készlet erejéig vásárolhatóak.
A villapark főbb jellemzői: parkosított, öntözőrendszerrel ellátott közös kert, csendes környezet, változatos lakás-, terasz- és kertméretek, tágas, napfényes lakások.
A lakások műszaki jellemzői: megújuló energiával előállított hatékony, hőszivattyús hűtő-fűtő rendszer, padlófűtés és mennyezeti fan-coil hűtés a maximális komfort érzetért, lakásonként kialakított hővisszanyerős szellőztetőrendszer az állandó friss levegő biztosításáért, magas minőségű alumínium nyílászárók 3 rétegű üvegezéssel a kiváló hő- és hangszigetelésért, árnyékoló rendszer az optimális fényviszonyok eléréséért, audió-videó kaputelefon, személyre szabható okosotthon rendszer előkészítés, amely lehetővé teszi a lakás teljeskörű vezérlését.
Az ingatlan közvetlen környezetében számos magánóvoda és általános iskola, gimnázium található. Bevásárlási lehetőségként a Budagyöngye Bevásárlóközpont és a szintén közeli Mammut Bevásárló- és Szórakoztató Központ is rendelkezésre áll.
A Virányos Villapark tömegközlekedési eszközzel is könnyen megközelíthető, az 56-os, 59-es, 61-es villamosok, a 22-es, 91-es, 155-ös és 156-os buszok megállói pár perc sétatávolságra találhatók.

Hirdetés feltöltve: 2026. 01. 08. Utoljára módosítva: 2026. 02. 11.

3 szobás téglalakások ára Budapesten

Ebből az összehasonlításból megtudhatod, hogyan viszonyul a lakás ára a környékbeli téglalakások átlagos árához. Ez nem azt jelenti, hogy ennyivel olcsóbb vagy drágább, mint amennyit a lakás ér, hanem hogy ennyivel tér el a környékbeli átlagtól.

Ennek a m² ára
Virányos m² ár
XII. kerület m² ár
Budapest m² ár
3812 e Ft
3311 e Ft -15%
2422 e Ft -57%
1698 e Ft -124%
Ennek az ára
Virányos átlagár
XII. kerület átlagár
Budapest átlagár
411.702 M Ft m Ft
292.7 m Ft -41%
206 m Ft -100%
131.4 m Ft -213%

Az ingatlan elhelyezkedése

Cím: Budapest, XII. kerület, Virányos

Eladó ingatlanok a környékről

XII. kerület
Eladó téglalakás

Budapest, XII. kerület

199.9 M Ft
6 szoba
145 m²
XII. kerület, Németvölgy, Királyhágó tér 6-7
Eladó téglalakás

Budapest, XII. kerület

179.498 M Ft
3 szoba
72 m²
XII. kerület
Eladó téglalakás

Budapest, XII. kerület

475 M Ft
5 szoba
185 m²
XVII. kerület
Eladó panellakás

Budapest, XVII. kerület

83.9 M Ft
1 + 2 szoba
73 m²
XII. kerület, Krisztinaváros, Városmajor utca
Eladó téglalakás

Budapest, XII. kerület

700 M Ft
20 + 5 szoba
849 m²
VII. kerület, Belső Erzsébetváros, Akácfa utca
Eladó téglalakás

Budapest, VII. kerület

139.9 M Ft
3 szoba
73 m²
XIV. kerület
Eladó panellakás

Budapest, XIV. kerület

83.9 M Ft
1 + 2 szoba
70 m²
VI. kerület, Belső Terézváros, Paulay Ede 18
Eladó téglalakás

Budapest, VI. kerület

309 M Ft
3 szoba
104 m²
VII. kerület, Belső Erzsébetváros, Kertész
Eladó téglalakás

Budapest, VII. kerület

52.9 M Ft
1 szoba
30 m²
XIV. kerület
Eladó ikerház

Budapest, XIV. kerület

159.9 M Ft
4 szoba
113 m²
VII. kerület, Belső Erzsébetváros, Kertész utca
Eladó téglalakás

Budapest, VII. kerület

55.9 M Ft
1 szoba
33 m²
XIII. kerület, Vizafogó, Visegrádi utca 85
Eladó téglalakás

Budapest, XIII. kerület

58.5 M Ft
1 szoba
38 m²
XII. kerület
Eladó téglalakás

Budapest, XII. kerület

321 M Ft
3 szoba
108 m²
VII. kerület, Külső Erzsébetváros, Dohány utca
Eladó téglalakás

Budapest, VII. kerület

56 M Ft
1 szoba
34 m²
XII. kerület
Eladó téglalakás

Budapest, XII. kerület

650 M Ft
3 szoba
120 m²
XII. kerület
Eladó téglalakás

Budapest, XII. kerület

175.6 M Ft
2 szoba
53 m²
VII. kerület, Belső Erzsébetváros, Kertész
Eladó téglalakás

Budapest, VII. kerület

49.9 M Ft
1 szoba
28 m²
XIV. kerület, Alsórákos, Dorozsmai utca 203-209
Eladó téglalakás

Budapest, XIV. kerület

94.9 M Ft
2 szoba
50 m²
XII. kerület
Eladó téglalakás

Budapest, XII. kerület

359.923 M Ft
5 szoba
122 m²
VI. kerület, Külső Terézváros, Izabella utca
Eladó téglalakás

Budapest, VI. kerület

49.9 M Ft
1 szoba
31 m²
XII. kerület
Eladó téglalakás

Budapest, XII. kerület

289.56 M Ft
4 szoba
169 m²
XII. kerület, Orbánhegy
Eladó téglalakás

Budapest, XII. kerület

399 M Ft
4 szoba
165 m²
XII. kerület, Németvölgy, Fodor utca
Eladó téglalakás

Budapest, XII. kerület

47.8 M Ft
1 szoba
31 m²
XII. kerület
Eladó téglalakás

Budapest, XII. kerület

383.914 M Ft
4 szoba
140 m²

Falusi CSOK ingatlanok

Táborfalva
Eladó családi ház

Táborfalva

36.9 M Ft
1 + 2 szoba
89 m²
Szigetbecse
Eladó családi ház

Szigetbecse

72 M Ft
4 szoba
123 m²
Máriapócs
Eladó családi ház

Máriapócs

22 M Ft
2 szoba
84 m²
Nagyharsány
Eladó téglalakás

Nagyharsány

22.5 M Ft
3 szoba
71 m²
Újlengyel
Eladó ikerház

Újlengyel

78 M Ft
4 szoba
88 m²
Pécsvárad
Eladó családi ház

Pécsvárad

140 M Ft
2 szoba
79 m²
Helesfa
Eladó családi ház

Helesfa

17.999 M Ft
2 szoba
74 m²
Badacsonytomaj
Eladó családi ház

Badacsonytomaj

124.9 M Ft
4 + 1 szoba
138 m²