Metrodom

Eladó téglalakás
Budapest, XII. kerület, 1. emelet

+ 17 kép 1/20
130 000 000 Ft130 M Ft 1 300 000 Ft/m2
2 szoba
100 m²
1. emelet
építés éve:1940

Részletes adatok

Állapot: Felújítandó
Telekméret: 1100 m2
Fűtés: Egyéb
Emelet: 1. emelet
Parkolás: Kocsibeálló
Energetikai besorolás: Nem adta meg a hirdető

Az OTP Bank lakáshitel ajánlataFizetett hirdetés

+36 30 638
László István
referens

Érdekel az OTP Bank kedvezményes lakáshitel ajánlata? *

* A kérdésre „Igen” válasz bejelölése esetén, az „Üzenet küldése” gombra kattintva kijelentem, hogy az OTP Bank Nyrt. Adatkezelési tájékoztatójának tartalmát megismertem és tudomásul vettem.

Eladó téglalakás leírása

Eladásra kínálunk Kútvölgy kedvelt részén egy Ősfás 1100 m2 területen elhelyezkedő patinás házban található 100 m2 panorámás lakást. Az ingatlanhoz 150-200 m2 kertrész is tartozik.

A 2 szobás 100 m2-es lakás az épület első emeltén helyezkedik el.

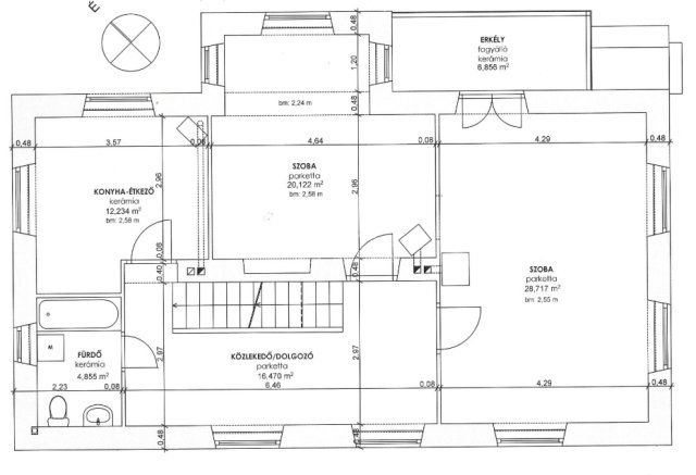
Lakás elrendezése:

Földszint:
• Lépcsőház - gardrob 12,7 m2
• Tornác 5,5 m2

Emelet:
• 2 db. szoba 20,1 m2 + 28,7 m2
• Közlekedő -dolgozó sarok 16,47 m2
• Konyha 12,2 m2
• Fürdőszoba 4,8 m2
• Erkély 7 m2

Kert:
• 150 - 200 m2 kertrész

A ház 1940-ben épült 55 cm vastag téglafalakkal. Az épület szerkezetileg jó állapotú – feljutása és korszerűsítése esedékes.

Az ingatlant fiatal pároknak -családoknak egyaránt ajánljuk.

A társasházban párhuzamosan kerül értékesítésre a hírdetésben szereplő 100 m2 és az az alatta található 93 m2 db.földszinti lakás.

Amennyiben Önnek a vásárláshoz szüksége lenne hitelre egyedi kedvezménnyel,kezdeményezheti a kapcsolatfelvételt bankfüggetlen hitelügyintézőinkkel, teljesen DÍJMENTESEN.

Az ingatlan részletes ismertetése és bemutatása előre egyeztetett időpontban lehetséges, melyet nagyon rugalmasan kezelünk, akár HÉTVÉGÉN is.

Amennyiben felkeltette az érdeklődését, további kérdéseivel kapcsolatban várom jelentkezését! ...TOVÁBBI, TÖBBEZRES INGATLAN KÍNÁLAT: www.gdn-ingatlan.hu - GDN azonosító: 388132

Hirdetés feltöltve: 2025. 10. 07. Utoljára módosítva: 2026. 04. 01.

2 szobás téglalakások ára Budapesten

Ebből az összehasonlításból megtudhatod, hogyan viszonyul a lakás ára a környékbeli téglalakások átlagos árához. Ez nem azt jelenti, hogy ennyivel olcsóbb vagy drágább, mint amennyit a lakás ér, hanem hogy ennyivel tér el a környékbeli átlagtól.

Ennek a m² ára
XII. kerület m² ár
Budapest m² ár
1300 e Ft
2006 e Ft 35%
1691 e Ft 23%
Ennek az ára
XII. kerület átlagár
Budapest átlagár
130 M Ft m Ft
120 m Ft -8%
89.4 m Ft -45%

Az ingatlan elhelyezkedése

Cím: Budapest, XII. kerület, 1. emelet

Eladó ingatlanok a környékről

XII. kerület, Széchenyihegy, Ágnes köz
Eladó téglalakás

Budapest, XII. kerület

203 M Ft
3 szoba
72 m²
V. kerület, Lipótváros, Ferenciek tere
Eladó téglalakás

Budapest, V. kerület

59.9 M Ft
1 szoba
28 m²
II. kerület, Rézmál, Muhar utca
Eladó családi ház

Budapest, II. kerület

208.8 M Ft
5 + 1 szoba
260 m²
XII. kerület, Széchenyihegy, Ágnes köz
Eladó téglalakás

Budapest, XII. kerület

277 M Ft
3 szoba
98 m²
XII. kerület
Eladó téglalakás

Budapest, XII. kerület

598 M Ft
4 szoba
146 m²
V. kerület, Lipótváros, Nádor utca
Eladó téglalakás

Budapest, V. kerület

75.362 M Ft
1 + 1 szoba
44 m²
VIII. kerület, Üllői út
Eladó téglalakás

Budapest, VIII. kerület

169.5 M Ft
6 szoba
113 m²
XII. kerület, Krisztinaváros, Városmajor utca
Eladó téglalakás

Budapest, XII. kerület

700 M Ft
20 + 5 szoba
849 m²
VII. kerület, Belső Erzsébetváros, Garay utca
Eladó téglalakás

Budapest, VII. kerület

120 M Ft
3 szoba
118 m²
VIII. kerület, Corvin köz
Eladó téglalakás

Budapest, VIII. kerület

84.9 M Ft
2 + 1 szoba
52 m²
VI. kerület, Külső Terézváros, Székely Bertalan utca
Eladó téglalakás

Budapest, VI. kerület

51.9 M Ft
1 + 1 szoba
32 m²
VII. kerület, Belső Erzsébetváros, Erzsébet körút
Eladó téglalakás

Budapest, VII. kerület

97.9 M Ft
2 szoba
74 m²
XII. kerület
Eladó téglalakás

Budapest, XII. kerület

359.923 M Ft
5 szoba
122 m²
VI. kerület, Külső Terézváros, Székely Bertalan utca
Eladó téglalakás

Budapest, VI. kerület

99.9 M Ft
2 + 1 szoba
61 m²
II. kerület
Eladó téglalakás

Budapest, II. kerület

1111.589 M Ft
4 szoba
336 m²
VII. kerület, Belső Erzsébetváros, Rottenbiller utca
Eladó téglalakás

Budapest, VII. kerület

115 M Ft
5 szoba
133 m²
XII. kerület, Széchenyihegy, Ágnes köz
Eladó téglalakás

Budapest, XII. kerület

475 M Ft
5 szoba
185 m²
II. kerület, Szemlőhegy, Szász Károly utca
Eladó téglalakás

Budapest, II. kerület

98.8 M Ft
3 szoba
70 m²
VII. kerület, Belső Erzsébetváros, Bethlen Gábor utca
Eladó téglalakás

Budapest, VII. kerület

52.9 M Ft
1 szoba
26 m²
XII. kerület
Eladó téglalakás

Budapest, XII. kerület

203 M Ft
3 szoba
72 m²
XII. kerület
Eladó téglalakás

Budapest, XII. kerület

96.9 M Ft
2 + 1 szoba
82 m²
III. kerület, Békásmegyer, Rókahegyi út
Eladó családi ház

Budapest, III. kerület

550 M Ft
6 szoba
400 m²
XII. kerület
Eladó téglalakás

Budapest, XII. kerület

292.6 M Ft
4 szoba
169 m²
XII. kerület
Eladó téglalakás

Budapest, XII. kerület

175.6 M Ft
2 szoba
53 m²

Falusi CSOK ingatlanok

Pécsvárad
Eladó családi ház

Pécsvárad

64.9 M Ft
4 szoba
120 m²
Nagybaracska
Eladó családi ház

Nagybaracska

35 M Ft
3 szoba
110 m²
Sárosd
Eladó családi ház

Sárosd

21.9 M Ft
3 szoba
86 m²
Balatonszemes
Eladó téglalakás

Balatonszemes

123.3 M Ft
2 szoba
70 m²
Lovasberény
Eladó családi ház

Lovasberény

19.9 M Ft
3 szoba
86 m²
Olaszfa
Eladó családi ház

Olaszfa

21.9 M Ft
2 szoba
0 m²
Balatonakali
Eladó ikerház

Balatonakali

560 M Ft
4 szoba
140 m²
Szabadbattyán
Eladó családi ház

Szabadbattyán

147.99 M Ft
5 szoba
255 m²