Astora Art House

Eladó téglalakás
Budapest, XI. kerület, 5. emelet

+ 17 kép 1/20
188 100 000 Ft188.1 M Ft 2 411 538 Ft/m2
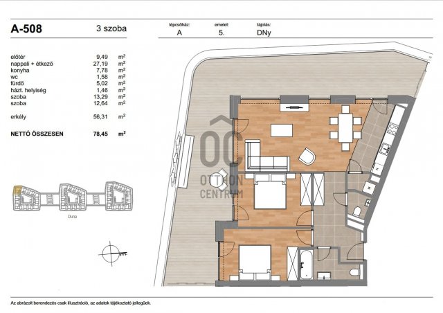
3 szoba
5. emelet
építés éve:2028

Részletes adatok

Fűtés: Egyéb
Emelet: 5. emelet
Közmű: Villany, Csatorna
Energetikai besorolás: Nem adta meg a hirdető

Az OTP Bank lakáshitel ajánlataFizetett hirdetés

+36 70 465
Arany Bálint
referens

Érdekel az OTP Bank kedvezményes lakáshitel ajánlata? *

* A kérdésre „Igen” válasz bejelölése esetén, az „Üzenet küldése” gombra kattintva kijelentem, hogy az OTP Bank Nyrt. Adatkezelési tájékoztatójának tartalmát megismertem és tudomásul vettem.

Eladó téglalakás leírása

Projekt bemutatása

Ott, ahol a természet és a városi élet találkozik.
A budai Duna-parton megvalósuló új prémium fejlesztés a vízparti élet luxusát kínálja modern, elegáns formában.
Tágas teraszok, lenyűgöző panoráma, fenntartható műszaki megoldások – mindez néhány lépésre a folyótól, Buda dinamikusan fejlődő negyedében.

A budai életstílus új dimenziója

Ez a lakópark nem csupán otthon, hanem életérzés.
A teraszról a Duna látványa, a vízpart halk morajlása és a modern városi környezet tökéletes harmóniája adja az itt élők mindennapjainak különleges atmoszféráját.

A projekt két ütemben valósul meg:
- I. ütem: három elegáns, 9 emeletes épület
- II. ütem: három közvetlen vízparti épület, exkluzív kilátással és saját kikötővel

KIVÉTELES LOKÁCIÓ – tökéletes elérhetőség
- XI. kerület, közvetlenül a Duna-parton
- Savoya Park: pár perc sétára
- Etele Plaza: 10 perc autóval
- Kopaszi-gát: mindössze 4 km
- Móricz Zsigmond körtér: 13 perc busszal
- Villamos- és buszmegállók néhány perc sétára, minden szolgáltatás – iskolák, éttermek, bevásárlási lehetőségek – elérhető közelségben.

A környék Buda egyik leggyorsabban fejlődő területe, modern infrastruktúrával, vízparti sétányokkal és zöld parkokkal – a város új, természetközeli központja születik itt.

Kortárs építészet – időtálló elegancia
A lakóépületek modern, letisztult megjelenése a Duna vonalvezetését idézi.
A zöldtetők, parkosított udvarok és természetes anyaghasználat az épített környezet és a természet összhangját teremti meg.
- 2 szintes mélygarázs, elektromos autótöltési előkészítéssel
- Tágas, napfényes teraszok minden lakáshoz
- Háromrétegű nyílászárók, prémium hő- és hangszigeteléssel
- WPC teraszburkolatok, korszerű hőhídmentes homlokzati rendszer
- Közösségi zöldterek és pihenőkertek

MŰSZAKI TARTALOM – a jövő technológiája ma
- A fejlesztés kiemelt hangsúlyt helyez az energiahatékonyságra és a komfortérzetre:
- Környezetbarát levegős hőszivattyús rendszer
- Mennyezeti hűtés-fűtés, helyiségenként szabályozható termosztátokkal
- Okosvezérlés, távvezérelhető hőmérséklet-szabályozás
- Zöldtető és hővisszanyerős szellőzés
- Egyedi mérésű energiafogyasztás minden lakásban

A lakások belső kialakítása válogatott anyagkollekcióból választható, a klasszikus elegancia és a modern minimalizmus stílusában.

Élmény, ami túlmutat az otthon fogalmán

A lakópark lakói a vízpart nyugalmát, a zöld környezet frissességét és a budai életstílus kényelmét élvezhetik nap mint nap.
A saját klubhelyiség és kikötő a vízparti élet exkluzív élményét teszi teljessé.

Ez az a hely, ahol a mindennapok is ünneppé válnak.

VÁRHATÓ ÁTADÁS:

Szerkezetkész: 2027. február
Kulcsrakész: 2028. december

A Duna-part új fejezete most íródik.
Itt nem csupán lakást vásárol – hanem egy életstílust, ami Buda jövőjét határozza meg.

Hirdetés feltöltve: 2026. 04. 01. Utoljára módosítva: 2026. 05. 12.

3 szobás téglalakások ára Budapesten

Ebből az összehasonlításból megtudhatod, hogyan viszonyul a lakás ára a környékbeli téglalakások átlagos árához. Ez nem azt jelenti, hogy ennyivel olcsóbb vagy drágább, mint amennyit a lakás ér, hanem hogy ennyivel tér el a környékbeli átlagtól.

Ennek a m² ára
XI. kerület m² ár
Budapest m² ár
2412 e Ft
1925 e Ft -25%
1694 e Ft -42%
Ennek az ára
XI. kerület átlagár
Budapest átlagár
188.1 M Ft m Ft
144.3 m Ft -30%
132.3 m Ft -42%

Az ingatlan elhelyezkedése

Cím: Budapest, XI. kerület, 5. emelet

Eladó ingatlanok a környékről

XIII. kerület
Eladó téglalakás

Budapest, XIII. kerület

150 M Ft
5 szoba
113 m²
X. kerület
Eladó iroda

Budapest, X. kerület

779 M Ft
1760 m²
1716 m²
XI. kerület, Sasad
Eladó téglalakás

Budapest, XI. kerület

339 M Ft
4 szoba
119 m²
VI. kerület
Eladó téglalakás

Budapest, VI. kerület

82 M Ft
2 szoba
45 m²
XI. kerület
Eladó téglalakás

Budapest, XI. kerület

112.581 M Ft
3 szoba
74 m²
XX. kerület
Eladó családi ház

Budapest, XX. kerület

124.9 M Ft
4 szoba
140 m²
XI. kerület, Kelenföld, Barázda utca
Eladó téglalakás

Budapest, XI. kerület

117 M Ft
1 + 1 szoba
56 m²
XI. kerület, Sasad
Eladó téglalakás

Budapest, XI. kerület

220 M Ft
2 + 1 szoba
76 m²
II. kerület
Eladó téglalakás

Budapest, II. kerület

104 M Ft
3 szoba
57 m²
XI. kerület
Eladó téglalakás

Budapest, XI. kerület

107.431 M Ft
3 szoba
74 m²
VI. kerület
Eladó téglalakás

Budapest, VI. kerület

98 M Ft
2 szoba
70 m²
XI. kerület, Törökbálinti út
Eladó téglalakás

Budapest, XI. kerület

239.9 M Ft
5 szoba
139 m²
XXIII. kerület
Eladó téglalakás

Budapest, XXIII. kerület

39.9 M Ft
3 szoba
38 m²
XI. kerület, Gellérthegy, Buda XI. ker. Gellérthegy
Eladó téglalakás

Budapest, XI. kerület

379 M Ft
5 szoba
123 m²
XVII. kerület
Eladó panellakás

Budapest, XVII. kerület

67.5 M Ft
2 szoba
49 m²
XI. kerület, Sasad
Eladó téglalakás

Budapest, XI. kerület

319 M Ft
5 szoba
186 m²
VII. kerület
Eladó téglalakás

Budapest, VII. kerület

102.9 M Ft
2 + 2 szoba
75 m²
XIX. kerület
Eladó panellakás

Budapest, XIX. kerület

45 M Ft
1 + 2 szoba
53 m²
XX. kerület
Eladó téglalakás

Budapest, XX. kerület

104900 M Ft
4 szoba
88 m²
XI. kerület
Eladó téglalakás

Budapest, XI. kerület

135.138 M Ft
4 szoba
92 m²
XI. kerület, Sasad, Lanka utca
Eladó téglalakás

Budapest, XI. kerület

327 M Ft
4 szoba
130 m²
XIX. kerület
Eladó családi ház

Budapest, XIX. kerület

139 M Ft
5 szoba
155 m²
XI. kerület
Eladó téglalakás

Budapest, XI. kerület

510 M Ft
4 szoba
124 m²
XVIII. kerület
Eladó családi ház

Budapest, XVIII. kerület

30 M Ft
2 + 1 szoba
110 m²

Falusi CSOK ingatlanok

Szabadbattyán
Eladó családi ház

Szabadbattyán

79.6 M Ft
4 szoba
101 m²
Pilisszentkereszt
Eladó családi ház

Pilisszentkereszt

90 M Ft
3 szoba
100 m²
Seregélyes
Eladó családi ház

Seregélyes

71.4 M Ft
3 szoba
120 m²
Kétegyháza
Eladó családi ház

Kétegyháza

21 M Ft
3 szoba
105 m²
Ceglédbercel
Eladó családi ház

Ceglédbercel

39.9 M Ft
3 szoba
55 m²
Rábaszentmihály
Eladó családi ház

Rábaszentmihály

53 M Ft
3 szoba
156 m²
Rakamaz
Eladó családi ház

Rakamaz

86.9 M Ft
5 szoba
280 m²
Ónod
Eladó családi ház

Ónod

14.999 M Ft
3 szoba
80 m²