Seven Pearl

Eladó téglalakás
Budapest, XI. kerület, 9. emelet

+ 3 kép 1/6
420 000 000 Ft420 M Ft 2 545 455 Ft/m2
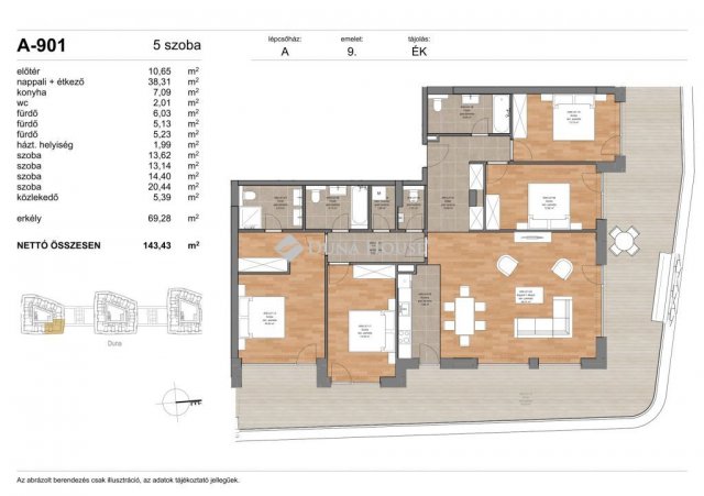
5 szoba
165 m²
9. emelet
építés éve:2028

Részletes adatok

Fűtés: Gázkazán
Emelet: 9. emelet
Extrák: Lift
Energetikai besorolás: Nem adta meg a hirdető

Az OTP Bank lakáshitel ajánlataFizetett hirdetés

3652234102
Lévainé Julika
Duna House - Debrecen, Derék utca

Érdekel az OTP Bank kedvezményes lakáshitel ajánlata? *

* A kérdésre „Igen” válasz bejelölése esetén, az „Üzenet küldése” gombra kattintva kijelentem, hogy az OTP Bank Nyrt. Adatkezelési tájékoztatójának tartalmát megismertem és tudomásul vettem.

Eladó téglalakás leírása

Otthon a Duna-parton, ahol a városi élet találkozik a nyugalommal

A lakópark Budapest XI. kerületében, a Savoya Park közelében a Duna-part fejlődő lokációjában valósul meg. A több mint 600 modern, energiahatékony otthonból álló fejlesztés egyedülálló életminőséget kínál azoknak, akik a városi pezsgést szeretnék a vízpart közelségével ötvözni.

A lakóparkban a prémium kialakítás, az átgondolt építészeti megoldások és a fenntartható technológiák harmonikusan találkoznak. Az ingatlan nem csupán lakóhely egy különleges életérzés, ahol a modern városi élet és a természet közelsége tökéletes egyensúlyba kerül.

Kiváló elhelyezkedés

A lakópark közvetlenül a Duna-part közelében, Budapest egyik legdinamikusabban fejlődő városrészében épül. A környék kiváló infrastruktúrával, gyors közlekedési kapcsolatokkal és számos rekreációs lehetőséggel várja az itt élőket.A projekt II. Ütemében megvalósuló 3 épülettömb közvetlen a Duna-parton, elvehetetlen dunai panorámával ! 

Fenntartható kényelem

Az épületek korszerű, levegős hőszivattyús fűtésihűtési rendszerrel készülnek, amely energiahatékony működést és alacsony fenntartási költségeket biztosít. A lakásonként szabályozható hőmérséklet minden évszakban maximális komfortot nyújt.

Praktikus parkolás és tárolás

A mindennapi kényelmet mélygarázsban kialakított parkolóhelyek és opcionálisan megvásárolható tárolóhelyiségek teszik teljessé.

Sokszínű lakáskínálat

A lakóparkban változatos lakástípusok közül választhatnak az érdeklődők legyen szó első otthonról, családi lakásról vagy befektetési célú ingatlanról.

Kiváló fizetési feltételek
Már 10% önerő megfizetése mellett foglalható 
Érdeklődjön a még elérhető lakásokról, alaprajzokról és aktuális árakról!

Hirdetés feltöltve: 2026. 04. 01. Utoljára módosítva: 2026. 05. 10.

5 szobás téglalakások ára Budapesten

Ebből az összehasonlításból megtudhatod, hogyan viszonyul a lakás ára a környékbeli téglalakások átlagos árához. Ez nem azt jelenti, hogy ennyivel olcsóbb vagy drágább, mint amennyit a lakás ér, hanem hogy ennyivel tér el a környékbeli átlagtól.

Ennek a m² ára
XI. kerület m² ár
Budapest m² ár
2545 e Ft
2044 e Ft -25%
1617 e Ft -57%
Ennek az ára
XI. kerület átlagár
Budapest átlagár
420 M Ft m Ft
282.6 m Ft -49%
240.4 m Ft -75%

Az ingatlan elhelyezkedése

Cím: Budapest, XI. kerület, 9. emelet

Eladó ingatlanok a környékről

XI. kerület
Eladó téglalakás

Budapest, XI. kerület

319 M Ft
5 szoba
186 m²
XI. kerület
Eladó téglalakás

Budapest, XI. kerület

98.058 M Ft
3 szoba
64 m²
XI. kerület
Eladó téglalakás

Budapest, XI. kerület

107.431 M Ft
3 szoba
74 m²
XI. kerület
Eladó téglalakás

Budapest, XI. kerület

339 M Ft
4 szoba
119 m²
XI. kerület
Eladó téglalakás

Budapest, XI. kerület

228.66 M Ft
5 szoba
131 m²
XIX. kerület
Eladó panellakás

Budapest, XIX. kerület

64.9 M Ft
1 + 2 szoba
58 m²
VII. kerület
Eladó téglalakás

Budapest, VII. kerület

95 M Ft
2 szoba
77 m²
XI. kerület
Eladó téglalakás

Budapest, XI. kerület

110.212 M Ft
3 szoba
71 m²
XI. kerület
Eladó téglalakás

Budapest, XI. kerület

251 M Ft
4 szoba
91 m²
XV. kerület
Eladó téglalakás

Budapest, XV. kerület

54.9 M Ft
2 szoba
42 m²
XI. kerület, Sasad, Lanka utca
Eladó téglalakás

Budapest, XI. kerület

327 M Ft
4 szoba
130 m²
XI. kerület
Eladó téglalakás

Budapest, XI. kerület

112.581 M Ft
3 szoba
74 m²
XI. kerület
Eladó téglalakás

Budapest, XI. kerület

135.138 M Ft
4 szoba
92 m²
II. kerület
Eladó sorház

Budapest, II. kerület

209.79 M Ft
5 szoba
196 m²
XVIII. kerület
Eladó téglalakás

Budapest, XVIII. kerület

90 M Ft
3 szoba
73 m²
XI. kerület
Eladó téglalakás

Budapest, XI. kerület

239.9 M Ft
5 szoba
139 m²
VII. kerület
Eladó téglalakás

Budapest, VII. kerület

79.9 M Ft
3 szoba
72 m²
XI. kerület
Eladó téglalakás

Budapest, XI. kerület

132.254 M Ft
4 szoba
91 m²
III. kerület
Eladó téglalakás

Budapest, III. kerület

65.9 M Ft
2 szoba
49 m²
XI. kerület
Eladó téglalakás

Budapest, XI. kerület

151 M Ft
3 szoba
74 m²
II. kerület, Szépilona, II. kerület, Máriaremete
Eladó ikerház

Budapest, II. kerület

319.9 M Ft
4 szoba
202 m²
XI. kerület
Eladó téglalakás

Budapest, XI. kerület

510 M Ft
4 szoba
124 m²
XIII. kerület
Eladó panellakás

Budapest, XIII. kerület

84.9 M Ft
2 szoba
48 m²
XI. kerület
Eladó téglalakás

Budapest, XI. kerület

87.5 M Ft
2 szoba
51 m²

Falusi CSOK ingatlanok

Kétegyháza
Eladó családi ház

Kétegyháza

21 M Ft
3 szoba
105 m²
Balatonszemes
Eladó téglalakás

Balatonszemes

125.2 M Ft
2 szoba
50 m²
Balatonkenese, Széchenyi utca
Eladó téglalakás

Balatonkenese

129.9 M Ft
3 szoba
83 m²
Sződ
Eladó családi ház

Sződ

102.9 M Ft
4 szoba
92 m²
Levelek
Eladó családi ház

Levelek

74 M Ft
6 + 1 szoba
190 m²
Cece
Eladó családi ház

Cece

69.8 M Ft
4 szoba
215 m²
Fonyód, Rózsa utca
Eladó ikerház

Fonyód

105 M Ft
5 szoba
134 m²
Balatonszemes
Eladó téglalakás

Balatonszemes

91.5 M Ft
2 szoba
0 m²