Astora Olive Club House

Eladó téglalakás
Budapest, XI. kerület, 3. emelet

+ 4 kép 1/7
139 990 000 Ft139.99 M Ft 1 707 195 Ft/m2
3 szoba
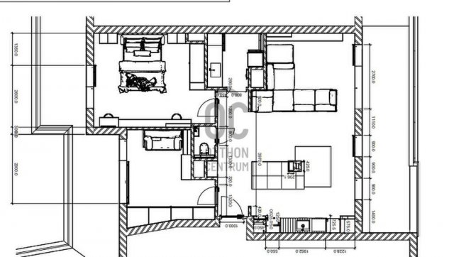
82 m²
3. emelet
építés éve:2004

Részletes adatok

Állapot: Felújított
Fűtés: Gázkazán
Emelet: 3. emelet
Extrák: Lift
Energetikai besorolás: Nem adta meg a hirdető

Az OTP Bank lakáshitel ajánlataFizetett hirdetés

+36 70 465
Jandovics Zsolt
referens

Érdekel az OTP Bank kedvezményes lakáshitel ajánlata? *

* A kérdésre „Igen” válasz bejelölése esetén, az „Üzenet küldése” gombra kattintva kijelentem, hogy az OTP Bank Nyrt. Adatkezelési tájékoztatójának tartalmát megismertem és tudomásul vettem.

Eladó téglalakás leírása

XI. kerület kedvelt részén, csendes társasházban eladó egy frissen, teljes körűen felújított, nagy teraszos, világos lakás felszíni és teremgarázs parkolóval.
Gyors birtokba adás – rugalmas megállapodás.

Eladásra kínálunk a XI. kerületben, a Rahó utcában egy 82 m²-es, 3. emeleti, kiváló adottságú, 2025-ben teljesen felújított lakást, amelyhez két nagy terasz, valamint két parkolási lehetőség tartozik.

A lakás átfogó műszaki és esztétikai felújításon esett át:
– új nyílászárók, elektromos redőnyök
– korszerű gépészet, klíma
– új burkolatok, fürdőszoba és WC
– letisztult, modern alapállapot

A konyha még nem került beépítésre, így az új tulajdonos saját ízlésére szabhatja, bontás és kompromisszumok nélkül.

A lakás két irányban is teraszos, világos, jól szeparálható életterekkel rendelkezik.
A társasház rendezett, a környék csendes, ugyanakkor kiváló infrastruktúrával ellátott.

Parkolás:
– 1 db felszíni udvari gépkocsi-beálló
– 1 db teremgarázs beálló
- min a kettő kötelezően megvásárolandó!

Ajánlott azoknak, akik:
– minőségi, azonnal költözhető ingatlant keresnek
– nem szeretnének felújítással foglalkozni
– fontos számukra a terasz és a biztos parkolás
– gyors, korrekt ügyletben gondolkodnak

Gyors birtokbakadás lehetséges. Komoly érdeklődőknek rugalmas feltételek.

Főbb adatok:
– Alapterület: 82 m²
– Teraszok: összesen kb. 35 m²
– Emelet: 3.
– Fűtés: gázcirkó + klíma
– Parkolás: felszíni + teremgarázs
– Állapot: frissen felújított, újszerű

A fotók látványterveket tartalmaznak

Amennyiben felkeltette érdeklődését , keressen bizalommal

Az energetikai tanúsítvány készítése folyamatban van, amint rendelkezésre áll, úgy azzal a hirdetés frissítésre kerül.

Hirdetés feltöltve: 2026. 03. 24. Utoljára módosítva: 2026. 05. 16.

3 szobás téglalakások ára Budapesten

Ebből az összehasonlításból megtudhatod, hogyan viszonyul a lakás ára a környékbeli téglalakások átlagos árához. Ez nem azt jelenti, hogy ennyivel olcsóbb vagy drágább, mint amennyit a lakás ér, hanem hogy ennyivel tér el a környékbeli átlagtól.

Ennek a m² ára
XI. kerület m² ár
Budapest m² ár
1707 e Ft
1925 e Ft 11%
1694 e Ft -1%
Ennek az ára
XI. kerület átlagár
Budapest átlagár
139.99 M Ft m Ft
144.3 m Ft 3%
132.3 m Ft -6%

Az ingatlan elhelyezkedése

Cím: Budapest, XI. kerület, 3. emelet

Eladó ingatlanok a környékről

II. kerület
Eladó téglalakás

Budapest, II. kerület

109.9 M Ft
2 szoba
63 m²
XI. kerület
Eladó téglalakás

Budapest, XI. kerület

141.112 M Ft
4 szoba
96 m²
XVIII. kerület
Eladó családi ház

Budapest, XVIII. kerület

79.9 M Ft
3 szoba
93 m²
XIV. kerület
Eladó téglalakás

Budapest, XIV. kerület

150 M Ft
2 szoba
111 m²
XI. kerület
Eladó téglalakás

Budapest, XI. kerület

151 M Ft
3 szoba
74 m²
IV. kerület
Eladó panellakás

Budapest, IV. kerület

78.9 M Ft
2 + 1 szoba
60 m²
X. kerület
Eladó panellakás

Budapest, X. kerület

73.9 M Ft
3 szoba
68 m²
VIII. kerület
Eladó téglalakás

Budapest, VIII. kerület

80 M Ft
1 + 1 szoba
39 m²
XI. kerület
Eladó téglalakás

Budapest, XI. kerület

96.925 M Ft
3 szoba
64 m²
XIV. kerület
Eladó téglalakás

Budapest, XIV. kerület

38.9 M Ft
1 szoba
25 m²
XII. kerület
Eladó téglalakás

Budapest, XII. kerület

125 M Ft
2 + 1 szoba
74 m²
XI. kerület
Eladó téglalakás

Budapest, XI. kerület

239.9 M Ft
5 szoba
139 m²
XVIII. kerület
Eladó családi ház

Budapest, XVIII. kerület

88 M Ft
4 szoba
88 m²
XI. kerület
Eladó téglalakás

Budapest, XI. kerület

510 M Ft
4 szoba
124 m²
XVII. kerület
Eladó panellakás

Budapest, XVII. kerület

79.5 M Ft
3 szoba
63 m²
X. kerület
Eladó téglalakás

Budapest, X. kerület

49.9 M Ft
1 szoba
45 m²
XIII. kerület, Újlipótváros, Victor Hugo utca
Eladó téglalakás

Budapest, XIII. kerület

69.9 M Ft
2 szoba
35 m²
XVII. kerület
Eladó panellakás

Budapest, XVII. kerület

50 M Ft
3 szoba
58 m²
XI. kerület
Eladó téglalakás

Budapest, XI. kerület

133.078 M Ft
4 szoba
92 m²
VII. kerület
Eladó üzlethelyiség

Budapest, VII. kerület

47.9 M Ft
2 szoba
79 m²
XI. kerület
Eladó téglalakás

Budapest, XI. kerület

112.581 M Ft
3 szoba
74 m²
XVII. kerület
Eladó családi ház

Budapest, XVII. kerület

64 M Ft
2 szoba
40 m²
XI. kerület
Eladó téglalakás

Budapest, XI. kerület

135.138 M Ft
4 szoba
92 m²
XIII. kerület
Eladó téglalakás

Budapest, XIII. kerület

42.9 M Ft
1 szoba
22 m²

Falusi CSOK ingatlanok

Sződ
Eladó családi ház

Sződ

116 M Ft
5 szoba
136 m²
Balatonakali
Eladó ikerház

Balatonakali

550 M Ft
4 szoba
94 m²
Nemesnádudvar
Eladó családi ház

Nemesnádudvar

29.9 M Ft
3 szoba
145 m²
Balatonszepezd
Eladó családi ház

Balatonszepezd

299 M Ft
5 szoba
220 m²
Csurgó
Eladó családi ház

Csurgó

29 M Ft
3 szoba
80 m²
Tápiószőlős
Eladó családi ház

Tápiószőlős

39.9 M Ft
4 szoba
120 m²
Kál
Eladó családi ház

Kál

31 M Ft
4 szoba
307 m²
Hegyeshalom, Margaréta utca 12
Eladó téglalakás

Hegyeshalom

32.89 M Ft
1 szoba
27 m²