Astora Art House

Eladó téglalakás
Budapest, XI. kerület, Madárhegy, 1. emelet

256 000 000 Ft256 M Ft 2 226 087 Ft/m2
3 + 1 szoba
115 m²
1. emelet
építés éve:2026

Részletes adatok

Fűtés: Egyéb
Emelet: 1. emelet
Parkolás: Garázs
Energetikai besorolás: Nem adta meg a hirdető

Az OTP Bank lakáshitel ajánlataFizetett hirdetés

+36 30 220
Flick Zsuzsanna
MEGAHOUSE GROUP : Madárhegyingatlan és Budaörsiházak iroda

Érdekel az OTP Bank kedvezményes lakáshitel ajánlata? *

* A kérdésre „Igen” válasz bejelölése esetén, az „Üzenet küldése” gombra kattintva kijelentem, hogy az OTP Bank Nyrt. Adatkezelési tájékoztatójának tartalmát megismertem és tudomásul vettem.

Eladó téglalakás leírása

PANORÁMÁS, 1. EMELETI LAKÁS CSENDES KÖRNYEZETBEN, NAGY KERTTEL

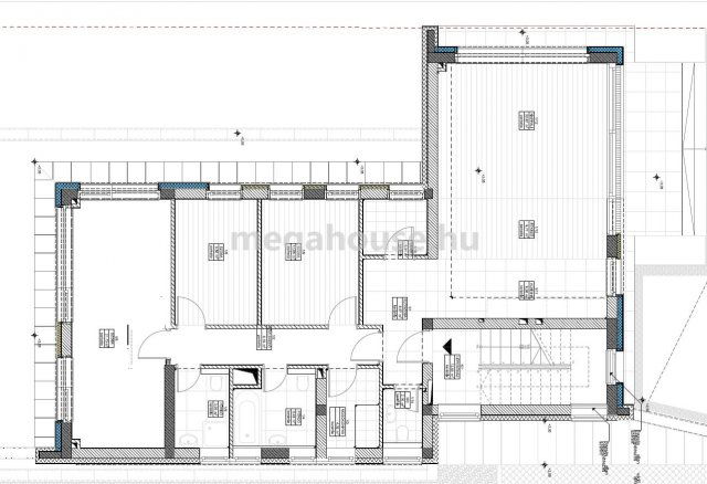
Madárhegy középső részén, nettó 115 nm-es, N+3 szobás napfényes első emeleti lakás saját kerttel, 256 M Ft-ért eladó.
Az előtérből nyílik a három kényelmes méretű hálószoba, háztartási helyiség , két fürdőszoba, plusz külön wc gardrob/tároló , és a hatalmas nyílászárókkal rendelkező, DK-i tájolású amerikai konyhás nappali ahonnan közvetlenül a hatalmas kertbe léphetünk ki.
Kiváló adottsága miatt az ingatlant szinte teljesen körbesüti a nap.
Különleges ajándék a 475 nm-es kert. Bőven van itt hely egy még nagyobb terasz kialakítására, akár rgy hatalmas medence , játszótér sőt kis focipálya elhelyezésére is.
PARKOLÁS:
A a teremgarázsban gépkocsi parkoló várolható, melynek ára tárolóval +16 M Ft/db .
További garázshely mgvásárlása is lehetséges.
MŰSZAKI TARTALOM:
-hőszivattyús fűtésrendszer
-padlófűtés, mennyezeti hűtés-fűtés
- szellőztető rendszer
- nappaliban plusz légkondicionáló
- épületkamera
- riasztórendszer
- okosotthon rendszer
- választható burkolatok
- szaniterek 1,5M Ft értékben
- fa nyílászárók alu profillal 3 légkamrával
- elektromos redőnyök
-külön helyiségben a gépészet
ÁTADÁS: 2026 III. negyedév

Alapos átgondolással, praktikus alaprajzi elrendezéssel, tökéletes tájolással készült a projekt .Tiszta levegő, csend , új lakásokkal beépült modern környezet.
Tömegközlekedés könnyen elérhető, mint ahogy az újonnan megépült madárhegyi óvoda/ bölcsőde és egészségügyi intézmény is.
Kiváló a lokáció, könnyen megközelíthető az M1 /M7 autópályáról is. Számos bevásárlási lehetőség a közelben: ETELE PLAZA, ALLEE, ELEVEN CENTER, BUDAÖRSI BEVÁSÁRLÓCENTRUM.

Várom érdeklődését!
Madárhegyingatlan Projektiroda

Hirdetés feltöltve: 2026. 02. 05. Utoljára módosítva: 2026. 02. 06.

4 szobás téglalakások ára Budapesten

Ebből az összehasonlításból megtudhatod, hogyan viszonyul a lakás ára a környékbeli téglalakások átlagos árához. Ez nem azt jelenti, hogy ennyivel olcsóbb vagy drágább, mint amennyit a lakás ér, hanem hogy ennyivel tér el a környékbeli átlagtól.

Ennek a m² ára
Madárhegy m² ár
XI. kerület m² ár
Budapest m² ár
2226 e Ft
2245 e Ft 1%
2106 e Ft -6%
1758 e Ft -27%
Ennek az ára
Madárhegy átlagár
XI. kerület átlagár
Budapest átlagár
256 M Ft m Ft
249.3 m Ft -3%
225.7 m Ft -13%
184.4 m Ft -39%

Az ingatlan elhelyezkedése

Cím: Budapest, XI. kerület, Madárhegy, 1. emelet

Eladó ingatlanok a környékről

XI. kerület, Péterhegy
Eladó téglalakás

Budapest, XI. kerület

98.058 M Ft
3 szoba
64 m²
I. kerület, Krisztinaváros, Feszty Árpád utca
Eladó téglalakás

Budapest, I. kerület

78.99 M Ft
1 szoba
28 m²
XI. kerület, Madárhegy
Eladó téglalakás

Budapest, XI. kerület

259 M Ft
5 szoba
133 m²
X. kerület, Gyárdűlő, Ceglédi	út 11
Eladó téglalakás

Budapest, X. kerület

91.886 M Ft
3 szoba
61 m²
XI. kerület, Madárhegy
Eladó téglalakás

Budapest, XI. kerület

239 M Ft
3 szoba
85 m²
X. kerület, Gyárdűlő, Ceglédi	út 11
Eladó téglalakás

Budapest, X. kerület

83.065 M Ft
3 szoba
55 m²
XI. kerület, Péterhegy
Eladó téglalakás

Budapest, XI. kerület

96.41 M Ft
3 szoba
65 m²
XI. kerület, Péterhegy
Eladó téglalakás

Budapest, XI. kerület

96.925 M Ft
3 szoba
64 m²
X. kerület, Gyárdűlő, Ceglédi	út 11
Eladó téglalakás

Budapest, X. kerület

83.183 M Ft
3 szoba
55 m²
XI. kerület
Eladó téglalakás

Budapest, XI. kerület

175 M Ft
4 szoba
115 m²
X. kerület, Gyárdűlő, Ceglédi	út 11
Eladó téglalakás

Budapest, X. kerület

91.886 M Ft
3 szoba
61 m²
XI. kerület, Madárhegy
Eladó téglalakás

Budapest, XI. kerület

270 M Ft
4 szoba
133 m²
XI. kerület, Péterhegy
Eladó téglalakás

Budapest, XI. kerület

135.138 M Ft
4 szoba
92 m²
XI. kerület, Hosszúrét, Rétkerülő út
Eladó téglalakás

Budapest, XI. kerület

189 M Ft
2 + 1 szoba
110 m²
XI. kerület, Péterhegy
Eladó téglalakás

Budapest, XI. kerület

107.431 M Ft
3 szoba
74 m²
XI. kerület, Péterhegy
Eladó téglalakás

Budapest, XI. kerület

110.212 M Ft
3 szoba
71 m²
XX. kerület, Pacsirtatelep
Eladó panellakás

Budapest, XX. kerület

57 M Ft
1 + 1 szoba
52 m²
XIX. kerület, Kispest, Iparos utca 2
Eladó téglalakás

Budapest, XIX. kerület

79.443 M Ft
2 szoba
41 m²
X. kerület, Gyárdűlő, Ceglédi	út 11
Eladó téglalakás

Budapest, X. kerület

93.514 M Ft
3 szoba
60 m²
X. kerület, Gyárdűlő, Ceglédi	út 11
Eladó téglalakás

Budapest, X. kerület

91.886 M Ft
3 szoba
61 m²
XI. kerület
Eladó téglalakás

Budapest, XI. kerület

115 M Ft
2 szoba
53 m²
X. kerület, Gyárdűlő, Ceglédi	út 11
Eladó téglalakás

Budapest, X. kerület

98.302 M Ft
3 szoba
63 m²
X. kerület, Gyárdűlő, Ceglédi	út 11
Eladó téglalakás

Budapest, X. kerület

97.636 M Ft
3 szoba
65 m²
XI. kerület, Madárhegy
Eladó téglalakás

Budapest, XI. kerület

251 M Ft
4 szoba
91 m²

Falusi CSOK ingatlanok

Seregélyes
Eladó családi ház

Seregélyes

75 M Ft
6 szoba
160 m²
Vajszló
Eladó családi ház

Vajszló

21.49 M Ft
2 szoba
91 m²
Halimba
Eladó családi ház

Halimba

59.9 M Ft
6 szoba
182 m²
Jakabszállás
Eladó családi ház

Jakabszállás

69.99 M Ft
1 + 4 szoba
91 m²
Jászkarajenő
Eladó családi ház

Jászkarajenő

4.99 M Ft
3 + 1 szoba
84 m²
Kenyeri
Eladó családi ház

Kenyeri

39.9 M Ft
3 szoba
94 m²
Vácegres
Eladó családi ház

Vácegres

68.5 M Ft
3 szoba
116 m²
Magyarszék
Eladó családi ház

Magyarszék

48.5 M Ft
3 + 1 szoba
86 m²