Eladó téglalakás
Budapest, X. kerület, 1. emelet

+ 16 kép 1/19
43 000 000 Ft43 M Ft 1 102 564 Ft/m2
1 szoba
39 m2
1. emelet
építés éve:1950

Részletes adatok

Állapot: Átlagos
Fűtés: Egyéb
Energetikai besorolás: Nem adta meg a hirdető

Az OTP Bank lakáshitel ajánlataFizetett hirdetés

+36 20 461
Dsugán Béla
Terc Kft.

Érdekel az OTP Bank kedvezményes lakáshitel ajánlata? *

* A kérdésre „Igen” válasz bejelölése esetén, az „Üzenet küldése” gombra kattintva kijelentem, hogy az OTP Bank Nyrt. Adatkezelési tájékoztatójának tartalmát megismertem és tudomásul vettem.

Eladó téglalakás leírása

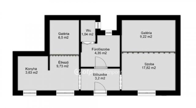
Eladó Budapest 10. kerületében a Mázsa tér közelében egy 39 m2-es galériás lakás!!!

A lakás az első emeleten helyezkedik el, belmagassága 3,6 m . Két felvőgaléria került kialakításra aminek a belmagassága 1,4 m .
Fűtését mika kazán biztosítja , két vízórája és egy gázórája van a lakásnak.
2020 ban teljes körűen felújították a lakást, műanyag nyílászárók, mika gázkazán, radiátorok, villanybojler , konyhabútor, gáztűzhely, új burkolatokkal, galéria, víz- villany- gáz vezetékek cseréje megtörtént.

A ház 2 emeletes, körfolyósóval belső udvarral.
Közös ktg. 25000Ft
Parkolás közterületen ingyenes

Kőbánya alsó vasútállomás 8 perc sétára található 28, 62 villamos, 75,73 troli, 9,99,95,117,151,162 buszok megtalálhatóak.
5 perc alatt elérhető a 3 villamos, a közelben boltok ,iskola , orvos is megtalálható

Megtekintéssel kapcsolatban vagy információért keressen bizalommal a hét bármely napján!

Referencia szám: M314987

Hirdetés feltöltve: 2025. 10. 17. Utoljára módosítva: 2025. 10. 17.

1 szobás téglalakások ára Budapesten

Ebből az összehasonlításból megtudhatod, hogyan viszonyul a lakás ára a környékbeli téglalakások átlagos árához. Ez nem azt jelenti, hogy ennyivel olcsóbb vagy drágább, mint amennyit a lakás ér, hanem hogy ennyivel tér el a környékbeli átlagtól.

Ennek a m² ára
X. kerület m² ár
Budapest m² ár
1103 e Ft
1174 e Ft 6%
1703 e Ft 35%
Ennek az ára
X. kerület átlagár
Budapest átlagár
43 M Ft m Ft
37.1 m Ft -16%
58.6 m Ft 27%

Az ingatlan elhelyezkedése

Cím: Budapest, X. kerület, 1. emelet

Eladó ingatlanok a környékről

Eladó téglalakás
Eladó téglalakás

X. kerület, Újhegy

149.9 M Ft
7 szoba
159 m2
Eladó téglalakás
Eladó téglalakás

X. kerület, Felsőrákos, Gyógyszergyári út 6-12

71 M Ft
3 szoba
62 m2
Eladó téglalakás
Eladó téglalakás

X. kerület

63.9 M Ft
3 szoba
75 m2
Eladó téglalakás
Eladó téglalakás

VII. kerület

49.5 M Ft
1 szoba
36 m2
Eladó téglalakás
Eladó téglalakás

IX. kerület

63.9 M Ft
1 szoba
38 m2
Eladó téglalakás
Eladó téglalakás

XI. kerület, Nádorkert, Napkelte utca

240 M Ft
3 szoba
89 m2
Eladó ipari ingatlan
Eladó ipari ingatlan

XXII. kerület, Budafok

12.9 M Ft
231 m²
231 m2
Eladó téglalakás
Eladó téglalakás

X. kerület, Újhegy

149.9 M Ft
7 szoba
159 m2
Eladó téglalakás
Eladó téglalakás

VII. kerület, Külső Erzsébetváros, Peterdy utca

45.8 M Ft
1 szoba
23 m2
Eladó téglalakás
Eladó téglalakás

X. kerület

63.9 M Ft
3 szoba
75 m2
Eladó téglalakás
Eladó téglalakás

XX. kerület, Erzsébetfalva

64.9 M Ft
2 + 1 szoba
65 m2
Eladó téglalakás
Eladó téglalakás

X. kerület, Óhegy

97.8 M Ft
3 szoba
77 m2
Eladó téglalakás
Eladó téglalakás

I. kerület

54.9 M Ft
2 szoba
63 m2
Eladó téglalakás
Eladó téglalakás

X. kerület, Felsőrákos, Gyógyszergyári út 6-12

69.9 M Ft
2 szoba
45 m2
Eladó téglalakás
Eladó téglalakás

X. kerület, Felsőrákos, Gyógyszergyári út 6-12

79.9 M Ft
3 szoba
62 m2
Eladó téglalakás
Eladó téglalakás

X. kerület, Felsőrákos, Gyógyszergyári út 6-12

79.9 M Ft
2 szoba
82 m2
Eladó téglalakás
Eladó téglalakás

XIII. kerület

49.5 M Ft
1 szoba
27 m2
Eladó téglalakás
Eladó téglalakás

VII. kerület

89.9 M Ft
3 szoba
65 m2
Eladó téglalakás
Eladó téglalakás

XIII. kerület, Angyalföld

44.999 M Ft
28 m²
28 m2
Eladó téglalakás
Eladó téglalakás

X. kerület, Felsőrákos, Gyógyszergyári út 6-12

106.085 M Ft
4 szoba
86 m2
Eladó téglalakás
Eladó téglalakás

VI. kerület, Belső Terézváros, Hajós utca

52.9 M Ft
1 szoba
27 m2
Eladó téglalakás
Eladó téglalakás

X. kerület, Óhegy

89.5 M Ft
2 szoba
95 m2
Eladó téglalakás
Eladó téglalakás

XX. kerület, Erzsébetfalva

76.9 M Ft
3 szoba
70 m2
Eladó téglalakás
Eladó téglalakás

VII. kerület

56.7 M Ft
0 + 1 szoba
33 m2

Falusi CSOK ingatlanok

Eladó családi ház
Eladó családi ház

Dudar

19 M Ft
2 szoba
60 m2
Eladó családi ház
Eladó családi ház

Pápateszér

24.9 M Ft
3 szoba
86 m2
Eladó családi ház
Eladó családi ház

Magyarszék

48.5 M Ft
3 + 1 szoba
86 m2
Eladó családi ház
Eladó családi ház

Gáborjánháza

23 M Ft
2 szoba
117 m2
Eladó családi ház
Eladó családi ház

Ceglédbercel

45 M Ft
2 + 1 szoba
127 m2
Eladó családi ház
Eladó családi ház

Majs

28.5 M Ft
3 szoba
160 m2
Eladó családi ház
Eladó családi ház

Elek

15.99 M Ft
2 szoba
70 m2
Eladó családi ház
Eladó családi ház

Makád

140 M Ft
4 szoba
79 m2