Avico Greentop

Eladó téglalakás
Budapest, VIII. kerület, 1. emelet

+ 16 kép 1/19
79 990 000 Ft79.99 M Ft 1 230 615 Ft/m2
2 szoba
65 m²
1. emelet
építés éve:1935

Részletes adatok

Állapot: Felújított
Fűtés: Gázkonvektor
Emelet: 1. emelet
Extrák: Lift
Energetikai besorolás: Nem adta meg a hirdető

Az OTP Bank lakáshitel ajánlataFizetett hirdetés

+36 20 554
Molnár Gergely
referens

Érdekel az OTP Bank kedvezményes lakáshitel ajánlata? *

* A kérdésre „Igen” válasz bejelölése esetén, az „Üzenet küldése” gombra kattintva kijelentem, hogy az OTP Bank Nyrt. Adatkezelési tájékoztatójának tartalmát megismertem és tudomásul vettem.

Eladó téglalakás leírása

***Az Otthon Start Program 3%-os fix kamatozású hitel feltételeinek megfelelő lakás!***
*** Fiatal párok, egyetemisták figyelem!!! ***

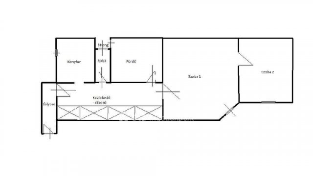
Eladó Budapest VIII. kerület, Nagykörúton belül, a Palotanegyedben, egy 65 nm alapterületű, 2 szobás, I. emeleti, szépen felújított, belső udvarra néző, belvárosi, társasházi lakás. A lakáshoz tartozik egy 6 nm-es zárható folyórész, ami tökéletesen használható erkélyként is.

Az ingatlan egy rendezett, liftes, polgári társasházban található. A társasház csendes, biztonságos, szépen karbantartott. A lakóközösség fiatalos és barátságos, emiatt az emberek szeretnek ott élni.

A lakás 2 éve teljeskörű felújításon esett át, aminek köszönhetően a teljes villany-, és vízvezeték csere megtörtént. A lakás nagy ablakainak köszönhetően szép, világos, napfényes. A szobák tágas belső terekkel rendelkeznek, az otthon melegét gázkonvektor biztosítja, a meleg vizet villanybojler állítja elő. A nappaliba légkondicionáló lett felszerelve. A fotókon látható teljes berendezés a vételár részét képezi.

A lakás kiváló adottságokkal rendelkezik, és tökéletes választás lehet fiatalok számára is első otthonnak, illetve főiskolásoknak/egyetemistáknak egyaránt.

A közös költség 19.500,- Ft. A közüzemi számlák egyedi mérőórák alapján kerülnek elszámolásra.

A lakásban minden kézre áll, az új lakó megkapja a kulcsot és már költözhet is, 1/1 tulajdoni hányadú, tehermentes.

A környék rendkívül jó infrastruktúrával rendelkezik: a közelben számos élelmiszerbolt, Corvin Plaza, óvoda, iskola, orvosi rendelő, posta, bank található. Néhány perces sétatávolságon belül több felsőoktatási intézmény is könnyen elérhető (ELTE, SOTE, Pázmány Péter Katolikus Egyetem, SOTE, Óbudai Egyetem). Emiatt befektetőknek is ideális választás lehet, hiszen könnyen, gyorsan kiadható. A Nagykörút 1 perc sétával elérhető.

Kitűnő elhelyezkedésének köszönhetően tömegközlekedéssel (autóbusz, trolibusz, villamos, metró) a város bármely pontja könnyedén elérhető.

Amennyiben hirdetésem felkeltette az érdeklődését, kérdése van, illetve szeretné megtekinteni a lakást, kérem, hívjon, bizalommal!

Referenciaszám: M326253

Hirdetés feltöltve: 2026. 04. 17. Utoljára módosítva: 2026. 04. 17.

2 szobás téglalakások ára Budapesten

Ebből az összehasonlításból megtudhatod, hogyan viszonyul a lakás ára a környékbeli téglalakások átlagos árához. Ez nem azt jelenti, hogy ennyivel olcsóbb vagy drágább, mint amennyit a lakás ér, hanem hogy ennyivel tér el a környékbeli átlagtól.

Ennek a m² ára
VIII. kerület m² ár
Budapest m² ár
1231 e Ft
1449 e Ft 15%
1688 e Ft 27%
Ennek az ára
VIII. kerület átlagár
Budapest átlagár
79.99 M Ft m Ft
73.8 m Ft -8%
88.9 m Ft 10%

Az ingatlan elhelyezkedése

Cím: Budapest, VIII. kerület, 1. emelet

Eladó ingatlanok a környékről

XXI. kerület
Eladó téglalakás

Budapest, XXI. kerület

69.9 M Ft
2 + 2 szoba
68 m²
VIII. kerület
Eladó téglalakás

Budapest, VIII. kerület

105.272 M Ft
3 szoba
69 m²
IV. kerület
Eladó családi ház

Budapest, IV. kerület

94.9 M Ft
3 szoba
80 m²
VIII. kerület, Józsefváros, Kálvária utca 16
Eladó téglalakás

Budapest, VIII. kerület

109.9 M Ft
4 szoba
79 m²
VIII. kerület, Palotanegyed, Békési utca
Eladó téglalakás

Budapest, VIII. kerület

44.7 M Ft
2 szoba
42 m²
VIII. kerület, Józsefváros, Nagy Fuvaros utca 27
Eladó téglalakás

Budapest, VIII. kerület

129.8 M Ft
4 szoba
172 m²
VIII. kerület, Józsefváros, Kálvária utca 16
Eladó téglalakás

Budapest, VIII. kerület

79.9 M Ft
2 + 1 szoba
63 m²
XIV. kerület, Istvánmező, Ilka utca
Eladó téglalakás

Budapest, XIV. kerület

84.9 M Ft
2 + 1 szoba
63 m²
VIII. kerület
Eladó téglalakás

Budapest, VIII. kerület

111 M Ft
4 szoba
80 m²
XIII. kerület, Angyalföld, Béke utca
Eladó panellakás

Budapest, XIII. kerület

64.8 M Ft
2 szoba
37 m²
VIII. kerület
Eladó téglalakás

Budapest, VIII. kerület

199 M Ft
18 szoba
859 m²
VII. kerület
Eladó téglalakás

Budapest, VII. kerület

29.9 M Ft
1 szoba
24 m²
XXI. kerület, Csillagtelep
Eladó nyaraló

Budapest, XXI. kerület

15 M Ft
1 szoba
25 m²
VIII. kerület, Józsefváros, Baross utca
Eladó téglalakás

Budapest, VIII. kerület

199 M Ft
859 m²
VIII. kerület
Eladó téglalakás

Budapest, VIII. kerület

144 M Ft
4 szoba
101 m²
XIII. kerület
Eladó panellakás

Budapest, XIII. kerület

89.9 M Ft
3 szoba
58 m²
XXII. kerület, Budatétény, Pelikán Imre utca
Eladó telek

Budapest, XXII. kerület

75.184 M Ft
1000 m²
0 m²
XI. kerület, Sasad, Etele út
Eladó panellakás

Budapest, XI. kerület

78 M Ft
2 szoba
52 m²
VII. kerület, Külső Erzsébetváros, István utca
Eladó téglalakás

Budapest, VII. kerület

48 M Ft
2 szoba
43 m²
XX. kerület
Eladó családi ház

Budapest, XX. kerület

149 M Ft
3 + 2 szoba
183 m²
XXII. kerület, Budatétény, Pelikán Imre utca
Eladó telek

Budapest, XXII. kerület

88.519 M Ft
1000 m²
0 m²
VII. kerület
Eladó téglalakás

Budapest, VII. kerület

125 M Ft
3 szoba
99 m²
VI. kerület
Eladó üzlethelyiség

Budapest, VI. kerület

320 M Ft
64 m²
VIII. kerület
Eladó téglalakás

Budapest, VIII. kerület

199 M Ft
1 szoba
859 m²

Falusi CSOK ingatlanok

Adony
Eladó családi ház

Adony

48 M Ft
4 szoba
75 m²
Nagykarácsony
Eladó családi ház

Nagykarácsony

34.9 M Ft
3 szoba
112 m²
Bakonybél
Eladó családi ház

Bakonybél

69.8 M Ft
6 szoba
160 m²
Pálfa
Eladó családi ház

Pálfa

26.99 M Ft
3 szoba
90 m²
Recsk
Eladó családi ház

Recsk

40 M Ft
3 + 1 szoba
110 m²
Kenyeri
Eladó családi ház

Kenyeri

39.9 M Ft
3 szoba
94 m²
Tápióbicske
Eladó családi ház

Tápióbicske

79.9 M Ft
3 szoba
160 m²
Szob
Eladó sorház

Szob

16 M Ft
2 szoba
45 m²