Avico Greentop

Eladó téglalakás
Budapest, VIII. kerület, 4. emelet

+ 17 kép 1/20
119 800 000 Ft119.8 M Ft 1 060 177 Ft/m2
3 + 1 szoba
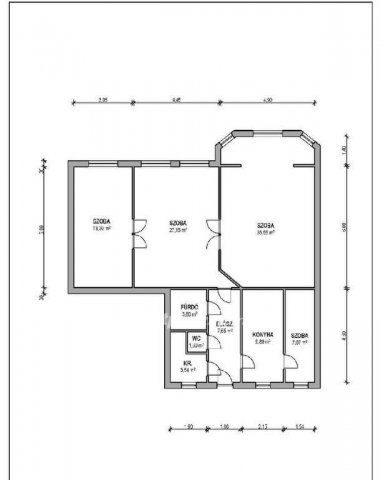
113 m²
4. emelet
építés éve:1903

Részletes adatok

Állapot: Átlagos
Fűtés: Gázkazán
Emelet: 4. emelet
Extrák: Lift
Energetikai besorolás: Nem adta meg a hirdető

Az OTP Bank lakáshitel ajánlataFizetett hirdetés

+36 30 871
Farkasné Hernádi Ágnes
OTPIP I. kerület Zsolt utcai iroda

Érdekel az OTP Bank kedvezményes lakáshitel ajánlata? *

* A kérdésre „Igen” válasz bejelölése esetén, az „Üzenet küldése” gombra kattintva kijelentem, hogy az OTP Bank Nyrt. Adatkezelési tájékoztatójának tartalmát megismertem és tudomásul vettem.

Eladó téglalakás leírása

***ELADÓ TÁGAS - KÉT BEJÁRATOS - 3+1 FÉLSZOBÁS LAKÁS - A CORVIN NEGYED SZÍVÉBEN - CSENDES UTCÁBAN.***

Budapest VIII. kerületében, a Corvin Pláza közvetlen közelében, mégis egy nyugodt, csendes kis utcában eladó egy 113 nm-es, 4. emeleti, 3 szoba + 1 félszobás lakás.

Az ingatlan elosztása kiváló, két bejáratának köszönhetően könnyedén két külön lakássá alakítható. A 3 teljes értékű szoba nyugati tájolású és utcai nézetű, a félszoba a belső udvarra néz. Beépített loggia és erkély teszi különlegessé a nagypolgári lakást.

A 113 nm-es nagy alapterületnek köszönhetően a lakás jól alakítható, akár családi otthonnak, akár befektetési célra is ideális.
Az ingatlan közepes állapotú, felújítást igényel, így új tulajdonosa saját ízlésére szabhatja, és hosszú távon jelentős értéknövekedési potenciált rejt magában.

Kiváló lokáció:
A Corvin sétány, Corvin Pláza, üzletek, éttermek, kávézók, mozi, fitneszterem és minden fontos szolgáltatás pár perc sétával elérhető. A környék folyamatosan fejlődik, infrastruktúrája kiváló.

Közlekedés:
- M3-as metró (Corvin negyed) néhány perc sétára
- 4-6-os villamos a körúton
- több buszjárat és éjszakai közlekedés a közelben

A lakás saját célra és befektetésnek egyaránt remek választás, kiváló elhelyezkedéssel és nagy alapterülettel.
Kérdés esetén forduljanak hozzám bizalommal, akár hétvégén is!M320127

Referencia szám: M320127

Hirdetés feltöltve: 2026. 03. 03. Utoljára módosítva: 2026. 05. 02.

4 szobás téglalakások ára Budapesten

Ebből az összehasonlításból megtudhatod, hogyan viszonyul a lakás ára a környékbeli téglalakások átlagos árához. Ez nem azt jelenti, hogy ennyivel olcsóbb vagy drágább, mint amennyit a lakás ér, hanem hogy ennyivel tér el a környékbeli átlagtól.

Ennek a m² ára
VIII. kerület m² ár
Budapest m² ár
1060 e Ft
1344 e Ft 21%
1768 e Ft 40%
Ennek az ára
VIII. kerület átlagár
Budapest átlagár
119.8 M Ft m Ft
119.1 m Ft -1%
184.8 m Ft 35%

Az ingatlan elhelyezkedése

Cím: Budapest, VIII. kerület, 4. emelet

Eladó ingatlanok a környékről

XI. kerület, Kőérberek, Kánai út 31
Eladó téglalakás

Budapest, XI. kerület

160.99 M Ft
3 szoba
74 m²
VIII. kerület, Palotanegyed, Békési utca
Eladó téglalakás

Budapest, VIII. kerület

44.7 M Ft
2 szoba
42 m²
XI. kerület, Kőérberek, Kánai út 31
Eladó téglalakás

Budapest, XI. kerület

254.99 M Ft
5 szoba
118 m²
VIII. kerület, Józsefváros, Kálvária utca 16
Eladó téglalakás

Budapest, VIII. kerület

67 M Ft
1 + 1 szoba
47 m²
XI. kerület, Kőérberek, Kánai út 31
Eladó téglalakás

Budapest, XI. kerület

130.99 M Ft
3 szoba
60 m²
VIII. kerület
Eladó téglalakás

Budapest, VIII. kerület

61.6 M Ft
1 szoba
80 m²
VIII. kerület, Palotanegyed, Békési utca
Eladó téglalakás

Budapest, VIII. kerület

38.8 M Ft
1 szoba
33 m²
XI. kerület, Kőérberek, Kánai út 31
Eladó téglalakás

Budapest, XI. kerület

121.99 M Ft
3 szoba
61 m²
VIII. kerület
Eladó téglalakás

Budapest, VIII. kerület

123.9 M Ft
3 szoba
98 m²
XI. kerület, Kőérberek, Kánai út 31
Eladó téglalakás

Budapest, XI. kerület

170.99 M Ft
4 szoba
88 m²
XI. kerület, Kőérberek, Kánai út 31
Eladó téglalakás

Budapest, XI. kerület

145.99 M Ft
3 szoba
63 m²
XI. kerület, Kőérberek, Kánai út 31
Eladó téglalakás

Budapest, XI. kerület

117.49 M Ft
3 szoba
63 m²
XI. kerület, Kőérberek, Kánai út 31
Eladó téglalakás

Budapest, XI. kerület

125.99 M Ft
3 szoba
63 m²
XII. kerület, Kissvábhegy, Határőr út
Eladó ikerház

Budapest, XII. kerület

960 M Ft
7 + 3 szoba
399 m²
XI. kerület, Kőérberek, Kánai út 31
Eladó téglalakás

Budapest, XI. kerület

130.99 M Ft
3 szoba
68 m²
XI. kerület, Kőérberek, Kánai út 31
Eladó téglalakás

Budapest, XI. kerület

135.99 M Ft
3 szoba
68 m²
VIII. kerület, Józsefváros, Baross utca
Eladó téglalakás

Budapest, VIII. kerület

199 M Ft
859 m²
VIII. kerület
Eladó téglalakás

Budapest, VIII. kerület

88.504 M Ft
2 szoba
55 m²
VIII. kerület
Eladó téglalakás

Budapest, VIII. kerület

111 M Ft
4 szoba
80 m²
XI. kerület, Kőérberek, Kánai út 31
Eladó téglalakás

Budapest, XI. kerület

121.49 M Ft
3 szoba
63 m²
XI. kerület, Kőérberek, Kánai út 31
Eladó téglalakás

Budapest, XI. kerület

90.99 M Ft
2 szoba
46 m²
VIII. kerület
Eladó téglalakás

Budapest, VIII. kerület

79 M Ft
2 + 1 szoba
79 m²
VIII. kerület
Eladó téglalakás

Budapest, VIII. kerület

67 M Ft
2 szoba
47 m²
XIII. kerület, Paszomány utca
Eladó panellakás

Budapest, XIII. kerület

96.8 M Ft
2 + 1 szoba
73 m²

Falusi CSOK ingatlanok

Csátalja, Dózsa György utca
Eladó családi ház

Csátalja

30.5 M Ft
3 szoba
110 m²
Balatonőszöd
Eladó téglalakás

Balatonőszöd

167 M Ft
4 szoba
81 m²
Sásd
Eladó családi ház

Sásd

35.9 M Ft
4 + 1 szoba
71 m²
Badacsonytomaj
Eladó családi ház

Badacsonytomaj

285 M Ft
4 szoba
230 m²
Balatonkenese
Eladó családi ház

Balatonkenese

165.7 M Ft
2 + 4 szoba
179 m²
Bácsbokod
Eladó családi ház

Bácsbokod

55 M Ft
6 szoba
250 m²
Jobbágyi
Eladó családi ház

Jobbágyi

399 M Ft
6 + 1 szoba
200 m²
Onga
Eladó családi ház

Onga

81.9 M Ft
4 szoba
109 m²