BAM Living

Eladó téglalakás
Budapest, VIII. kerület, 1. emelet

+ 17 kép 1/20
186 000 000 Ft186 M Ft 1 878 788 Ft/m2
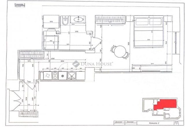
3 szoba
99 m²
1. emelet
építés éve:1920

Részletes adatok

Állapot: Felújított
Fűtés: Gázkazán
Emelet: 1. emelet
Energetikai besorolás: Nem adta meg a hirdető

Az OTP Bank lakáshitel ajánlataFizetett hirdetés

+36 1 690
Lakatos Barbara
Duna House Kispest

Érdekel az OTP Bank kedvezményes lakáshitel ajánlata? *

* A kérdésre „Igen” válasz bejelölése esetén, az „Üzenet küldése” gombra kattintva kijelentem, hogy az OTP Bank Nyrt. Adatkezelési tájékoztatójának tartalmát megismertem és tudomásul vettem.

Eladó téglalakás leírása

Elegáns, frissen felújított apartmanok eladók a belváros szívében

Eladásra kínálunk három igényesen felújított, teljesen berendezett első emeleti apartmant. Az ingatlanok 2024-ben teljes körű felújításon estek át, modern gépészettel és prémium minőségű anyaghasználattal. A 380 cm-es belmagasság tágas, világos tereket biztosít, az elegáns, minimalista belső kialakítás pedig letisztult megjelenést és időtálló stílust képvisel.

A környék infrastruktúrája kiemelkedő: kávézók, éttermek, egyetemek és közlekedési csomópontok néhány perc sétával elérhetők. A belvárosi elhelyezkedés és a magas minőségű kialakítás miatt az apartmanok kiváló befektetési lehetőséget kínálnak, stabil hozampotenciállal.
Megbízhatóan, gyorsan és az Ön érdekeit szem előtt tartva dolgozom, a teljes értékesítési folyamat során.

Referencia szám: LK081399

Hirdetés feltöltve: 2026. 02. 06. Utoljára módosítva: 2026. 03. 02.

3 szobás téglalakások ára Budapesten

Ebből az összehasonlításból megtudhatod, hogyan viszonyul a lakás ára a környékbeli téglalakások átlagos árához. Ez nem azt jelenti, hogy ennyivel olcsóbb vagy drágább, mint amennyit a lakás ér, hanem hogy ennyivel tér el a környékbeli átlagtól.

Ennek a m² ára
VIII. kerület m² ár
Budapest m² ár
1879 e Ft
1387 e Ft -35%
1694 e Ft -11%
Ennek az ára
VIII. kerület átlagár
Budapest átlagár
186 M Ft m Ft
99.7 m Ft -87%
131.1 m Ft -42%

Az ingatlan elhelyezkedése

Cím: Budapest, VIII. kerület, 1. emelet

Eladó ingatlanok a környékről

VIII. kerület
Eladó téglalakás

Budapest, VIII. kerület

140.152 M Ft
3 szoba
87 m²
III. kerület
Eladó panellakás

Budapest, III. kerület

69.9 M Ft
3 szoba
57 m²
VII. kerület
Eladó téglalakás

Budapest, VII. kerület

32.9 M Ft
3 szoba
88 m²
XIX. kerület
Eladó panellakás

Budapest, XIX. kerület

68.5 M Ft
3 szoba
52 m²
VIII. kerület, Józsefváros, Budapest VIII., Corvin sétány
Eladó téglalakás

Budapest, VIII. kerület

74.9 M Ft
1 szoba
34 m²
VIII. kerület
Eladó téglalakás

Budapest, VIII. kerület

105.272 M Ft
3 szoba
69 m²
VIII. kerület, Józsefváros
Eladó téglalakás

Budapest, VIII. kerület

199 M Ft
1 szoba
859 m²
IV. kerület, Káposztásmegyer
Eladó panellakás

Budapest, IV. kerület

55.5 M Ft
1 szoba
36 m²
VIII. kerület, Józsefváros, Kálvária utca 16
Eladó téglalakás

Budapest, VIII. kerület

109.9 M Ft
4 szoba
79 m²
VIII. kerület
Eladó téglalakás

Budapest, VIII. kerület

61.6 M Ft
1 szoba
80 m²
XVII. kerület
Eladó családi ház

Budapest, XVII. kerület

127.9 M Ft
6 szoba
200 m²
VIII. kerület
Eladó téglalakás

Budapest, VIII. kerület

69.9 M Ft
2 szoba
62 m²
VIII. kerület
Eladó téglalakás

Budapest, VIII. kerület

69 M Ft
2 szoba
46 m²
VIII. kerület, Józsefváros
Eladó téglalakás

Budapest, VIII. kerület

199 M Ft
18 szoba
859 m²
VIII. kerület
Eladó téglalakás

Budapest, VIII. kerület

89.9 M Ft
3 szoba
73 m²
III. kerület, Békásmegyer
Eladó panellakás

Budapest, III. kerület

65 M Ft
2 szoba
51 m²
VIII. kerület, Palotanegyed, Békési utca
Eladó téglalakás

Budapest, VIII. kerület

44.7 M Ft
2 szoba
42 m²
VIII. kerület, Józsefváros, Kálvária utca 16
Eladó téglalakás

Budapest, VIII. kerület

79.9 M Ft
2 + 1 szoba
63 m²
XIV. kerület
Eladó panellakás

Budapest, XIV. kerület

64 M Ft
1 + 1 szoba
49 m²
VIII. kerület
Eladó téglalakás

Budapest, VIII. kerület

141.464 M Ft
3 szoba
89 m²
VIII. kerület, Józsefváros, 8. Népszínház u
Eladó téglalakás

Budapest, VIII. kerület

79.8 M Ft
3 + 1 szoba
100 m²
VIII. kerület
Eladó téglalakás

Budapest, VIII. kerület

67 M Ft
2 szoba
47 m²
VIII. kerület, Józsefváros, Baross utca
Eladó téglalakás

Budapest, VIII. kerület

199 M Ft
859 m²
VIII. kerület, Józsefváros, Harminckettesek tere
Eladó téglalakás

Budapest, VIII. kerület

89.9 M Ft
2 szoba
100 m²

Falusi CSOK ingatlanok

Csemő
Eladó családi ház

Csemő

89 M Ft
4 szoba
140 m²
Bugac
Eladó családi ház

Bugac

90 M Ft
5 szoba
230 m²
Újhartyán
Eladó családi ház

Újhartyán

99.9 M Ft
5 szoba
168 m²
Szigetcsép
Eladó családi ház

Szigetcsép

92.9 M Ft
4 szoba
145 m²
Seregélyes
Eladó családi ház

Seregélyes

75 M Ft
6 szoba
160 m²
Letenye
Eladó családi ház

Letenye

34.5 M Ft
4 szoba
100 m²
Ceglédbercel
Eladó családi ház

Ceglédbercel

55 M Ft
4 szoba
81 m²
Vásárosdombó
Eladó ikerház

Vásárosdombó

21.7 M Ft
3 szoba
98 m²