Astora Márvány8

Eladó téglalakás
Budapest, VIII. kerület, 3. emelet

+ 17 kép 1/20
100 000 000 Ft100 M Ft 943 396 Ft/m2
4 szoba
106 m²
3. emelet
építés éve:1900

Részletes adatok

Állapot: Felújított
Fűtés: Gázkazán
Emelet: 3. emelet
Energetikai besorolás: D

Az OTP Bank lakáshitel ajánlataFizetett hirdetés

+36 70 242
Erdélyi Miklós István
Otp Ingatlanpont Falk Miksa

Érdekel az OTP Bank kedvezményes lakáshitel ajánlata? *

* A kérdésre „Igen” válasz bejelölése esetén, az „Üzenet küldése” gombra kattintva kijelentem, hogy az OTP Bank Nyrt. Adatkezelési tájékoztatójának tartalmát megismertem és tudomásul vettem.

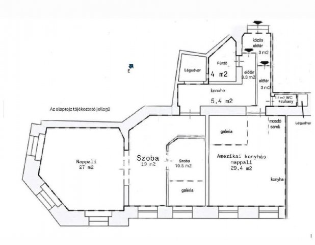
Eladó téglalakás leírása

***Kizárólag Nálunk!*** Felújított, világos lakás a Corvin negyedben! 2 lakás egyben! OSP-vel is!

Budapest VIII. kerület, a Corvin negyedben, a József körúton eladó egy 106 m2-es, 4 szobás, felújított, világos, 3. emeleti lakás. Az ingatlan egyik különlegessége, hogy egyben és két külön lakásként is funkcionálhat.
Jelenleg egy közös bejáratról, de külön megközelíthetően található benne:

- egy 35 m2-es garzonlakás konyhával és fürdőszobával
- valamint egy 71 m2-es, 3 szobás lakás

Ez a kialakítás ideális lehet két generáció együttélésére, lakás-iroda kombinációra, illetve befektetési célra is, hiszen a lakrészek külön-külön vagy együtt is bérbe adhatók.
Műszaki és esztétikai jellemzők:
- A lakás 2024-ig több ütemben felújításon esett át (vezetékcsere, burkolatcsere, fűtéskorszerűsítés, konyhafelújítás, szaniterek, nyílászárók, stb.)
- Legutóbb kondenzációs kazáncsere történt, amely korszerű és hatékony fűtést biztosít
- Rendkívül világos, körbenapozott terek
- Hang- és hőszigetelt műanyag nyílászárók, a József körútra néző ablakokkal
- Két helyiségben galéria (kb. 1,7 m belmagassággal), amely tovább növeli a hasznos teret
- Ízléses, egyedi burkolatok és hangulatos csillárok

Társasház:
- Jó állapotú, rendezett ház
- Jó lakóközösség

Jogi helyzet:
-1/1 tulajdon
-Tehermentes
- Rövid időn belül költözhető
A gépek, berendezések, bútorok ára 10 mill. Ft, mely kötelezően megvásárolandó!
Ingatlanjogász ügyvédi iroda vagyunk.

Referencia szám: M320627-ZE

Hirdetés feltöltve: 2026. 02. 05. Utoljára módosítva: 2026. 03. 24.

4 szobás téglalakások ára Budapesten

Ebből az összehasonlításból megtudhatod, hogyan viszonyul a lakás ára a környékbeli téglalakások átlagos árához. Ez nem azt jelenti, hogy ennyivel olcsóbb vagy drágább, mint amennyit a lakás ér, hanem hogy ennyivel tér el a környékbeli átlagtól.

Ennek a m² ára
VIII. kerület m² ár
Budapest m² ár
943 e Ft
1329 e Ft 29%
1786 e Ft 47%
Ennek az ára
VIII. kerület átlagár
Budapest átlagár
100 M Ft m Ft
113.7 m Ft 12%
187.3 m Ft 47%

Az ingatlan elhelyezkedése

Cím: Budapest, VIII. kerület, 3. emelet

Eladó ingatlanok a környékről

VIII. kerület, Palotanegyed, Békési utca
Eladó téglalakás

Budapest, VIII. kerület

44.7 M Ft
2 szoba
42 m²
XVII. kerület, Rákoscsaba
Eladó családi ház

Budapest, XVII. kerület

249.9 M Ft
4 szoba
157 m²
III. kerület, Csillaghegy
Eladó családi ház

Budapest, III. kerület

128.8 M Ft
4 szoba
120 m²
XVIII. kerület, Lónyaytelep
Eladó téglalakás

Budapest, XVIII. kerület

69 M Ft
3 szoba
63 m²
VI. kerület, Külső Terézváros, Rózsa utca 82
Eladó téglalakás

Budapest, VI. kerület

85.92 M Ft
2 szoba
48 m²
VIII. kerület, Józsefváros, Kálvária utca 16
Eladó téglalakás

Budapest, VIII. kerület

109.9 M Ft
4 szoba
79 m²
VIII. kerület, Józsefváros, Baross utca
Eladó téglalakás

Budapest, VIII. kerület

199 M Ft
859 m²
VIII. kerület, Józsefváros, 8. Népszínház u
Eladó téglalakás

Budapest, VIII. kerület

79.8 M Ft
3 + 1 szoba
100 m²
VIII. kerület, Palotanegyed, Békési utca
Eladó téglalakás

Budapest, VIII. kerület

38.8 M Ft
1 szoba
33 m²
VIII. kerület
Eladó téglalakás

Budapest, VIII. kerület

141.464 M Ft
3 szoba
89 m²
VIII. kerület, Józsefváros, Harminckettesek tere
Eladó téglalakás

Budapest, VIII. kerület

89.9 M Ft
2 szoba
100 m²
XIV. kerület, Herminamező
Eladó iroda

Budapest, XIV. kerület

480 M Ft
7 szoba
250 m²
XVIII. kerület, Szent Imre kertváros
Eladó családi ház

Budapest, XVIII. kerület

99.9 M Ft
2 szoba
80 m²
XVIII. kerület, Liptáktelep
Eladó téglalakás

Budapest, XVIII. kerület

97.5 M Ft
3 szoba
72 m²
VIII. kerület
Eladó téglalakás

Budapest, VIII. kerület

79 M Ft
2 + 1 szoba
79 m²
VIII. kerület, Józsefváros, Kálvária utca 16
Eladó téglalakás

Budapest, VIII. kerület

79.9 M Ft
2 + 1 szoba
63 m²
VIII. kerület
Eladó téglalakás

Budapest, VIII. kerület

69.9 M Ft
2 szoba
62 m²
VIII. kerület, Józsefváros
Eladó téglalakás

Budapest, VIII. kerület

85.418 M Ft
2 szoba
58 m²
XXII. kerület
Eladó ikerház

Budapest, XXII. kerület

159 M Ft
5 szoba
246 m²
VIII. kerület
Eladó téglalakás

Budapest, VIII. kerület

88.504 M Ft
2 szoba
55 m²
VIII. kerület, Józsefváros, Budapest VIII., Corvin sétány
Eladó téglalakás

Budapest, VIII. kerület

74.9 M Ft
1 szoba
34 m²
VIII. kerület
Eladó téglalakás

Budapest, VIII. kerület

105.272 M Ft
3 szoba
69 m²
XIII. kerület
Eladó panellakás

Budapest, XIII. kerület

79.8 M Ft
1 + 2 szoba
58 m²
XVIII. kerület, Liptáktelep
Eladó családi ház

Budapest, XVIII. kerület

105 M Ft
2 szoba
90 m²

Falusi CSOK ingatlanok

Tatárszentgyörgy
Eladó családi ház

Tatárszentgyörgy

29.9 M Ft
3 szoba
75 m²
Kótaj
Eladó családi ház

Kótaj

32.7 M Ft
2 szoba
83 m²
Cece
Eladó családi ház

Cece

69.8 M Ft
4 szoba
215 m²
Táborfalva
Eladó családi ház

Táborfalva

36.9 M Ft
1 + 2 szoba
89 m²
Balatonszepezd
Eladó téglalakás

Balatonszepezd

83.112 M Ft
2 szoba
47 m²
Ságvár
Eladó családi ház

Ságvár

53.9 M Ft
3 szoba
75 m²
Letenye
Eladó családi ház

Letenye

34.5 M Ft
4 szoba
100 m²
Onga
Eladó családi ház

Onga

52.9 M Ft
5 szoba
110 m²