NapForrás 20 - Buda

Eladó téglalakás
Budapest, VIII. kerület, 2. emelet

+ 17 kép 1/20
114 900 000 Ft114.9 M Ft 1 276 667 Ft/m2
2 + 1 szoba
90 m²
2. emelet
építés éve:1920

Részletes adatok

Fűtés: Gázkonvektor
Emelet: 2. emelet
Extrák: Lift
Energetikai besorolás: Nem adta meg a hirdető

Az OTP Bank lakáshitel ajánlataFizetett hirdetés

+36 30 828
Füredi Felícia
referens

Érdekel az OTP Bank kedvezményes lakáshitel ajánlata? *

* A kérdésre „Igen” válasz bejelölése esetén, az „Üzenet küldése” gombra kattintva kijelentem, hogy az OTP Bank Nyrt. Adatkezelési tájékoztatójának tartalmát megismertem és tudomásul vettem.

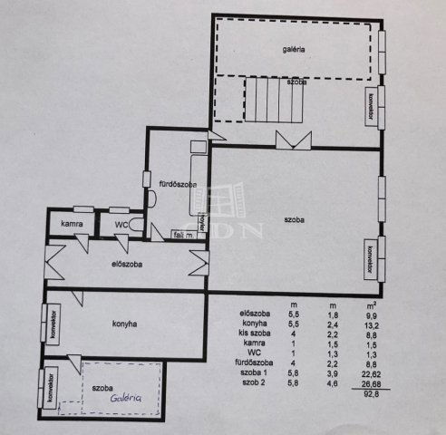
Eladó téglalakás leírása

Eladásra kínálunk a Mátyás téren, egy 90 m²-es (valóságban 93 m²-es), utcai és udvari nézetű, jó állapotú, világos lakást. Az ingatlan a 2. emeleten található, liftes társasházban, amelynek külső homlokzata igényesen karbantartott.

A lakás 2+1 szobás, külön konyhával, valamint nagy belmagassággal rendelkezik. Az otthon különlegessége a dupla galéria, amely kiválóan növeli a hasznos alapterületet, így ideális lehet akár dolgozósarok, hálórész vagy tároló kialakítására. A műanyag nyílászárók korszerűek, a fűtést gázkonvektorok biztosítják.

A környék folyamatosan fejlődik: közelben található iskola, óvoda, játszótér, boltok, kávézók, gyógyszertár, minden fontos szolgáltatás könnyen elérhető.
A közlekedés szintén kiváló, a metrómegálló pár perc sétára található.

Ez az ingatlan ideális választás mindazoknak, akik tágas, jó elosztású lakást keresnek egy értékálló, megújuló városrészben.

Jöjjön el, nézze meg, és tegyen ajánlatot!

INGYENES hitel tanácsadás!
BANKFÜGGETLEN hitelcentrumunk minden elérhető bank és hitelintézet ajánlatát versenyezteti az Ön kedvéért, ráadásul DÍJMENTESEN.

ID:386369 ...TOVÁBBI, TÖBBEZRES INGATLAN KÍNÁLAT: www.gdn-ingatlan.hu - GDN azonosító: 390308

Hirdetés feltöltve: 2025. 12. 02. Utoljára módosítva: 2026. 02. 06.

3 szobás téglalakások ára Budapesten

Ebből az összehasonlításból megtudhatod, hogyan viszonyul a lakás ára a környékbeli téglalakások átlagos árához. Ez nem azt jelenti, hogy ennyivel olcsóbb vagy drágább, mint amennyit a lakás ér, hanem hogy ennyivel tér el a környékbeli átlagtól.

Ennek a m² ára
VIII. kerület m² ár
Budapest m² ár
1277 e Ft
1394 e Ft 8%
1696 e Ft 25%
Ennek az ára
VIII. kerület átlagár
Budapest átlagár
114.9 M Ft m Ft
99.5 m Ft -15%
131.2 m Ft 12%

Az ingatlan elhelyezkedése

Cím: Budapest, VIII. kerület, 2. emelet

Eladó ingatlanok a környékről

XVI. kerület
Eladó téglalakás

Budapest, XVI. kerület

67.99 M Ft
2 szoba
49 m²
VII. kerület, Belső Erzsébetváros, Kertész utca 37.3.em. 1. ajtó
Eladó téglalakás

Budapest, VII. kerület

99.9 M Ft
2 szoba
91 m²
XIII. kerület
Eladó téglalakás

Budapest, XIII. kerület

92.5 M Ft
3 szoba
76 m²
VIII. kerület
Eladó téglalakás

Budapest, VIII. kerület

123.9 M Ft
3 szoba
98 m²
VIII. kerület, Józsefváros
Eladó téglalakás

Budapest, VIII. kerület

199 M Ft
18 szoba
859 m²
VIII. kerület
Eladó téglalakás

Budapest, VIII. kerület

61.6 M Ft
1 szoba
80 m²
VII. kerület, Külső Erzsébetváros, Nefelejcs utca
Eladó téglalakás

Budapest, VII. kerület

44.5 M Ft
1 szoba
19 m²
XX. kerület
Eladó ikerház

Budapest, XX. kerület

119 M Ft
6 szoba
170 m²
VIII. kerület
Eladó téglalakás

Budapest, VIII. kerület

105.272 M Ft
3 szoba
69 m²
VIII. kerület, Józsefváros, 8. Népszínház u
Eladó téglalakás

Budapest, VIII. kerület

79.8 M Ft
3 + 1 szoba
100 m²
VII. kerület, Külső Erzsébetváros, Nefelejcs utca
Eladó téglalakás

Budapest, VII. kerület

42 M Ft
1 + 1 szoba
15 m²
VIII. kerület, Józsefváros, Kálvária utca 16
Eladó téglalakás

Budapest, VIII. kerület

109.9 M Ft
4 szoba
79 m²
VIII. kerület, Rákóczi út
Eladó téglalakás

Budapest, VIII. kerület

90 M Ft
4 szoba
100 m²
VIII. kerület
Eladó téglalakás

Budapest, VIII. kerület

140.152 M Ft
3 szoba
87 m²
VIII. kerület, Józsefváros, Kálvária utca 16
Eladó téglalakás

Budapest, VIII. kerület

67 M Ft
1 + 1 szoba
47 m²
VII. kerület
Eladó téglalakás

Budapest, VII. kerület

95 M Ft
3 szoba
73 m²
VII. kerület, Külső Erzsébetváros, Nefelejcs utca
Eladó téglalakás

Budapest, VII. kerület

86.5 M Ft
2 szoba
57 m²
VIII. kerület, Józsefváros, Corvin sétány 2
Eladó téglalakás

Budapest, VIII. kerület

174.9 M Ft
3 szoba
72 m²
VIII. kerület
Eladó téglalakás

Budapest, VIII. kerület

67 M Ft
2 szoba
47 m²
XVIII. kerület
Eladó családi ház

Budapest, XVIII. kerület

148 M Ft
6 szoba
179 m²
XIV. kerület, Rákosfalva
Eladó panellakás

Budapest, XIV. kerület

81.9 M Ft
3 szoba
59 m²
XIII. kerület
Eladó téglalakás

Budapest, XIII. kerület

121 M Ft
3 szoba
67 m²
IX. kerület
Eladó ipari ingatlan

Budapest, IX. kerület

450 M Ft
3000 m²
1081 m²
VIII. kerület
Eladó téglalakás

Budapest, VIII. kerület

70.9 M Ft
2 szoba
62 m²

Falusi CSOK ingatlanok

Bugac
Eladó családi ház

Bugac

55 M Ft
3 szoba
90 m²
Úri
Eladó családi ház

Úri

260 M Ft
7 szoba
300 m²
Farmos
Eladó családi ház

Farmos

64.9 M Ft
3 szoba
101 m²
Balatonfenyves
Eladó családi ház

Balatonfenyves

430 M Ft
4 szoba
274 m²
Törtel
Eladó családi ház

Törtel

44 M Ft
2 + 1 szoba
81 m²
Tápióbicske
Eladó családi ház

Tápióbicske

15 M Ft
2 szoba
62 m²
Letenye
Eladó családi ház

Letenye

46.5 M Ft
7 szoba
220 m²
Tápiószőlős
Eladó családi ház

Tápiószőlős

47.5 M Ft
5 szoba
122 m²