Astora Art House

Eladó téglalakás
Budapest, VIII. kerület, 1. emelet

+ 17 kép 1/20
149 900 000 Ft149.9 M Ft 1 529 592 Ft/m2
3 + 1 szoba
98 m²
1. emelet
építés éve:1900

Részletes adatok

Állapot: Felújított
Fűtés: Gázkazán
Emelet: 1. emelet
Komfort: Összkomfortos
Energetikai besorolás: D

Az OTP Bank lakáshitel ajánlataFizetett hirdetés

+36 70 369
Juhász Emese
referens

Érdekel az OTP Bank kedvezményes lakáshitel ajánlata? *

* A kérdésre „Igen” válasz bejelölése esetén, az „Üzenet küldése” gombra kattintva kijelentem, hogy az OTP Bank Nyrt. Adatkezelési tájékoztatójának tartalmát megismertem és tudomásul vettem.

Eladó téglalakás leírása

Belvárosi különlegesség, otthon és befektetés egyben

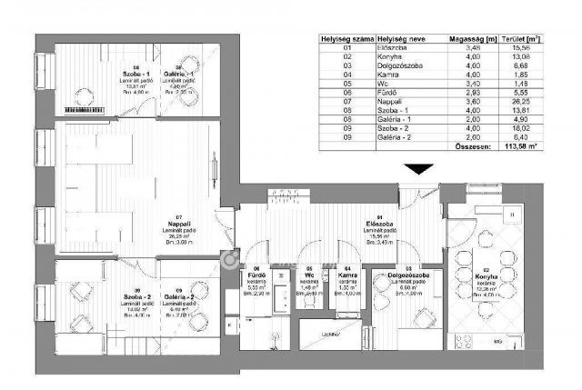
A VII. és VIII. kerület határán, csendes mellékutcában található ez a napfényes, első emeleti, 113 m2-es lakás, amelyet építészcsalád tervei alapján, kompromisszumok nélkül újítottak fel. A letisztult, modern stílus és az egyedi részletmegoldások harmóniája olyan otthont eredményezett, amely valóban azonnal költözhető, és hosszú távon is értékálló befektetést jelent.

A lakás teljes körű, dokumentált felújításon esett át: minden közmű, burkolat és nyílászáró megújult, a fűtést gazdaságos kondenzációs gázkazán, a hűtést álmennyezetbe rejtett, WiFi-ről vezérelhető klíma biztosítja. Az alacsony rezsiköltségek (átlagosan villany 6.000 Ft, gáz 7.000 Ft, víz 4.000 Ft, közös költség 34.000 Ft) kényelmes fenntarthatóságot kínálnak a belváros szívében.

A vételár része a modern, beépített Gorenje konyhai gépekkel felszerelt konyha, valamint az egyedileg tervezett bútorok, lámpák és kanapé, így az új tulajdonos valóban csak a személyes tárgyait kell, hogy hozza. A további berendezési tárgyak megegyezés szerint elérhetők.

A környék kivételes: néhány perc sétára találhatók az M2 és M4 metróvonalak, a 4-6-os villamos, valamint több busz- és troli járat. A Keleti pályaudvar 6 perc alatt elérhető, így a város bármely pontja gyorsan megközelíthető. A II. János Pál Pápa tér közelsége sportolásra, kikapcsolódásra kínál lehetőséget, míg a környék üzletei, színházai és bevásárlóközpontjai a mindennapok kényelmét szolgálják.

A rendezett, liftes társasház hangulatos, zöld belső udvarral, erős közös képviselettel és stabil pénzügyi háttérrel rendelkezik, ami szintén hozzájárul az ingatlan biztonságos értéknövekedéséhez.

Ez a lakás nemcsak egy stílusos és tágas otthon, hanem egy megbízható befektetés is, amely rövid határidővel birtokba vehető.

Amennyiben az ingatlan felkeltette az érdeklődését, kérem, vegye fel velem a kapcsolatot!
Az adásvételi szerződés megkötéséhez igény szerint megbízható ügyvédi és hitelügyintézői közreműködést biztosítunk, és segítséget nyújtunk az adásvételhez kapcsolódó ügyek intézéséhez.

Referencia szám: M312521

Hirdetés feltöltve: 2025. 10. 07. Utoljára módosítva: 2026. 05. 13.

4 szobás téglalakások ára Budapesten

Ebből az összehasonlításból megtudhatod, hogyan viszonyul a lakás ára a környékbeli téglalakások átlagos árához. Ez nem azt jelenti, hogy ennyivel olcsóbb vagy drágább, mint amennyit a lakás ér, hanem hogy ennyivel tér el a környékbeli átlagtól.

Ennek a m² ára
VIII. kerület m² ár
Budapest m² ár
1530 e Ft
1343 e Ft -14%
1757 e Ft 13%
Ennek az ára
VIII. kerület átlagár
Budapest átlagár
149.9 M Ft m Ft
118.1 m Ft -27%
183.6 m Ft 18%

Az ingatlan elhelyezkedése

Cím: Budapest, VIII. kerület, 1. emelet

Eladó ingatlanok a környékről

VIII. kerület
Eladó téglalakás

Budapest, VIII. kerület

85.418 M Ft
2 szoba
58 m²
VIII. kerület, Józsefváros, Budapest VIII., Corvin sétány
Eladó téglalakás

Budapest, VIII. kerület

74.9 M Ft
1 szoba
34 m²
VIII. kerület
Eladó téglalakás

Budapest, VIII. kerület

69.9 M Ft
3 szoba
84 m²
VIII. kerület, Palotanegyed, Békési utca
Eladó téglalakás

Budapest, VIII. kerület

44.7 M Ft
2 szoba
42 m²
VIII. kerület, Palotanegyed, Békési utca
Eladó téglalakás

Budapest, VIII. kerület

38.8 M Ft
1 szoba
33 m²
VIII. kerület
Eladó téglalakás

Budapest, VIII. kerület

141.464 M Ft
3 szoba
89 m²
XIII. kerület, Vizafogó, Sólyatér utca 15
Eladó téglalakás

Budapest, XIII. kerület

82.32 M Ft
1 szoba
36 m²
XI. kerület, Kelenföld, Budafoki út 64/B
Eladó téglalakás

Budapest, XI. kerület

97.125 M Ft
2 szoba
39 m²
VIII. kerület, Józsefváros
Eladó téglalakás

Budapest, VIII. kerület

61.6 M Ft
1 szoba
80 m²
VIII. kerület
Eladó téglalakás

Budapest, VIII. kerület

140.152 M Ft
3 szoba
87 m²
XIII. kerület, Vizafogó, Sólyatér utca 15
Eladó téglalakás

Budapest, XIII. kerület

95.025 M Ft
2 szoba
44 m²
VIII. kerület
Eladó téglalakás

Budapest, VIII. kerület

105.272 M Ft
3 szoba
69 m²
XI. kerület, Kelenföld, Budafoki út 64/B
Eladó téglalakás

Budapest, XI. kerület

90.405 M Ft
2 szoba
40 m²
XI. kerület, Kelenföld, Budafoki út 64/B
Eladó téglalakás

Budapest, XI. kerület

75.495 M Ft
1 szoba
32 m²
XIII. kerület, Vizafogó, Sólyatér utca 15
Eladó téglalakás

Budapest, XIII. kerület

80.22 M Ft
1 szoba
38 m²
XI. kerület, Kelenföld, Budafoki út 64/B
Eladó téglalakás

Budapest, XI. kerület

97.545 M Ft
2 szoba
45 m²
VIII. kerület
Eladó téglalakás

Budapest, VIII. kerület

88.504 M Ft
2 szoba
55 m²
VIII. kerület
Eladó téglalakás

Budapest, VIII. kerület

67 M Ft
2 szoba
47 m²
VIII. kerület
Eladó téglalakás

Budapest, VIII. kerület

199 M Ft
20 szoba
859 m²
VIII. kerület, Józsefváros, Nagy Fuvaros utca 27
Eladó téglalakás

Budapest, VIII. kerület

129.8 M Ft
4 szoba
172 m²
XI. kerület, Kelenföld, Budafoki út 64/B
Eladó téglalakás

Budapest, XI. kerület

143.535 M Ft
3 szoba
67 m²
VIII. kerület, Józsefváros, Kálvária utca 16
Eladó téglalakás

Budapest, VIII. kerület

109.9 M Ft
4 szoba
79 m²
XI. kerület, Kelenföld, Budafoki út 64/B
Eladó téglalakás

Budapest, XI. kerület

137.13 M Ft
3 szoba
62 m²
VIII. kerület, Józsefváros, 8. Népszínház u
Eladó téglalakás

Budapest, VIII. kerület

79.8 M Ft
3 + 1 szoba
100 m²

Falusi CSOK ingatlanok

Zsámbok
Eladó családi ház

Zsámbok

30 M Ft
2 szoba
58 m²
Ceglédbercel
Eladó családi ház

Ceglédbercel

67 M Ft
3 szoba
97 m²
Himesháza
Eladó családi ház

Himesháza

30 M Ft
3 szoba
92 m²
Balinka, Petőfi S. utca 27
Eladó családi ház

Balinka

12.65 M Ft
1 + 2 szoba
79 m²
Marcalgergelyi
Eladó családi ház

Marcalgergelyi

31 M Ft
2 + 1 szoba
120 m²
Gyékényes
Eladó családi ház

Gyékényes

16.9 M Ft
3 szoba
83 m²
Bakonycsernye
Eladó családi ház

Bakonycsernye

39 M Ft
3 szoba
350 m²
Tóalmás
Eladó családi ház

Tóalmás

38.9 M Ft
3 szoba
62 m²