BAM Living

Eladó téglalakás
Budapest, VII. kerület, földszint

+ 7 kép 1/10
43 800 000 Ft43.8 M Ft 2 305 263 Ft/m2
2 szoba
19 m²
földszint
építés éve:1900

Részletes adatok

Állapot: Felújított
Fűtés: Elektromos
Emelet: földszint
Energetikai besorolás: Nem adta meg a hirdető

Az OTP Bank lakáshitel ajánlataFizetett hirdetés

+36 1 690
Lakatos Barbara
Duna House Kispest

Érdekel az OTP Bank kedvezményes lakáshitel ajánlata? *

* A kérdésre „Igen” válasz bejelölése esetén, az „Üzenet küldése” gombra kattintva kijelentem, hogy az OTP Bank Nyrt. Adatkezelési tájékoztatójának tartalmát megismertem és tudomásul vettem.

Eladó téglalakás leírása

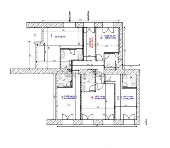
MINIGARZON ELADÓ!7. kerületben, Szinva utcában, rendezett társasház magasföldszintjén, 89 nm alapterület + 46 nm ingatlan, 5 lakóegységre osztott egyik lakását kínáljuk eladásra. A felújítás még zajlik, de már rugalmasan megtekinthetőek. 2026 márciusában költözhetőek. Minden lakás konyhával, nappalival, fürdőszobával és galériás hálószobával rendelkezik. 4.2 m. belmagasságával kényelmes otthont biztosít. Észak keleti fekvésű, külön villany és vízórával felszereltek. Az ár tartalmazza a beépített bútorokat. A lakások külön, ügyvédi megosztással megvásárolhatóak, de az 5 minigarzon egyben is eladó.2. lakás: 12,6 nm + 6,7 nm galéria. További információkért, megtekintésre hívjon bizalommal!
Megbízhatóan, gyorsan és az Ön érdekeit szem előtt tartva dolgozom, a teljes értékesítési folyamat során.

Referencia szám: LK061675

Hirdetés feltöltve: 2026. 03. 05. Utoljára módosítva: 2026. 03. 05.

2 szobás téglalakások ára Budapesten

Ebből az összehasonlításból megtudhatod, hogyan viszonyul a lakás ára a környékbeli téglalakások átlagos árához. Ez nem azt jelenti, hogy ennyivel olcsóbb vagy drágább, mint amennyit a lakás ér, hanem hogy ennyivel tér el a környékbeli átlagtól.

Ennek a m² ára
VII. kerület m² ár
Budapest m² ár
2305 e Ft
1588 e Ft -45%
1695 e Ft -36%
Ennek az ára
VII. kerület átlagár
Budapest átlagár
43.8 M Ft m Ft
95.9 m Ft 54%
90.3 m Ft 51%

Az ingatlan elhelyezkedése

Cím: Budapest, VII. kerület, földszint

Eladó ingatlanok a környékről

VII. kerület, Belső Erzsébetváros, Dob utca
Eladó téglalakás

Budapest, VII. kerület

212 M Ft
4 szoba
180 m²
III. kerület, Békásmegyer
Eladó panellakás

Budapest, III. kerület

65 M Ft
2 szoba
51 m²
VII. kerület
Eladó téglalakás

Budapest, VII. kerület

124 M Ft
3 szoba
69 m²
XIII. kerület
Eladó panellakás

Budapest, XIII. kerület

68.5 M Ft
2 szoba
49 m²
XIX. kerület
Eladó panellakás

Budapest, XIX. kerület

68.5 M Ft
3 szoba
52 m²
XIII. kerület
Eladó téglalakás

Budapest, XIII. kerület

99.9 M Ft
3 szoba
60 m²
VII. kerület
Eladó téglalakás

Budapest, VII. kerület

139 M Ft
3 szoba
86 m²
VII. kerület
Eladó téglalakás

Budapest, VII. kerület

169 M Ft
3 + 1 szoba
114 m²
VII. kerület
Eladó téglalakás

Budapest, VII. kerület

155.9 M Ft
3 szoba
129 m²
VIII. kerület
Eladó téglalakás

Budapest, VIII. kerület

69 M Ft
2 szoba
46 m²
XIV. kerület, Alsórákos
Eladó panellakás

Budapest, XIV. kerület

59.98 M Ft
1 + 1 szoba
46 m²
III. kerület
Eladó panellakás

Budapest, III. kerület

99.45 M Ft
4 szoba
73 m²
VII. kerület
Eladó téglalakás

Budapest, VII. kerület

185 M Ft
3 szoba
128 m²
XIII. kerület
Eladó téglalakás

Budapest, XIII. kerület

157 M Ft
2 szoba
63 m²
VII. kerület, Zsinagógával szemben
Eladó téglalakás

Budapest, VII. kerület

89 M Ft
2 szoba
62 m²
II. kerület
Eladó téglalakás

Budapest, II. kerület

63 M Ft
2 szoba
65 m²
VII. kerület
Eladó téglalakás

Budapest, VII. kerület

75 M Ft
1 + 2 szoba
60 m²
VII. kerület
Eladó téglalakás

Budapest, VII. kerület

32.9 M Ft
3 szoba
88 m²
VI. kerület
Eladó téglalakás

Budapest, VI. kerület

74.3 M Ft
2 szoba
42 m²
VII. kerület, Külső Erzsébetváros, Dohány utca
Eladó téglalakás

Budapest, VII. kerület

135 M Ft
3 szoba
86 m²
XIII. kerület
Eladó családi ház

Budapest, XIII. kerület

350 M Ft
5 szoba
270 m²
III. kerület
Eladó panellakás

Budapest, III. kerület

69.9 M Ft
3 szoba
57 m²
XIII. kerület
Eladó panellakás

Budapest, XIII. kerület

79.5 M Ft
1 + 2 szoba
58 m²
XIV. kerület
Eladó panellakás

Budapest, XIV. kerület

64 M Ft
1 + 1 szoba
49 m²

Falusi CSOK ingatlanok

Bogács
Eladó családi ház

Bogács

89.5 M Ft
4 + 2 szoba
180 m²
Kadarkút, Szabadság utca
Eladó családi ház

Kadarkút

27 M Ft
3 szoba
80 m²
Herend
Eladó téglalakás

Herend

59.99 M Ft
3 szoba
69 m²
Mezőkeresztes
Eladó ikerház

Mezőkeresztes

14.9 M Ft
2 + 1 szoba
70 m²
Csemő
Eladó családi ház

Csemő

89 M Ft
4 szoba
140 m²
Váckisújfalu, Petőfi Sándor utca
Eladó családi ház

Váckisújfalu

84.77 M Ft
4 szoba
166 m²
Kisszállás
Eladó családi ház

Kisszállás

95 M Ft
3 szoba
125 m²
Tápióság
Eladó családi ház

Tápióság

29.9 M Ft
3 + 1 szoba
75 m²