BAM Living

Eladó téglalakás
Budapest, VII. kerület, Külső Erzsébetváros, Damjanich utca, 4. emelet

+ 17 kép 1/20
229 000 000 Ft229 M Ft 1 568 493 Ft/m2
4 szoba
146 m2
4. emelet

Részletes adatok

Állapot: Felújítandó
Fűtés: Egyéb
Extrák: Lift
Energetikai besorolás: Nem adta meg a hirdető

Az OTP Bank lakáshitel ajánlataFizetett hirdetés

+36 70 436
Kőfalusi Eszter
referens

Érdekel az OTP Bank kedvezményes lakáshitel ajánlata? *

* A kérdésre „Igen” válasz bejelölése esetén, az „Üzenet küldése” gombra kattintva kijelentem, hogy az OTP Bank Nyrt. Adatkezelési tájékoztatójának tartalmát megismertem és tudomásul vettem.

Eladó téglalakás leírása

BEFEKTETŐK FIGYELEM!
3 APARTMANNÁ IS ALAKÍTHATÓ, IMPOZÁNS, PRAKTIKUS ELOSZTÁSÚ TELJESEN FELÚJÍTANDÓ INGATLAN FREKVENTÁLT HELYEN!

A LIGETVÁROS-i városrésznél található ez a VII. kerületi, kiváló állapotú Damjanich utcai házban lévő igényes lakóingatlan, amely úgy a Belváros, mint a Városliget kedvelőinek, IRODA KERESŐKNEK IS KIVÁLÓ VÁLASZTÁS!

Nagypolgári, 146nm, 4. emeleti, liftes, összkomfortos, napfényes és világos, tágas terekkel rendelkező részpanorámás, TELJESEN FELÚJÍTANDÓ öröklakás ELADÓ!
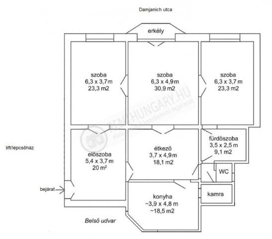
A lakás utcai tájolása Észak-Nyugati, míg a konyha ablakai, az előszoba, a fürdőszoba és a mellékhelyiség ablaka Dél-Keleti.

Előnyös beosztásának köszönhetően a helyiségek, így a szobák is, külön-külön és egybe nyithatóan is használhatóak.
A belmagasság 3,7 m.

Az ingatlan per-,tehermentes, akár azonnal birtokba vehető!

A lakóingatlan nyolc helyiségből áll:
tágas előszoba 20 nm, nagyterű konyha 15 nm, amely: háromszárnyas üvegajtóval összenyitható a társalgószobával 18 nm, nagy nappali szoba 31 nm, kettő hálószoba 23+23 nm, fürdőszoba toalettel és bidével 10 nm, mellékhelyiség az extra toalettel 5 nm: itt a szauna elektromos csatlakozása, szellőztetője, és a tusoló vizes blokkja is kiépített, így a szauna és ezzel együtt a dupla komfort is kialakítható.

A környék infrastruktúrája és ellátottsága kiváló, az utcakép rendezett.
A nagyon jó állapotú társasház 1911-ben épült. A ház csendes, lakóközössége kulturált, pénzügyei teljesen rendezettek, általános biztosítással rendelkezik a lakásokra is vonatkozó egyes kárrendezéssel!
Udvara szép kertes, dísznövényes, esővédett kerékpártárolóval.
Kapunyitás: Proxy kódos rendszerrel.

A lakóingatlan jó állapotú, víz és a villanyhálózata is (3 fázis!), teljes körűen felújított.
Cirkó fűtésrendszere modern Romantik radiátorokkal, rézcsövekkel, és minden helyiségre külön-külön leszabályozható fűtéssel megoldott.
A fürdőszobát és a mellékhelyiséget kivéve a lakás tölgyfaparkettás.

Egyéb adatok:
Közös költség 46500 Ft/hó, tartalmazza: takarítás, karbantartás-fenntartás, kertrendezés, általános biztosítás, és a megtakarítási alap képzését.
A lakás egyedi víz-, villany- és gázórával rendelkezik

A LIGETVÁROS még további fejlesztések előtt álló városrész, ahol a SPAR, a DM, családias teraszos kávézó, utazási iroda, FOXPOST és GLS csomag automaták, továbbá nagy és őrzött parkoló is van, bérelhető parkolóhelyekkel is.
Metró, Földalatti, Trolibusz, Villamos, Állatorvosi egyetem, Gyógyszertár, valamint a Városliget 5-10 percre vannak gyalogosan.

Hirdetés feltöltve: 2025. 10. 13. Utoljára módosítva: 2025. 11. 07.

4 szobás téglalakások ára Budapesten

Ebből az összehasonlításból megtudhatod, hogyan viszonyul a lakás ára a környékbeli téglalakások átlagos árához. Ez nem azt jelenti, hogy ennyivel olcsóbb vagy drágább, mint amennyit a lakás ér, hanem hogy ennyivel tér el a környékbeli átlagtól.

Ennek a m² ára
Külső Erzsébetváros m² ár
VII. kerület m² ár
Budapest m² ár
1568 e Ft
1614 e Ft 3%
1396 e Ft -12%
1741 e Ft 10%
Ennek az ára
Külső Erzsébetváros átlagár
VII. kerület átlagár
Budapest átlagár
229 M Ft m Ft
171.3 m Ft -34%
137.4 m Ft -67%
182.9 m Ft -25%

Az ingatlan elhelyezkedése

Cím: Budapest, VII. kerület, Külső Erzsébetváros, Damjanich utca, 4. emelet

Eladó ingatlanok a környékről

Eladó téglalakás
Eladó téglalakás

V. kerület, Belváros, Petőfi Sándor utca

134 M Ft
2 szoba
59 m2
Eladó téglalakás
Eladó téglalakás

III. kerület, Óbuda, Szomolnok utca

89.9 M Ft
2 + 2 szoba
96 m2
Eladó téglalakás
Eladó téglalakás

VII. kerület, Külső Erzsébetváros, Rottenbiller utca

95 M Ft
5 szoba
108 m2
Eladó téglalakás
Eladó téglalakás

VII. kerület

95 M Ft
2 szoba
71 m2
Eladó téglalakás
Eladó téglalakás

VII. kerület, Belső Erzsébetváros, Dob utca

212 M Ft
4 szoba
180 m2
Eladó családi ház
Eladó családi ház

XXII. kerület, Budafok

149.9 M Ft
3 szoba
118 m2
Eladó téglalakás
Eladó téglalakás

VII. kerület

170 M Ft
6 szoba
104 m2
Eladó családi ház
Eladó családi ház

XXII. kerület, Budafok, Baross utca

199 M Ft
6 + 1 szoba
200 m2
Eladó téglalakás
Eladó téglalakás

VII. kerület

124.9 M Ft
3 szoba
74 m2
Eladó téglalakás
Eladó téglalakás

XIII. kerület, Angyalföld, Fiastyúk utca

39.9 M Ft
1 + 1 szoba
34 m2
Eladó téglalakás
Eladó téglalakás

VIII. kerület

107 M Ft
2 szoba
95 m2
Eladó téglalakás
Eladó téglalakás

VII. kerület

125 M Ft
3 szoba
128 m2
Eladó téglalakás
Eladó téglalakás

VII. kerület

125 M Ft
4 szoba
118 m2
Eladó téglalakás
Eladó téglalakás

VII. kerület, Belső Erzsébetváros, Klauzál tér

85 M Ft
2 szoba
77 m2
Eladó téglalakás
Eladó téglalakás

VI. kerület, Külső Terézváros, Szív utca

119.5 M Ft
3 szoba
94 m2
Eladó téglalakás
Eladó téglalakás

VII. kerület, Külső Erzsébetváros, Damjanich utca

179 M Ft
7 szoba
157 m2
Eladó téglalakás
Eladó téglalakás

VII. kerület, Külső Erzsébetváros, Dohány utca

119.9 M Ft
2 szoba
55 m2
Eladó téglalakás
Eladó téglalakás

VII. kerület, Belső Erzsébetváros, Erzsébet körút

89.9 M Ft
1 + 1 szoba
71 m2
Eladó téglalakás
Eladó téglalakás

XI. kerület, Gellérthegy, Gombócz Zoltán utca

142 M Ft
2 + 1 szoba
71 m2
Eladó téglalakás
Eladó téglalakás

I. kerület, Krisztinaváros, Feszty Árpád utca

78.99 M Ft
1 szoba
28 m2
Eladó családi ház
Eladó családi ház

XVIII. kerület

199.9 M Ft
6 szoba
276 m2
Eladó téglalakás
Eladó téglalakás

VI. kerület, Külső Terézváros, Szófia utca

114.9 M Ft
4 szoba
103 m2
Eladó téglalakás
Eladó téglalakás

VII. kerület, Belső Erzsébetváros, Erzsébet körút

160 M Ft
3 szoba
88 m2
Eladó téglalakás
Eladó téglalakás

III. kerület, Óbudaisziget, Folyamőr utca

76.9 M Ft
1 szoba
25 m2

Falusi CSOK ingatlanok

Eladó családi ház
Eladó családi ház

Felsőlajos

100 M Ft
4 szoba
140 m2
Eladó családi ház
Eladó családi ház

Cece

23.5 M Ft
3 szoba
66 m2
Eladó családi ház
Eladó családi ház

Kétpó

14.9 M Ft
1 + 2 szoba
86 m2
Eladó családi ház
Eladó családi ház

Kaposgyarmat

695 M Ft
6 szoba
610 m2
Eladó családi ház
Eladó családi ház

Aszaló

16.49 M Ft
3 szoba
112 m2
Eladó családi ház
Eladó családi ház

Szarvaskend

26.9 M Ft
2 szoba
83 m2
Eladó téglalakás
Eladó téglalakás

Nagyharsány

22.5 M Ft
3 szoba
71 m2
Eladó családi ház
Eladó családi ház

Onga, 3562 Onga, József Attila utca 26

17.75 M Ft
1 + 1 szoba
174 m2