Eladó téglalakás
Budapest, VII. kerület, földszint
Részletes adatok
Az OTP Bank lakáshitel ajánlataFizetett hirdetés
Induló törlesztőrészlet
101 262 Ft /hóTörlesztőrészlet a 13. hónaptól
129 106 Ft /hóInduló törlesztőrészlet
135 016 Ft /hóTörlesztőrészlet a 13. hónaptól
172 142 Ft /hóA tájékoztatás nem teljes körű és nem minősül ajánlattételnek. Az OTP Évnyerő Lakáshitelei 1 éves türelmi idős kölcsönök, amellyel az első 12 hónapban alacsonyabb a havi törlesztőrészlet. A tőke törlesztését a 13. hónaptól kell megkezdeni.
Eladó téglalakás leírása
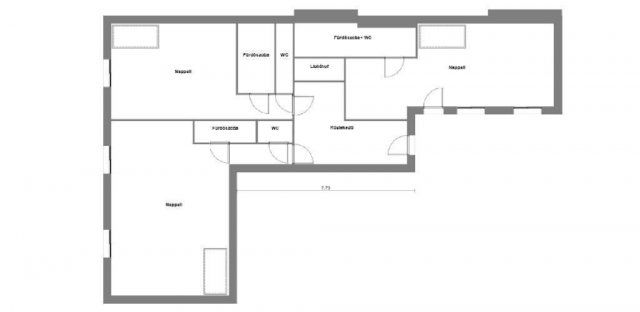
Befektetők Figyelem - 3 Lakásos, Teljesen Felújított Belső Kétszintes Ingatlan a Rottenbiller utcában, Stabil Hosszú Távú Bérlőkkel és Azonnali Hozammal
Eladó a VII. kerület frekventált, mégis csendes részén, a Rottenbiller utcában egy 150 nm-es, belső kétszintes polgári lakás, amely 3 különálló lakásként került kialakításra. Az ingatlan 2024-ben teljes körű felújításon esett át, így modern műszaki és esztétikai állapotban várja új tulajdonosát.
Az összes lakás jelenleg hosszú távra bérbe van adva, megbízható bérlőkkel, akik szerződésük lejártáig maradnának, így az ingatlan azonnal magas hozamot termel, minimális kockázat mellett.
Főbb jellemzők:
-150 nm, belső kétszintes kialakítás
-Mindegyik saját fürdőszobával és konyhával
-2,2 m belmagasság mindkét szinten
-Gázcirkó fűtés radiátoros hőleadással
-Klíma mindhárom lakásban, teljes komfort
-Teljes körű felújítás éve: 2024
-Stabil hosszú távú bérlők, akik maradnának a szerződések végéig
-Közlekedés: pár perc sétára a Keleti pályaudvar, metrók, villamosok, buszok könnyen elérhetők
-Kiváló lokáció: egyetemek, irodák, szolgáltatások, közlekedési csomópontok közelsége
Ez az ingatlan ideális választás azoknak a tudatos befektetőknek, akik egy frissen felújított, azonnali bevételt generáló, alacsony fenntartási költségű és kiváló elhelyezkedésű lakásportfóliót keresnek Budapest szívében. Céges vásárlók esetén 3%-os hitellel is megvásárolható az ingatlan. A vásárláshoz az OTP Bank kedvezményes lakáshitel konstrukcióival, egyedi akciókkal és kamatkedvezményekkel állunk ügyfeleink rendelkezésére, aminek ügyintézése DÍJMENTES. Amennyiben az ingatlan felkeltette az érdeklődését és szívesen megnézné, akkor hívjon bizalommal, akár hétvégén is!
Hirdetés feltöltve: 2025. 10. 07. Utoljára módosítva: 2025. 10. 07.
Az ingatlan elhelyezkedése
Cím: Budapest, VII. kerület, földszint
Eladó ingatlanok a környékről

VIII. kerület, Palotanegyed, Józsefváros (Nagykörúton kívül)
