Avico Greentop

Eladó téglalakás
Budapest, VI. kerület, 2. emelet

+ 3 kép 1/6
219 000 000 Ft219 M Ft 1 871 795 Ft/m2
4 szoba
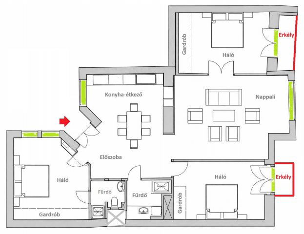
117 m²
2. emelet

Részletes adatok

Állapot: Felújított
Fűtés: Gázkazán
Emelet: 2. emelet
Közmű: Víz, Gáz, Villany, Csatorna
Extrák: Lift
Energetikai besorolás: Nem adta meg a hirdető

Az OTP Bank lakáshitel ajánlataFizetett hirdetés

+36 20 911
Lencsés Éva
Ingatlandokk

Érdekel az OTP Bank kedvezményes lakáshitel ajánlata? *

* A kérdésre „Igen” válasz bejelölése esetén, az „Üzenet küldése” gombra kattintva kijelentem, hogy az OTP Bank Nyrt. Adatkezelési tájékoztatójának tartalmát megismertem és tudomásul vettem.

Eladó téglalakás leírása

Átlagos állapotú társasházban jelenleg felújítás alatt lévő lakás eladó. II emelet utcai, két erkély, függő folyosós társasház. 19 lakásos a társasház. liftes, 117 nm, 4 szoba, 6 nm erkély, belmagasság 3,8 m, DK-i tájolású, közös költség 45630 Ft/hó, fűtő-hűtő klíma, pince, tehermentes,
nappali+három háló, előszoba+konyha+étkező, külön wc, dupla komfort, 3 db beépitett gardróbszerkény
Bútorral együtt

Hirdetés feltöltve: 2026. 03. 20. Utoljára módosítva: 2026. 04. 02.

4 szobás téglalakások ára Budapesten

Ebből az összehasonlításból megtudhatod, hogyan viszonyul a lakás ára a környékbeli téglalakások átlagos árához. Ez nem azt jelenti, hogy ennyivel olcsóbb vagy drágább, mint amennyit a lakás ér, hanem hogy ennyivel tér el a környékbeli átlagtól.

Ennek a m² ára
VI. kerület m² ár
Budapest m² ár
1872 e Ft
1786 e Ft -5%
1783 e Ft -5%
Ennek az ára
VI. kerület átlagár
Budapest átlagár
219 M Ft m Ft
189.6 m Ft -16%
186.4 m Ft -17%

Az ingatlan elhelyezkedése

Cím: Budapest, VI. kerület, 2. emelet

Eladó ingatlanok a környékről

VI. kerület
Eladó téglalakás

Budapest, VI. kerület

154.9 M Ft
4 szoba
128 m²
XII. kerület
Eladó téglalakás

Budapest, XII. kerület

70 M Ft
2 szoba
32 m²
VI. kerület, Belső Terézváros, Andrássy út
Eladó téglalakás

Budapest, VI. kerület

214.9 M Ft
3 szoba
94 m²
VII. kerület
Eladó téglalakás

Budapest, VII. kerület

57.9 M Ft
1 szoba
29 m²
VI. kerület, Belső Terézváros, Andrássy út
Eladó téglalakás

Budapest, VI. kerület

291.304 M Ft
5 szoba
160 m²
XV. kerület
Eladó panellakás

Budapest, XV. kerület

63.5 M Ft
2 szoba
53 m²
XIII. kerület, Angyalföld, Dévai utca Lőportár 17
Eladó téglalakás

Budapest, XIII. kerület

71.205 M Ft
1 szoba
32 m²
XIII. kerület, Angyalföld, Dévai utca Lőportár 17
Eladó téglalakás

Budapest, XIII. kerület

139.405 M Ft
3 szoba
77 m²
XIII. kerület, Angyalföld, Dévai utca Lőportár 17
Eladó téglalakás

Budapest, XIII. kerület

88.861 M Ft
2 szoba
42 m²
XIII. kerület, Angyalföld, Dévai utca Lőportár 17
Eladó téglalakás

Budapest, XIII. kerület

89.889 M Ft
2 szoba
45 m²
XIV. kerület
Eladó panellakás

Budapest, XIV. kerület

64.9 M Ft
2 szoba
46 m²
VI. kerület, Belső Terézváros, Bajcsy-Zsilinszky út
Eladó téglalakás

Budapest, VI. kerület

149 M Ft
3 szoba
98 m²
XIII. kerület, Angyalföld, Dévai utca Lőportár 17
Eladó téglalakás

Budapest, XIII. kerület

71.205 M Ft
1 szoba
32 m²
VI. kerület, Külső Terézváros, Szinyei Merse utca
Eladó téglalakás

Budapest, VI. kerület

114.9 M Ft
3 szoba
93 m²
VI. kerület, Szondi utca
Eladó téglalakás

Budapest, VI. kerület

130 M Ft
2 + 1 szoba
99 m²
VI. kerület, Belső Terézváros, Teréz körút
Eladó téglalakás

Budapest, VI. kerület

51 M Ft
1 szoba
49 m²
VI. kerület, Belső Terézváros, Andrássy út
Eladó téglalakás

Budapest, VI. kerület

329.9 M Ft
146 m²
VI. kerület
Eladó téglalakás

Budapest, VI. kerület

139 M Ft
6 szoba
130 m²
VIII. kerület
Eladó téglalakás

Budapest, VIII. kerület

104.9 M Ft
3 szoba
65 m²
VI. kerület, Belső Terézváros, Teréz körúton
Eladó téglalakás

Budapest, VI. kerület

150 M Ft
3 szoba
105 m²
VI. kerület
Eladó téglalakás

Budapest, VI. kerület

119.9 M Ft
4 szoba
75 m²
VI. kerület
Eladó téglalakás

Budapest, VI. kerület

125.724 M Ft
3 szoba
77 m²
VI. kerület
Eladó téglalakás

Budapest, VI. kerület

315 M Ft
4 szoba
143 m²
XIII. kerület, Angyalföld, Dévai utca Lőportár 17
Eladó téglalakás

Budapest, XIII. kerület

69.483 M Ft
1 szoba
32 m²

Falusi CSOK ingatlanok

Villány
Eladó családi ház

Villány

31 M Ft
1 szoba
35 m²
Baks
Eladó családi ház

Baks

18.9 M Ft
3 szoba
118 m²
Somogyszil
Eladó családi ház

Somogyszil

27.9 M Ft
3 szoba
140 m²
Perőcsény
Eladó családi ház

Perőcsény

59 M Ft
3 szoba
128 m²
Balatonakali
Eladó ikerház

Balatonakali

560 M Ft
4 szoba
140 m²
Izsófalva
Eladó családi ház

Izsófalva

22.9 M Ft
3 szoba
105 m²
Bükkábrány
Eladó családi ház

Bükkábrány

37.5 M Ft
5 + 1 szoba
180 m²
Drávaszabolcs
Eladó családi ház

Drávaszabolcs

29 M Ft
4 szoba
90 m²