Kedves Felhasználónk! Rendszerfrissítés miatt az oldalunk 2026. február 9-én 12 órától várhatóan 20 óráig nem lesz elérhető. Köszönjük megértésed!
BAM Living

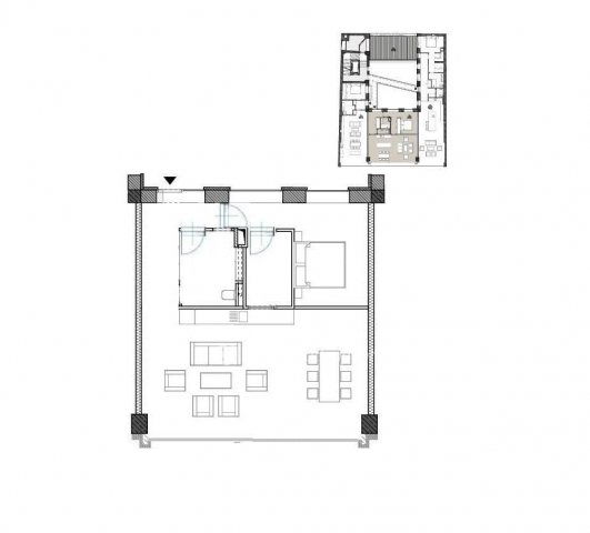
Eladó téglalakás
Budapest, V. kerület, Belváros, 6. emelet

+ 10 kép 1/13
218 000 000 Ft218 M Ft 2 759 494 Ft/m2
2 szoba
79 m2
6. emelet
építés éve:2018

Részletes adatok

Fűtés: Egyéb
Emelet: 6. emelet
Extrák: Lift
Energetikai besorolás: Nem adta meg a hirdető

Az OTP Bank lakáshitel ajánlataFizetett hirdetés

+36 30 309
Sipos-Drotár Marianna
referens

Érdekel az OTP Bank kedvezményes lakáshitel ajánlata? *

* A kérdésre „Igen” válasz bejelölése esetén, az „Üzenet küldése” gombra kattintva kijelentem, hogy az OTP Bank Nyrt. Adatkezelési tájékoztatójának tartalmát megismertem és tudomásul vettem.

Eladó téglalakás leírása

Budapest belváros, V. kerület, 6. emeleti 79 m2-es lakás eladó. Az épület 2018-ban teljesen új belsőt kapott, a tervezők 31 egyedi stílusú loft lakást alakítottak ki. A teljes 6. emelet megvásárolható, a lakások egybenyitására van lehetőség. (246 m2)
Tökéletes lokáció, tágas, világos terek és nagy belmagasságok, industrial stílus jellemzi a lakásokat. A hirdetésben szereplő lakás helyiségei: amerikai konyhás nappali, 1 hálószoba, 2 fürdőszoba, közlekedők. A nappali a Múzeum körútra néz, padlótól a mennyezetig érő közel 9 m széles ablakfelülettel.
A liftes ház belső udvarában acél hidak helyettesítik a korábbi körfolyosókat. Minden lakásban fan-coil rendszer biztosítja a fűtést és hűtést, padlófűtéssel kiegészítve.
Az épület Budapest központjában az Astoria metró megállónál található. Közeli bkk járatok: 47, 49-es villamos, a 7, 107,110, 112-es, busz. Séta távolságra van a Deák Ferenc tér a város legnagyobb tömegközlekedési csomópontja, három metróvonallal (M1, M2, M3). Gyorsan birtokba vehető.

Hirdetés feltöltve: 2026. 02. 07. Utoljára módosítva: 2026. 02. 07.

2 szobás téglalakások ára Budapesten

Ebből az összehasonlításból megtudhatod, hogyan viszonyul a lakás ára a környékbeli téglalakások átlagos árához. Ez nem azt jelenti, hogy ennyivel olcsóbb vagy drágább, mint amennyit a lakás ér, hanem hogy ennyivel tér el a környékbeli átlagtól.

Ennek a m² ára
Belváros m² ár
V. kerület m² ár
Budapest m² ár
2759 e Ft
1988 e Ft -39%
2363 e Ft -17%
1698 e Ft -63%
Ennek az ára
Belváros átlagár
V. kerület átlagár
Budapest átlagár
218 M Ft m Ft
376.4 m Ft 42%
139 m Ft -57%
90.5 m Ft -141%

Az ingatlan elhelyezkedése

Cím: Budapest, V. kerület, Belváros, 6. emelet

Eladó ingatlanok a környékről

Eladó téglalakás
Eladó téglalakás

V. kerület

339.9 M Ft
4 szoba
121 m2
Eladó családi ház
Eladó családi ház

XXII. kerület, Budafok, Baross utca

222 M Ft
6 + 1 szoba
200 m2
Eladó iroda
Eladó iroda

I. kerület, Víziváros, Széna tér

189 M Ft
4 szoba
90 m2
Eladó téglalakás
Eladó téglalakás

XIV. kerület, Kiszugló, Kövér Lajos utca

168 M Ft
3 + 1 szoba
84 m2
Eladó téglalakás
Eladó téglalakás

V. kerület

319 M Ft
3 szoba
107 m2
Eladó téglalakás
Eladó téglalakás

V. kerület, Bajcsy-Zsilinszky út

130 M Ft
3 szoba
76 m2
Eladó téglalakás
Eladó téglalakás

VI. kerület, Belső Terézváros, Jókai utca

87.6 M Ft
3 szoba
75 m2
Eladó téglalakás
Eladó téglalakás

I. kerület, Krisztinaváros, Széna tér

189 M Ft
4 szoba
90 m2
Eladó téglalakás
Eladó téglalakás

IV. kerület, Újpest, Kassai utca

84.9 M Ft
2 + 1 szoba
71 m2
Eladó téglalakás
Eladó téglalakás

V. kerület, Belváros

361.95 M Ft
3 szoba
176 m2
Eladó téglalakás
Eladó téglalakás

III. kerület, Óbuda, Szomolnok utca

89.9 M Ft
2 + 2 szoba
96 m2
Eladó téglalakás
Eladó téglalakás

V. kerület

31.9 M Ft
1 szoba
9 m2
Eladó téglalakás
Eladó téglalakás

V. kerület, Belváros

758.62 M Ft
6 szoba
310 m2
Eladó téglalakás
Eladó téglalakás

XI. kerület, Albertfalva

88.8 M Ft
2 szoba
51 m2
Eladó téglalakás
Eladó téglalakás

V. kerület, Belváros, Petőfi Sándor utca

134 M Ft
2 szoba
59 m2
Eladó téglalakás
Eladó téglalakás

VIII. kerület, Palotanegyed, Rákóczi út

180 M Ft
5 szoba
121 m2
Eladó téglalakás
Eladó téglalakás

V. kerület, Lipótváros, Szent István körút

175 M Ft
3 szoba
90 m2
Eladó téglalakás
Eladó téglalakás

VI. kerület, Külső Terézváros, Szófia utca

112.9 M Ft
4 szoba
103 m2
Eladó téglalakás
Eladó téglalakás

I. kerület, Krisztinaváros, Feszty Árpád utca

78.99 M Ft
1 szoba
28 m2
Eladó téglalakás
Eladó téglalakás

V. kerület, Lipótváros, Luxus minőségű lakás

116 M Ft
51 m2
Eladó téglalakás
Eladó téglalakás

V. kerület

130 M Ft
2 szoba
55 m2
Eladó téglalakás
Eladó téglalakás

V. kerület, Lipótváros, Széchenyi utca

283 M Ft
5 szoba
157 m2
Eladó téglalakás
Eladó téglalakás

VIII. kerület

69.9 M Ft
2 szoba
43 m2
Eladó téglalakás
Eladó téglalakás

XIII. kerület

53.9 M Ft
1 + 1 szoba
32 m2

Falusi CSOK ingatlanok

Eladó családi ház
Eladó családi ház

Jászjákóhalma

23 M Ft
3 szoba
113 m2
Eladó családi ház
Eladó családi ház

Szigliget

299 M Ft
3 szoba
95 m2
Eladó családi ház
Eladó családi ház

Újlengyel

110 M Ft
4 szoba
121 m2
Eladó családi ház
Eladó családi ház

Ónod, Szent István u. 9

9.24 M Ft
1 + 1 szoba
155 m2
Eladó téglalakás
Eladó téglalakás

Balatonszemes

123.3 M Ft
2 szoba
70 m2
Eladó családi ház
Eladó családi ház

Recsk

23 M Ft
3 szoba
98 m2
Eladó családi ház
Eladó családi ház

Iváncsa

33.9 M Ft
2 + 1 szoba
72 m2
Eladó családi ház
Eladó családi ház

Háromfa, Kossuth

22.4 M Ft
139 m2