Astora Olive Club House

Eladó téglalakás
Budapest, IX. kerület, 1. emelet

+ 11 kép 1/14
99 900 000 Ft99.9 M Ft 1 447 826 Ft/m2
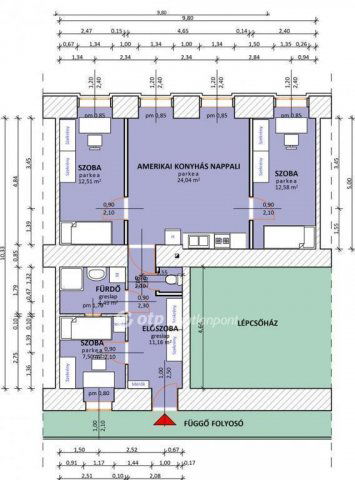
3 + 1 szoba
69 m2
1. emelet
építés éve:1920

Részletes adatok

Fűtés: Gázkazán
Energetikai besorolás: Nem adta meg a hirdető

Az OTP Bank lakáshitel ajánlataFizetett hirdetés

+36 30 426
Dr. Jakus Péter
referens

Érdekel az OTP Bank kedvezményes lakáshitel ajánlata? *

* A kérdésre „Igen” válasz bejelölése esetén, az „Üzenet küldése” gombra kattintva kijelentem, hogy az OTP Bank Nyrt. Adatkezelési tájékoztatójának tartalmát megismertem és tudomásul vettem.

Eladó téglalakás leírása

Eladó polgári lakás a Kálvin tér közelében, elegancia, tágas terek, kiváló befektetés!

Budapest belvárosában, a Kálvin tér közvetlen közelében kínálunk megvételre egy 72 m²-es, téglaépítésű, polgári stílusú lakást, amely a múlt század hangulatát ötvözi a modern kényelemmel. A 4,5 méteres belmagasságának köszönhetően a terek rendkívül tágasak és világosak, a lakás pedig három teljes szobával és egy félszobával rendelkezik, így akár családok, akár befektetők számára is ideális választás lehet.

Az ingatlan gáz-cirkó fűtésű, belső és külső állapota egyaránt jó, azonnal költözhető. A lakás teljesen bútorozott és ízlésesen berendezett, így új tulajdonosának semmilyen további ráfordítást nem igényel. Külön előnyt jelent, hogy jelenleg megbízható bérlők lakják, akik szívesen maradnának a jövőben is, így az ingatlan akár az első naptól biztos és folyamatos hozamot jelenthet befektetője számára.

A társasház rendezett, zárt lépcsőházas, lakóközössége igényes és csendes. A közös költség mindössze 15.000 Ft havonta. A parkolás közterületen, fizetős övezetben lehetséges.

A környék infrastruktúrája és közlekedése kiemelkedő: a Kálvin tér, az M3-as és M4-es metró, valamint számos villamos- és buszjárat pár perc sétával elérhető, így a város bármely pontja gyorsan megközelíthető. A közvetlen környezetben kávézók, éttermek, kulturális intézmények és bevásárlási lehetőségek sora található, ami még vonzóbbá teszi ezt az elhelyezkedést.

Ez a lakás igazi ritkaság a belvárosi piacon, elegáns, világos, nagy belmagasságú otthon, amely egyaránt tökéletes választás lehet saját részre vagy hosszú távú, stabil befektetésként.

Amennyiben felkeltette érdeklődését, keressen bizalommal, akár hétvégén is!

Hirdetés feltöltve: 2025. 10. 14. Utoljára módosítva: 2025. 11. 26.

4 szobás téglalakások ára Budapesten

Ebből az összehasonlításból megtudhatod, hogyan viszonyul a lakás ára a környékbeli téglalakások átlagos árához. Ez nem azt jelenti, hogy ennyivel olcsóbb vagy drágább, mint amennyit a lakás ér, hanem hogy ennyivel tér el a környékbeli átlagtól.

Ennek a m² ára
IX. kerület m² ár
Budapest m² ár
1448 e Ft
1608 e Ft 10%
1739 e Ft 17%
Ennek az ára
IX. kerület átlagár
Budapest átlagár
99.9 M Ft m Ft
172.9 m Ft 42%
182.4 m Ft 45%

Az ingatlan elhelyezkedése

Cím: Budapest, IX. kerület, 1. emelet

Eladó ingatlanok a környékről

Eladó téglalakás
Eladó téglalakás

IX. kerület, Ferencváros, Soroksári út

102.162 M Ft
1 + 1 szoba
56 m2
Eladó téglalakás
Eladó téglalakás

IX. kerület

119.9 M Ft
140 m2
Eladó téglalakás
Eladó téglalakás

XIII. kerület, Vizafogó

88.85 M Ft
2 szoba
44 m2
Eladó téglalakás
Eladó téglalakás

XIII. kerület, Vizafogó

259.64 M Ft
4 szoba
88 m2
Eladó téglalakás
Eladó téglalakás

IX. kerület, Ferencváros, Soroksári út

119.5 M Ft
3 + 1 szoba
127 m2
Eladó téglalakás
Eladó téglalakás

IX. kerület, Ferencváros, Haller utca

50.673 M Ft
1 szoba
60 m2
Eladó téglalakás
Eladó téglalakás

VI. kerület, Külső Terézváros, Szófia utca

114.9 M Ft
4 szoba
103 m2
Eladó téglalakás
Eladó téglalakás

VI. kerület

48.9 M Ft
1 szoba
22 m2
Eladó téglalakás
Eladó téglalakás

IX. kerület

120 M Ft
2 szoba
57 m2
Eladó téglalakás
Eladó téglalakás

IX. kerület, Ferencváros, Haller utca

51 M Ft
2 szoba
31 m2
Eladó téglalakás
Eladó téglalakás

IV. kerület, Újpest, Kassai utca

84.9 M Ft
2 + 1 szoba
71 m2
Eladó téglalakás
Eladó téglalakás

IX. kerület, Vágóhíd utca

153.5 M Ft
3 szoba
74 m2
Eladó téglalakás
Eladó téglalakás

I. kerület, Krisztinaváros, Feszty Árpád utca

78.99 M Ft
1 szoba
28 m2
Eladó téglalakás
Eladó téglalakás

IX. kerület, Ferencváros, Bárd utca 7

81.8 M Ft
1 + 1 szoba
35 m2
Eladó téglalakás
Eladó téglalakás

V. kerület, Belváros, Belgrád rakpart

78 M Ft
1 + 1 szoba
42 m2
Eladó téglalakás
Eladó téglalakás

IX. kerület, Ferencváros, Soroksári út

155.068 M Ft
2 + 1 szoba
84 m2
Eladó téglalakás
Eladó téglalakás

IX. kerület

81.9 M Ft
1 szoba
50 m2
Eladó téglalakás
Eladó téglalakás

VI. kerület, Külső Terézváros, Szív utca

119.5 M Ft
3 szoba
94 m2
Eladó téglalakás
Eladó téglalakás

III. kerület, Óbudaisziget, Folyamőr utca

76.9 M Ft
1 szoba
25 m2
Eladó téglalakás
Eladó téglalakás

XIII. kerület, Angyalföld, Zsinór utca

89.9 M Ft
2 szoba
54 m2
Eladó téglalakás
Eladó téglalakás

IX. kerület, Ferencváros, Soroksári út

205.023 M Ft
3 + 1 szoba
145 m2
Eladó téglalakás
Eladó téglalakás

IX. kerület, Vágóhíd utca

184.94 M Ft
4 szoba
102 m2
Eladó téglalakás
Eladó téglalakás

III. kerület, Rómaifürdő, Királyok útja

139 M Ft
3 szoba
65 m2
Eladó téglalakás
Eladó téglalakás

III. kerület, Óbuda, Szomolnok utca

89.9 M Ft
2 + 2 szoba
96 m2

Falusi CSOK ingatlanok

Eladó családi ház
Eladó családi ház

Rédics

49.9 M Ft
3 szoba
107 m2
Eladó családi ház
Eladó családi ház

Ádánd

69.9 M Ft
6 szoba
251 m2
Eladó családi ház
Eladó családi ház

Rábacsécsény

45 M Ft
3 szoba
101 m2
Eladó családi ház
Eladó családi ház

Pusztamonostor

22 M Ft
3 szoba
86 m2
Eladó családi ház
Eladó családi ház

Csurgó

10 M Ft
2 szoba
80 m2
Eladó családi ház
Eladó családi ház

Recsk

59 M Ft
2 szoba
70 m2
Eladó családi ház
Eladó családi ház

Kemeneshőgyész

8 M Ft
2 szoba
60 m2
Eladó családi ház
Eladó családi ház

Olaszfa

70.38 M Ft
3 szoba
139 m2