Kedves Felhasználónk! Rendszerfrissítés miatt az oldalunk 2026. február 9-én 12 órától várhatóan 20 óráig nem lesz elérhető. Köszönjük megértésed!
Aerogate Homes

Eladó téglalakás
Budapest, III. kerület, Filatorigát, Fehéregyházi út, 3. emelet

+ 17 kép 1/20
135 143 250 Ft135.143 M Ft 1 826 260 Ft/m2
3 szoba
74 m2
3. emelet
építés éve:2024

Részletes adatok

Telekméret: 74 m2
Fűtés: Egyéb
Emelet: 3. emelet
Parkolás: Garázs
Közmű: Víz, Gáz, Villany, Csatorna
Extrák: Lift
Energetikai besorolás: Nem adta meg a hirdető

Az OTP Bank lakáshitel ajánlataFizetett hirdetés

+36 30 235
Paróczy Csaba
BeMyHome Ingatlan

Érdekel az OTP Bank kedvezményes lakáshitel ajánlata? *

* A kérdésre „Igen” válasz bejelölése esetén, az „Üzenet küldése” gombra kattintva kijelentem, hogy az OTP Bank Nyrt. Adatkezelési tájékoztatójának tartalmát megismertem és tudomásul vettem.

Eladó téglalakás leírása

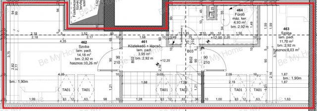
3. EMELET, NAPPALI + 2 HÁLÓSZOBA + 13 NM TERASZ!

Óbuda-Filatorigáton épülő 20 lakásos LIFTES társasház lakásainak értékesítése megkezdődött!

A terület ellátottsága kiváló, pár perc sétára található a GoBuda Mall,
az 1-es villamos végállomása, buszmegállók, fonódó villamosok végállomása.

Műszaki tartalma érintőlegesen:

Külső nyílászárók:
Egyedi gyártású műanyag nyílászárók, háromrétegű (k= 0,7) thermo üvegezéssel (3rtg üveg).
A beépített redőnyszekrényeket a műszaki kivitel tartalmazza, hőszigetelő alumínium lamellával.

Bejárati ajtók:
Egyedileg készített fém borítású biztonsági ajtó, kitekintő nyílással a MABISZ által elfogadott kivitelben .

Belső nyílászárók:
Furnérozott vagy fóliás sík tömör vagy üvegezett ajtók, matt króm kilinccsel (szerelve br. 90.000 Ft értékben). Csak hagyományos nyíló kivitelben, 75x210 cm vagy 90x210 cm standard méretekben.

Lehetőség van tolószerkezetek elkészítésére is, felár ellenében.

Hőközpont:
Kiemelten energiatakarékos hőszivatyú és 1db tartalék gáz kazán gépésztervek szerint méretezett teljesítménnyel, puffertárolós melegvízellátással. Lakásoknál digitális hőmennyiségmérővel.

Hőleadók:
Oxigéndiffúz mentes csövezéssel, padlófűtés rendszerrel, méretezés szerint.

Szaniter áruk:
Duravit vagy Villeroy szaniterek (50.000 Ft bruttó/db)
A WC és a bidet fali függesztett, beépített tartállyal rendelkező szerelvények, Valsir falitartállyal illetve szerelvényekkel. A fürdőkád egyenes akrilkád (70.000 Ft/db értékben)

Eladó lakásaink:
Fszt.1. 71 nm + 17 nm terasz + kertkapcsolat
Fszt.2. 76 nm + 20.5 nm terasz + kertkapcsolat FOGLALVA
1.em.1. 69 nm + 12 nm terasz
1.em.2. 48 nm ELADVA
1.em.3. 43 nm ELADVA
1.em.4. 69 nm + 15 nm terasz ELADVA
1.em.5. 44 nm + 7.6 nm terasz ELADVA
1.em.6. 78 nm
2.em.1. 69 nm + 12 nm terasz
2.em.2. 48 nm ELADVA
2.em.3. 43 nm ELADVA
2.em.4. 69 nm + 15 nm terasz FOGLALVA
2.em.5. 44 nm + 7.6 nm terasz ELADVA
2.em.6. 78 nm
3.em.1. 107 nm + 25 nm terasz FOGLALVA
3.em.2. 44 nm + 15 nm terasz FOGLALVA
3.em.3. 102 nm + 28 nm terasz
3.em.4. 41 nm + 14 nm terasz FOGLALVA
3.em.5. 73 nm + 13 nm terasz
3.em.6. 74 nm + 16 nm terasz

TEREMGARÁZS BEÁLLÓHELY 6 MFt.

A kivitelező megbízható, nagy múltú cég, referenciákkal rendelkezik!

ÁTADÁS 2026. I. NEGYEDÉV

Irodánk segíti ügyfeleit abban az esetben is amennyiben a vásárláshoz:
- ingatlant kell értékesíteni
- hitelre lesz szüksége
- állami támogatást szeretne igénybe venni
- asztalosra, kertészre egyéb szakemberre van szüksége

Várom hívását, akár hétvégén is.

Hirdetés feltöltve: 2023. 12. 17. Utoljára módosítva: 2026. 02. 05.

3 szobás téglalakások ára Budapesten

Ebből az összehasonlításból megtudhatod, hogyan viszonyul a lakás ára a környékbeli téglalakások átlagos árához. Ez nem azt jelenti, hogy ennyivel olcsóbb vagy drágább, mint amennyit a lakás ér, hanem hogy ennyivel tér el a környékbeli átlagtól.

Ennek a m² ára
Filatorigát m² ár
III. kerület m² ár
Budapest m² ár
1826 e Ft
1726 e Ft -6%
1714 e Ft -7%
1700 e Ft -7%
Ennek az ára
Filatorigát átlagár
III. kerület átlagár
Budapest átlagár
135.143 M Ft m Ft
111.7 m Ft -21%
136.7 m Ft 1%
131.5 m Ft -3%

Az ingatlan elhelyezkedése

Cím: Budapest, III. kerület, Filatorigát, Fehéregyházi út, 3. emelet

Eladó ingatlanok a környékről

Eladó téglalakás
Eladó téglalakás

I. kerület, Krisztinaváros, Feszty Árpád utca

78.99 M Ft
1 szoba
28 m2
Eladó téglalakás
Eladó téglalakás

III. kerület

146.846 M Ft
3 szoba
76 m2
Eladó iroda
Eladó iroda

I. kerület, Víziváros, Széna tér

189 M Ft
4 szoba
90 m2
Eladó téglalakás
Eladó téglalakás

IV. kerület, Újpest, Kassai utca

84.9 M Ft
2 + 1 szoba
71 m2
Eladó téglalakás
Eladó téglalakás

III. kerület

117.015 M Ft
3 szoba
78 m2
Eladó ikerház
Eladó ikerház

XVIII. kerület

124.9 M Ft
4 szoba
180 m2
Eladó téglalakás
Eladó téglalakás

VI. kerület, Külső Terézváros, Szív utca

124.9 M Ft
3 szoba
94 m2
Eladó téglalakás
Eladó téglalakás

I. kerület, Krisztinaváros, Széna tér

189 M Ft
4 szoba
90 m2
Eladó családi ház
Eladó családi ház

XXII. kerület, Budafok, Baross utca

222 M Ft
6 + 1 szoba
200 m2
Eladó téglalakás
Eladó téglalakás

VIII. kerület, Józsefváros

78.5 M Ft
2 szoba
55 m2
Eladó téglalakás
Eladó téglalakás

VI. kerület, Külső Terézváros, Szófia utca

112.9 M Ft
4 szoba
103 m2
Eladó téglalakás
Eladó téglalakás

III. kerület, Ürömhegy

157 M Ft
3 szoba
90 m2
Eladó téglalakás
Eladó téglalakás

III. kerület

130.457 M Ft
3 szoba
73 m2
Eladó téglalakás
Eladó téglalakás

III. kerület, Óbuda, Szomolnok utca

89.9 M Ft
2 + 2 szoba
96 m2
Eladó téglalakás
Eladó téglalakás

III. kerület

120.216 M Ft
3 szoba
69 m2
Eladó téglalakás
Eladó téglalakás

V. kerület, Belváros, Petőfi Sándor utca

134 M Ft
2 szoba
59 m2
Eladó téglalakás
Eladó téglalakás

VII. kerület

77 M Ft
2 szoba
50 m2
Eladó téglalakás
Eladó téglalakás

III. kerület

124.816 M Ft
3 szoba
78 m2
Eladó téglalakás
Eladó téglalakás

XIV. kerület, Kiszugló, Kövér Lajos utca

168 M Ft
3 + 1 szoba
84 m2
Eladó téglalakás
Eladó téglalakás

XIII. kerület, Angyalföld, Fiastyúk utca

39.9 M Ft
1 + 1 szoba
34 m2
Eladó téglalakás
Eladó téglalakás

III. kerület

122.064 M Ft
3 szoba
69 m2
Eladó téglalakás
Eladó téglalakás

XI. kerület, Gellérthegy, Gyula utca

130 M Ft
2 szoba
56 m2
Eladó téglalakás
Eladó téglalakás

III. kerület, Ürömhegy

260 M Ft
4 szoba
166 m2
Eladó téglalakás
Eladó téglalakás

III. kerület

166.9 M Ft
4 szoba
119 m2

Falusi CSOK ingatlanok

Eladó családi ház
Eladó családi ház

Újlengyel

110 M Ft
4 szoba
121 m2
Eladó családi ház
Eladó családi ház

Mencshely

99 M Ft
3 szoba
126 m2
Eladó családi ház
Eladó családi ház

Kál

31 M Ft
4 szoba
307 m2
Eladó családi ház
Eladó családi ház

Döröske

102.832 M Ft
3 szoba
114 m2
Eladó családi ház
Eladó családi ház

Vásárosdombó

14.99 M Ft
2 szoba
69 m2
Eladó családi ház
Eladó családi ház

Abádszalók

70 M Ft
3 szoba
100 m2
Eladó családi ház
Eladó családi ház

Parád

25 M Ft
2 szoba
80 m2
Eladó téglalakás
Eladó téglalakás

Balatonszemes

91.5 M Ft
2 szoba
60 m2