Astora Márvány8

Eladó téglalakás
Budapest, III. kerület

+ 11 kép 1/14
23 625 000 Ft23.625 M Ft 502 660 Ft/m2
1 szoba
47 m²
építés éve:2021

Részletes adatok

Állapot: Felújítandó
Fűtés: Egyéb
Parkolás: Garázs
Energetikai besorolás: Nem adta meg a hirdető
Zenga Premier

Friss hirdetések, amiket nem találsz meg más ingatlankereső portálon.

Fedezd fel elsőként a Zenga Premier címkés eladó ingatlanokat!

További részletek a zenga.hu-n

Az OTP Bank lakáshitel ajánlataFizetett hirdetés

+36 70 631
Goják Krisztián
referens

Érdekel az OTP Bank kedvezményes lakáshitel ajánlata? *

* A kérdésre „Igen” válasz bejelölése esetén, az „Üzenet küldése” gombra kattintva kijelentem, hogy az OTP Bank Nyrt. Adatkezelési tájékoztatójának tartalmát megismertem és tudomásul vettem.

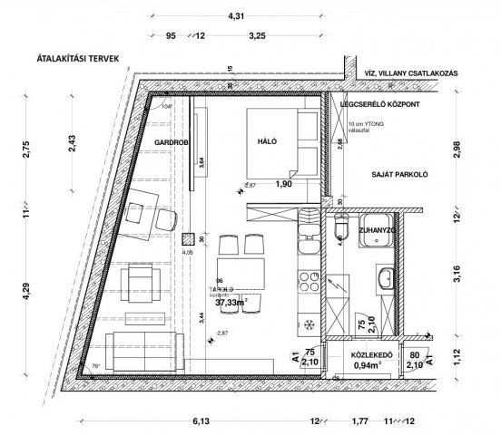
Eladó téglalakás leírása

ELADÓ INGATLAN - CSILLAGHEGY - III. KERÜLET - KÖZEL A DUNÁHOZ!

Budapest III. kerület, Csillaghegy részén ajánlom figyelmébe ezt a 2020-ban épült társasház alagsori részén található, 47 nm-es, jelenleg tárolóként funkcionáló ingatlant és a hozzá kapcsolódó (külön hrsz) 17 nm-es gépkocsitárolót. Hasznosítását tekintve, remek választás műteremnek, irodának, masszázsszalonnak, tárolónak. Az ingatlan irányára 23,625M HUF + ÁFA. Igény esetén van lehetőség a teljes műszaki kivitelezésre, amihez a tervek rendelkezésre állnak.

Az ingatlan jelenlegi állapota befejezetlen, felújítandó.
23,625 Millió HUF + ÁFA = BRUTTÓ 30M: 47 nm alagsori ingatlan + 17 nm mélygarázs.

ELŐNYÖK: jó lakóközösség, kiváló közlekedés, a teljes vételár kifizetése után azonnal birtokba vehető, rendezett tulajdoni lap, a Dunától elérhető távolságban helyezkedik el, teremgarázs parkolóhely a vételárban, cég az eladó, céges finanszírozás elérhető.

LOKÁCIÓ: Az ingatlan Budapest III. kerületben, Csillaghegy családi házas részén található, pár száz méterre a Dunától. A társasházban 4 lakás található, illetve mélygarázzsal is rendelkezik. Az ingatlant határoló utcák rendezettek, több játszótér és sportpálya található a közelben. A buszmegállók minimális távolságra vannak, ezután pedig a belváros, illetve a közelben található több bolt, orvosi rendelő, iskola, óvoda, tehát a lakás infrastrukturális adottságai kiválóak.

Amennyiben érdekli az ingatlan és szívesen megnézné, akkor hívjon bizalommal, akár hétvégén is

Hirdetés feltöltve: 2026. 03. 12.

1 szobás téglalakások ára Budapesten

Ebből az összehasonlításból megtudhatod, hogyan viszonyul a lakás ára a környékbeli téglalakások átlagos árához. Ez nem azt jelenti, hogy ennyivel olcsóbb vagy drágább, mint amennyit a lakás ér, hanem hogy ennyivel tér el a környékbeli átlagtól.

Ennek a m² ára
III. kerület m² ár
Budapest m² ár
503 e Ft
1940 e Ft 74%
1712 e Ft 71%
Ennek az ára
III. kerület átlagár
Budapest átlagár
23.625 M Ft m Ft
68 m Ft 65%
59.6 m Ft 60%

Az ingatlan elhelyezkedése

Cím: Budapest, III. kerület

Eladó ingatlanok a környékről

XI. kerület
Eladó téglalakás

Budapest, XI. kerület

86 M Ft
2 szoba
49 m²
III. kerület
Eladó téglalakás

Budapest, III. kerület

196.565 M Ft
4 szoba
107 m²
III. kerület
Eladó téglalakás

Budapest, III. kerület

122.064 M Ft
3 szoba
69 m²
III. kerület
Eladó téglalakás

Budapest, III. kerület

117.015 M Ft
3 szoba
78 m²
XI. kerület
Eladó téglalakás

Budapest, XI. kerület

102.275 M Ft
2 szoba
50 m²
XI. kerület
Eladó téglalakás

Budapest, XI. kerület

85.75 M Ft
2 szoba
47 m²
III. kerület
Eladó téglalakás

Budapest, III. kerület

134.147 M Ft
3 szoba
71 m²
III. kerület
Eladó téglalakás

Budapest, III. kerület

130.457 M Ft
3 szoba
73 m²
III. kerület
Eladó téglalakás

Budapest, III. kerület

329 M Ft
5 szoba
245 m²
III. kerület, Testvérhegy
Eladó téglalakás

Budapest, III. kerület

359 M Ft
6 szoba
200 m²
III. kerület
Eladó téglalakás

Budapest, III. kerület

124.816 M Ft
3 szoba
78 m²
III. kerület, Óbuda
Eladó téglalakás

Budapest, III. kerület

83.25 M Ft
2 szoba
45 m²
XI. kerület
Eladó téglalakás

Budapest, XI. kerület

118.3 M Ft
3 szoba
72 m²
III. kerület, Filatorigát, Fehéregyházi út
Eladó téglalakás

Budapest, III. kerület

135.143 M Ft
3 szoba
74 m²
III. kerület, Testvérhegy
Eladó téglalakás

Budapest, III. kerület

329 M Ft
6 szoba
220 m²
XI. kerület
Eladó téglalakás

Budapest, XI. kerület

88.5 M Ft
2 szoba
49 m²
XI. kerület
Eladó téglalakás

Budapest, XI. kerület

109.4 M Ft
2 szoba
55 m²
XI. kerület, Sasad, Fehérvári út
Eladó téglalakás

Budapest, XI. kerület

66 M Ft
1 szoba
30 m²
III. kerület, Testvérhegy, III. Erdőalja út külső része
Eladó téglalakás

Budapest, III. kerület

179 M Ft
4 szoba
157 m²
XI. kerület
Eladó téglalakás

Budapest, XI. kerület

82.5 M Ft
2 szoba
49 m²
III. kerület, Ürömhegy
Eladó téglalakás

Budapest, III. kerület

260 M Ft
4 szoba
166 m²
XI. kerület
Eladó téglalakás

Budapest, XI. kerület

84.85 M Ft
2 szoba
48 m²
III. kerület
Eladó téglalakás

Budapest, III. kerület

190.971 M Ft
4 szoba
102 m²
XII. kerület, Istenhegy, Tartsay Vilmos utca
Eladó téglalakás

Budapest, XII. kerület

94.9 M Ft
2 szoba
48 m²

Falusi CSOK ingatlanok

Kadarkút, Körmendi utca
Eladó családi ház

Kadarkút

21 M Ft
3 szoba
82 m²
Kőtelek
Eladó családi ház

Kőtelek

25 M Ft
2 szoba
90 m²
Tápióság
Eladó családi ház

Tápióság

29.9 M Ft
3 + 1 szoba
75 m²
Úri
Eladó családi ház

Úri

260 M Ft
7 szoba
300 m²
Újhartyán
Eladó családi ház

Újhartyán

79.9 M Ft
3 szoba
72 m²
Magyarpolány
Eladó családi ház

Magyarpolány

90 M Ft
2 szoba
70 m²
Felsőlajos
Eladó családi ház

Felsőlajos

100 M Ft
4 szoba
140 m²
Balatonfenyves
Eladó ikerház

Balatonfenyves

65 M Ft
3 szoba
40 m²