Aerogate Homes

Eladó téglalakás
Budapest, II. kerület, 2. emelet

+ 11 kép 1/14
154 900 000 Ft154.9 M Ft 1 844 048 Ft/m2
2 + 1 szoba
84 m²
2. emelet
építés éve:1940

Részletes adatok

Állapot: Átlagos
Fűtés: Házközponti
Emelet: 2. emelet
Energetikai besorolás: Nem adta meg a hirdető

Az OTP Bank lakáshitel ajánlataFizetett hirdetés

+36 70 458
Potoczki László
referens

Érdekel az OTP Bank kedvezményes lakáshitel ajánlata? *

* A kérdésre „Igen” válasz bejelölése esetén, az „Üzenet küldése” gombra kattintva kijelentem, hogy az OTP Bank Nyrt. Adatkezelési tájékoztatójának tartalmát megismertem és tudomásul vettem.

Eladó téglalakás leírása

Budai életérzés a Rózsadomb lábánál. Tágas, erkélyes családi otthon a II. kerületben
Eladó egy különleges hangulatú, Bauhaus stílusú társasház legfelső szintjén található lakás a II. kerületi Kút utcában, a budai oldal egyik legélhetőbb, legkeresettebb részén.
Ez az otthon tökéletes választás mindazok számára, akik szeretnék ötvözni a városi kényelmet a nyugodt, zöld budai környezettel, és ideális lehet családok számára, akik hosszú távra terveznek.
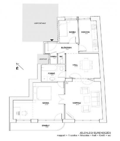
Főbb jellemzők: 84 nm alapterület, 2 + fél szoba + hall (könnyen alakítható akár 3?4 szobássá), erkélyes, világos terek, 2,9 m belmagasság, két tájolás (DNY,ÉK) egész napos természetes fény, legfelső szint, nincs felső szomszéd, saját 6 nm-es pincetároló, közös, zöld belső kert használata.
Budai életérzés, minden karnyújtásnyira. A lakás elhelyezkedése kivételes: pár perc sétával elérhető minden, ami a kényelmes mindennapokhoz szükséges. miközben az utca csendes, nyugodt, átmenő forgalomtól szinte mentes. A közelben: Margit híd, Széll Kálmán tér, Mammut bevásárlóközpont, Fény utcai piac, Millenáris park, Margit-sziget.
Ez a környék tökéletes egyensúlyt teremt a városi pezsgés és a természet közelsége között.
Családra tervezve: a lakás elrendezése és alakíthatósága miatt ideális választás családoknak. Külön nyíló, jól szeparálható szobák, könnyen bővíthető szobaszám (akár 3 vagy 4 szobára), világos, élhető közösségi terek, biztonságos, barátságos lakóközösség
A nagy ablakoknak köszönhetően akár több fürdőszoba kialakítása is megoldható, így a lakás hosszú távon is kényelmes életteret biztosít.
Épület: 1940-es években épült, Bauhaus jellegű társasház, hőszigetelt, karbantartott állapot, 12 lakásos, csendes közösség, nagy, zöld belső kert, felújított, világos lépcsőház.
Lehetőség és érték egyben: a lakás jó állapotú, igény szerint korszerűsíthető, ugyanakkor már most is otthonos és azonnal költözhető. Kiváló választás azoknak, akik saját igényeikre formálható, értékálló budai otthont keresnek.

Hirdetés feltöltve: 2026. 04. 01. Utoljára módosítva: 2026. 05. 10.

3 szobás téglalakások ára Budapesten

Ebből az összehasonlításból megtudhatod, hogyan viszonyul a lakás ára a környékbeli téglalakások átlagos árához. Ez nem azt jelenti, hogy ennyivel olcsóbb vagy drágább, mint amennyit a lakás ér, hanem hogy ennyivel tér el a környékbeli átlagtól.

Ennek a m² ára
II. kerület m² ár
Budapest m² ár
1844 e Ft
2074 e Ft 11%
1706 e Ft -8%
Ennek az ára
II. kerület átlagár
Budapest átlagár
154.9 M Ft m Ft
177.5 m Ft 13%
131.3 m Ft -18%

Az ingatlan elhelyezkedése

Cím: Budapest, II. kerület, 2. emelet

Eladó ingatlanok a környékről

II. kerület
Eladó téglalakás

Budapest, II. kerület

270.4 M Ft
3 szoba
73 m²
II. kerület
Eladó téglalakás

Budapest, II. kerület

329 M Ft
4 + 1 szoba
153 m²
II. kerület
Eladó téglalakás

Budapest, II. kerület

700 M Ft
4 szoba
236 m²
II. kerület
Eladó téglalakás

Budapest, II. kerület

574.05 M Ft
5 szoba
280 m²
II. kerület
Eladó téglalakás

Budapest, II. kerület

85 M Ft
1 szoba
56 m²
XIV. kerület
Eladó téglalakás

Budapest, XIV. kerület

79.6 M Ft
2 szoba
46 m²
IX. kerület, Ferencváros, Ráday utca
Eladó téglalakás

Budapest, IX. kerület

165 M Ft
3 szoba
78 m²
XIV. kerület
Eladó téglalakás

Budapest, XIV. kerület

81 M Ft
2 szoba
46 m²
II. kerület
Eladó téglalakás

Budapest, II. kerület

565.069 M Ft
5 szoba
287 m²
VI. kerület, Külső Terézváros, Városligeti fasor
Eladó téglalakás

Budapest, VI. kerület

185 M Ft
2 szoba
95 m²
III. kerület
Eladó családi ház

Budapest, III. kerület

375 M Ft
3 szoba
165 m²
II. kerület, Országút, Margit körút
Eladó téglalakás

Budapest, II. kerület

135 M Ft
2 + 1 szoba
81 m²
II. kerület, Szemlőhegy, Szeréna út
Eladó téglalakás

Budapest, II. kerület

187 M Ft
2 szoba
64 m²
II. kerület
Eladó téglalakás

Budapest, II. kerület

266.6 M Ft
3 szoba
75 m²
III. kerület, Csillaghegy
Eladó telek

Budapest, III. kerület

199.5 M Ft
977 m²
0 m²
II. kerület
Eladó téglalakás

Budapest, II. kerület

187 M Ft
2 szoba
64 m²
II. kerület
Eladó téglalakás

Budapest, II. kerület

144.9 M Ft
3 szoba
66 m²
VI. kerület, Külső Terézváros, Városligeti fasor
Eladó téglalakás

Budapest, VI. kerület

185 M Ft
2 szoba
95 m²
X. kerület
Eladó panellakás

Budapest, X. kerület

73.9 M Ft
3 szoba
68 m²
II. kerület
Eladó téglalakás

Budapest, II. kerület

395.153 M Ft
3 szoba
220 m²
II. kerület
Eladó téglalakás

Budapest, II. kerület

421.6 M Ft
5 szoba
138 m²
XIX. kerület
Eladó téglalakás

Budapest, XIX. kerület

33.9 M Ft
1 szoba
25 m²
II. kerület
Eladó téglalakás

Budapest, II. kerület

450 M Ft
4 szoba
138 m²
II. kerület, Rózsadomb, Szemlőhegy
Eladó téglalakás

Budapest, II. kerület

250 M Ft
4 szoba
142 m²

Falusi CSOK ingatlanok

Egerbakta
Eladó családi ház

Egerbakta

43.9 M Ft
5 + 1 szoba
160 m²
Kaposgyarmat
Eladó családi ház

Kaposgyarmat

695 M Ft
6 szoba
610 m²
Halimba
Eladó családi ház

Halimba

59.9 M Ft
6 szoba
182 m²
Balatonszemes
Eladó téglalakás

Balatonszemes

91.5 M Ft
2 szoba
0 m²
Vatta
Eladó családi ház

Vatta

28.3 M Ft
2 szoba
56 m²
Pécsvárad
Eladó családi ház

Pécsvárad

189 M Ft
7 szoba
618 m²
Csurgó
Eladó téglalakás

Csurgó

12.5 M Ft
2 szoba
54 m²
Győrság
Eladó családi ház

Győrság

89.9 M Ft
4 szoba
92 m²