Astora Olive Club House

Eladó téglalakás
Budapest, II. kerület, 2. emelet

+ 11 kép 1/14
154 900 000 Ft154.9 M Ft 1 844 048 Ft/m2
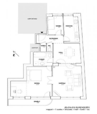
2 + 1 szoba
84 m²
2. emelet
építés éve:1940

Részletes adatok

Fűtés: Házközponti
Emelet: 2. emelet
Energetikai besorolás: Nem adta meg a hirdető

Az OTP Bank lakáshitel ajánlataFizetett hirdetés

+36 70 367
Bischofné Nagy Ildikó
referens

Érdekel az OTP Bank kedvezményes lakáshitel ajánlata? *

* A kérdésre „Igen” válasz bejelölése esetén, az „Üzenet küldése” gombra kattintva kijelentem, hogy az OTP Bank Nyrt. Adatkezelési tájékoztatójának tartalmát megismertem és tudomásul vettem.

Eladó téglalakás leírása

Budai életérzés a Rózsadomb lábánál. Tágas, erkélyes családi otthon a II. kerületben
Eladó egy különleges hangulatú, Bauhaus stílusú társasház legfelső szintjén található lakás a II. kerületi Kút utcában, a budai oldal egyik legélhetőbb, legkeresettebb részén.
Ez az otthon tökéletes választás mindazok számára, akik szeretnék ötvözni a városi kényelmet a nyugodt, zöld budai környezettel, és ideális lehet családok számára, akik hosszú távra terveznek.
Főbb jellemzők: 84 nm alapterület, 2 + fél szoba + hall (könnyen alakítható akár 3?4 szobássá), erkélyes, világos terek, 2,9 m belmagasság, két tájolás (DNY,ÉK) egész napos természetes fény, legfelső szint, nincs felső szomszéd, saját 6 nm-es pincetároló, közös, zöld belső kert használata.
Budai életérzés, minden karnyújtásnyira. A lakás elhelyezkedése kivételes: pár perc sétával elérhető minden, ami a kényelmes mindennapokhoz szükséges. miközben az utca csendes, nyugodt, átmenő forgalomtól szinte mentes. A közelben: Margit híd, Széll Kálmán tér, Mammut bevásárlóközpont, Fény utcai piac, Millenáris park, Margit-sziget.
Ez a környék tökéletes egyensúlyt teremt a városi pezsgés és a természet közelsége között.
Családra tervezve: a lakás elrendezése és alakíthatósága miatt ideális választás családoknak. Külön nyíló, jól szeparálható szobák, könnyen bővíthető szobaszám (akár 3 vagy 4 szobára), világos, élhető közösségi terek, biztonságos, barátságos lakóközösség
A nagy ablakoknak köszönhetően akár több fürdőszoba kialakítása is megoldható, így a lakás hosszú távon is kényelmes életteret biztosít.
Épület: 1940-es években épült, Bauhaus jellegű társasház, hőszigetelt, karbantartott állapot, 12 lakásos, csendes közösség, nagy, zöld belső kert, felújított, világos lépcsőház.
Lehetőség és érték egyben: a lakás jó állapotú, igény szerint korszerűsíthető, ugyanakkor már most is otthonos és azonnal költözhető. Kiváló választás azoknak, akik saját igényeikre formálható, értékálló budai otthont keresnek.

Az energetikai tanúsítvány készítése folyamatban van, amint rendelkezésre áll, úgy azzal a hirdetés frissítésre kerül.

Hirdetés feltöltve: 2026. 04. 01. Utoljára módosítva: 2026. 05. 10.

3 szobás téglalakások ára Budapesten

Ebből az összehasonlításból megtudhatod, hogyan viszonyul a lakás ára a környékbeli téglalakások átlagos árához. Ez nem azt jelenti, hogy ennyivel olcsóbb vagy drágább, mint amennyit a lakás ér, hanem hogy ennyivel tér el a környékbeli átlagtól.

Ennek a m² ára
II. kerület m² ár
Budapest m² ár
1844 e Ft
2074 e Ft 11%
1706 e Ft -8%
Ennek az ára
II. kerület átlagár
Budapest átlagár
154.9 M Ft m Ft
177.5 m Ft 13%
131.3 m Ft -18%

Az ingatlan elhelyezkedése

Cím: Budapest, II. kerület, 2. emelet

Eladó ingatlanok a környékről

XIV. kerület
Eladó panellakás

Budapest, XIV. kerület

68.9 M Ft
3 szoba
55 m²
VI. kerület, Külső Terézváros, Városligeti fasor
Eladó téglalakás

Budapest, VI. kerület

308 M Ft
3 szoba
190 m²
II. kerület
Eladó téglalakás

Budapest, II. kerület

325 M Ft
4 szoba
156 m²
V. kerület, Belváros, Petőfi Sándor utca
Eladó téglalakás

Budapest, V. kerület

98 M Ft
1 szoba
58 m²
XIX. kerület
Eladó téglalakás

Budapest, XIX. kerület

33.9 M Ft
1 szoba
25 m²
II. kerület, Víziváros, Margit körút
Eladó téglalakás

Budapest, II. kerület

275 M Ft
9 + 1 szoba
240 m²
XIII. kerület, Angyalföld, Tahi utca
Eladó téglalakás

Budapest, XIII. kerület

59.6 M Ft
1 szoba
38 m²
II. kerület
Eladó téglalakás

Budapest, II. kerület

450 M Ft
4 szoba
138 m²
III. kerület, Csillaghegy
Eladó telek

Budapest, III. kerület

199.5 M Ft
977 m²
0 m²
II. kerület
Eladó téglalakás

Budapest, II. kerület

329 M Ft
4 + 1 szoba
153 m²
II. kerület, Országút, Margit körút
Eladó téglalakás

Budapest, II. kerület

135 M Ft
2 + 1 szoba
81 m²
XVIII. kerület
Eladó családi ház

Budapest, XVIII. kerület

98 M Ft
6 szoba
150 m²
II. kerület
Eladó téglalakás

Budapest, II. kerület

421.6 M Ft
5 szoba
138 m²
II. kerület
Eladó téglalakás

Budapest, II. kerület

325 M Ft
4 + 1 szoba
180 m²
II. kerület
Eladó téglalakás

Budapest, II. kerület

395.153 M Ft
3 szoba
220 m²
II. kerület
Eladó téglalakás

Budapest, II. kerület

565.069 M Ft
5 szoba
287 m²
II. kerület
Eladó téglalakás

Budapest, II. kerület

750.791 M Ft
5 szoba
321 m²
XIII. kerület
Eladó téglalakás

Budapest, XIII. kerület

142 M Ft
4 szoba
126 m²
XIV. kerület
Eladó téglalakás

Budapest, XIV. kerület

81 M Ft
2 szoba
46 m²
X. kerület
Eladó panellakás

Budapest, X. kerület

73.9 M Ft
3 szoba
68 m²
II. kerület
Eladó téglalakás

Budapest, II. kerület

266.6 M Ft
3 szoba
75 m²
XIX. kerület
Eladó családi ház

Budapest, XIX. kerület

33.9 M Ft
1 szoba
25 m²
II. kerület
Eladó téglalakás

Budapest, II. kerület

144.9 M Ft
3 szoba
66 m²
II. kerület
Eladó téglalakás

Budapest, II. kerület

700 M Ft
4 szoba
236 m²

Falusi CSOK ingatlanok

Csurgó
Eladó családi ház

Csurgó

19.9 M Ft
4 szoba
136 m²
Bakonyszentlászló
Eladó családi ház

Bakonyszentlászló

48.5 M Ft
3 szoba
103 m²
Sződ
Eladó családi ház

Sződ

102.9 M Ft
4 szoba
92 m²
Sződ
Eladó családi ház

Sződ

116.9 M Ft
4 + 1 szoba
102 m²
Balatonszemes
Eladó téglalakás

Balatonszemes

91.5 M Ft
2 szoba
0 m²
Fertőd
Eladó családi ház

Fertőd

140.91 M Ft
4 + 2 szoba
190 m²
Sály, Kossuth Lajos 128
Eladó családi ház

Sály

27.45 M Ft
6 szoba
160 m²
Hegyeshalom, Margaréta utca 12
Eladó téglalakás

Hegyeshalom

50.09 M Ft
2 szoba
43 m²