NapForrás 20 - Buda

Eladó téglalakás
Budapest, II. kerület, földszint

+ 15 kép 1/18
129 900 000 Ft129.9 M Ft 2 129 508 Ft/m2
2 szoba
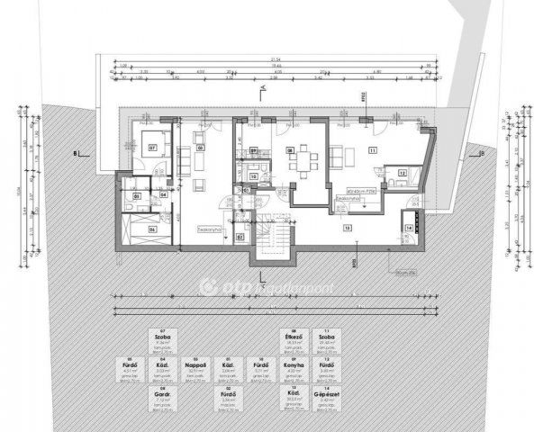
61 m²
földszint
építés éve:2023

Részletes adatok

Fűtés: Egyéb
Emelet: földszint
Energetikai besorolás: A++

Az OTP Bank lakáshitel ajánlataFizetett hirdetés

+36 70 369
Juhász Emese
referens

Érdekel az OTP Bank kedvezményes lakáshitel ajánlata? *

* A kérdésre „Igen” válasz bejelölése esetén, az „Üzenet küldése” gombra kattintva kijelentem, hogy az OTP Bank Nyrt. Adatkezelési tájékoztatójának tartalmát megismertem és tudomásul vettem.

Eladó téglalakás leírása

EGYEDI LEHETŐSÉG A II. KERÜLET SZÍVÉBEN - ÚJ ÉPÍTÉSŰ LAKÁS HATALMAS TERASSZAL ÉS AUTÓBEÁLLÓVAL!
A II. kerület egyik legkeresettebb részén, a Szépvölgyi út felett, csendes, zöldövezeti környezetben, mégis kiváló közlekedéssel kínálunk eladásra egy valóban ritkaságszámba menő új építésű lakást! A lakás a földszínten található 61,11nm-es 2 szobás (+ gardrób) 30nm-es terasszal.

Prémium kivitelezés és felszereltség:
H tarifás hőszivattyús mennyezet fűtés-hűtés.
Beépített, gépesített konyha.
Saját víz- és villanyóra.
Riasztórendszer,
modern, energiahatékony kialakítás.

Lokáció - ami eladja magát:
Kolosy tér pár perc sétával elérhető.
Kiváló közösségi közlekedés: fonódó villamos, 9-es busz

Rózsadomb Center, Rózsakert Bevásárlóközpont, sportközpontok, éttermek, iskolák, gyógyszertár, minden karnyújtásnyira

Kirándulási lehetőségek a közeli erdőkben és barlangokban

Miért különleges?
A környéken alig akad új építésű projekt, pláne ekkora terasszal vagy saját kerttel rendelkező lakás! A kis lakásszámú ház, az egyedi elrendezés és a kiváló lokáció ritka kombináció. Ideális saját otthonnak, irodának vagy BEFEKTETÉSNEK is - a bérbeadhatósága kiemelkedő!

Gépkocsibeálló benne van az árban!
További lakások is elérhetők!
Akár kertkapcsolatos, teraszos vagy nagyobb méretű egységek is - sőt, egybenyitható szomszédos lakásokkal is rugalmasan alakítható!

Ne maradjon le!
Megtekintés kizárólag előre egyeztetett időpontban, a nagy érdeklődésre való tekintettel!
Keressen bizalommal a részletekért és a még elérhető lakások listájáért!

Hirdetés feltöltve: 2026. 02. 05. Utoljára módosítva: 2026. 02. 05.

2 szobás téglalakások ára Budapesten

Ebből az összehasonlításból megtudhatod, hogyan viszonyul a lakás ára a környékbeli téglalakások átlagos árához. Ez nem azt jelenti, hogy ennyivel olcsóbb vagy drágább, mint amennyit a lakás ér, hanem hogy ennyivel tér el a környékbeli átlagtól.

Ennek a m² ára
II. kerület m² ár
Budapest m² ár
2130 e Ft
2031 e Ft -5%
1699 e Ft -25%
Ennek az ára
II. kerület átlagár
Budapest átlagár
129.9 M Ft m Ft
114.6 m Ft -13%
90.2 m Ft -44%

Az ingatlan elhelyezkedése

Cím: Budapest, II. kerület, földszint

Eladó ingatlanok a környékről

II. kerület
Eladó téglalakás

Budapest, II. kerület

590.079 M Ft
5 szoba
287 m²
II. kerület, Rózsadomb
Eladó téglalakás

Budapest, II. kerület

187 M Ft
2 szoba
64 m²
XI. kerület, Sasad
Eladó téglalakás

Budapest, XI. kerület

197 M Ft
3 szoba
82 m²
II. kerület, Víziváros, Margit körút
Eladó téglalakás

Budapest, II. kerület

285 M Ft
9 + 1 szoba
240 m²
II. kerület, Rézmál
Eladó téglalakás

Budapest, II. kerület

266.6 M Ft
3 szoba
75 m²
XIV. kerület
Eladó panellakás

Budapest, XIV. kerület

82.6 M Ft
1 + 2 szoba
68 m²
XVI. kerület
Eladó családi ház

Budapest, XVI. kerület

128.9 M Ft
3 szoba
157 m²
XIV. kerület
Eladó panellakás

Budapest, XIV. kerület

83.9 M Ft
1 + 2 szoba
70 m²
II. kerület
Eladó téglalakás

Budapest, II. kerület

784.022 M Ft
5 szoba
321 m²
II. kerület
Eladó téglalakás

Budapest, II. kerület

187 M Ft
2 szoba
64 m²
XIV. kerület
Eladó téglalakás

Budapest, XIV. kerület

85.7 M Ft
2 szoba
56 m²
II. kerület, Rózsadomb, Szemlőhegy
Eladó téglalakás

Budapest, II. kerület

250 M Ft
4 szoba
142 m²
XIII. kerület
Eladó nyaraló

Budapest, XIII. kerület

97 M Ft
1 + 2 szoba
96 m²
II. kerület, Országút, Margit körút
Eladó téglalakás

Budapest, II. kerület

105 M Ft
2 + 1 szoba
81 m²
XVII. kerület
Eladó panellakás

Budapest, XVII. kerület

83.9 M Ft
1 + 2 szoba
73 m²
IV. kerület
Eladó családi ház

Budapest, IV. kerület

105 M Ft
2 szoba
91 m²
V. kerület
Eladó téglalakás

Budapest, V. kerület

39.2 M Ft
1 szoba
25 m²
II. kerület
Eladó téglalakás

Budapest, II. kerület

599.458 M Ft
5 szoba
280 m²
II. kerület
Eladó téglalakás

Budapest, II. kerület

187 M Ft
2 szoba
64 m²
VII. kerület, Belső Erzsébetváros, Kertész utca
Eladó téglalakás

Budapest, VII. kerület

55.9 M Ft
1 szoba
33 m²
XIII. kerület, Vizafogó, Visegrádi utca 85
Eladó téglalakás

Budapest, XIII. kerület

58.5 M Ft
1 szoba
38 m²
II. kerület
Eladó téglalakás

Budapest, II. kerület

329 M Ft
4 + 1 szoba
153 m²
VI. kerület, Belső Terézváros, Paulay Ede 18
Eladó téglalakás

Budapest, VI. kerület

309 M Ft
3 szoba
104 m²
XIV. kerület
Eladó ikerház

Budapest, XIV. kerület

159.9 M Ft
4 szoba
113 m²

Falusi CSOK ingatlanok

Villány
Eladó családi ház

Villány

31 M Ft
1 szoba
35 m²
Balatonszemes
Eladó téglalakás

Balatonszemes

125.2 M Ft
2 szoba
50 m²
Sásd
Eladó családi ház

Sásd

35.9 M Ft
4 + 1 szoba
71 m²
Helesfa
Eladó családi ház

Helesfa

17.999 M Ft
2 szoba
74 m²
Mezőzombor
Eladó családi ház

Mezőzombor

14.6 M Ft
3 szoba
81 m²
Kétpó
Eladó családi ház

Kétpó

14.9 M Ft
1 + 2 szoba
86 m²
Ábrahámhegy
Eladó családi ház

Ábrahámhegy

139 M Ft
4 szoba
106 m²
Bag
Eladó családi ház

Bag

16.9 M Ft
6 szoba
160 m²