Avico

Eladó téglalakás
Budapest, I. kerület, 2. emelet

+ 17 kép 1/20
209 900 000 Ft209.9 M Ft 2 725 974 Ft/m2
3 szoba
77 m2
2. emelet
építés éve:1918

Részletes adatok

Fűtés: Gázkazán
Közmű: Gáz, Villany, Csatorna
Energetikai besorolás: Nem adta meg a hirdető

Az OTP Bank lakáshitel ajánlataFizetett hirdetés

+36 70 465
Pongrácz Rita
referens

Érdekel az OTP Bank kedvezményes lakáshitel ajánlata? *

* A kérdésre „Igen” válasz bejelölése esetén, az „Üzenet küldése” gombra kattintva kijelentem, hogy az OTP Bank Nyrt. Adatkezelési tájékoztatójának tartalmát megismertem és tudomásul vettem.

Eladó téglalakás leírása

Kuriózum lakás a Budai Vár tövében

Saját garázzsal, privát bejárattal, panorámával és elképesztő hangulattal!

Ez nem csak egy lakás – ez egy életstílus.
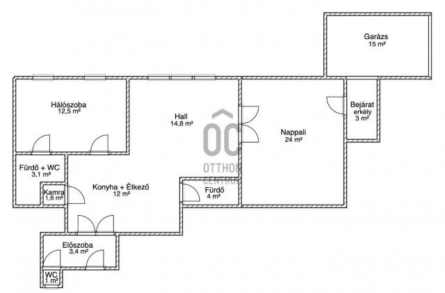
A Budai Vár alatt, az August-udvar exkluzív épületében kínáljuk ezt a 95 m²-es gyöngyszemet, ami egyszerre városi és meghitt, modern és történelmi, stílusos és praktikus.

Összesen 95 m²
– Lakás: 77 m²
– Saját garázs: 15 m² (az ár része, önmagában 20 M Ft érték)
– Erkély: 3 m²
– Saját pince-tároló: 6 m²
Mi teszi igazán különlegessé:

Privát bejárat közvetlenül a garázsból – szomszédok nélkül, teljes intimitásban.
3 méteres belmagasság, tágas terek, három szoba, dupla fürdőszoba (az egyik közvetlenül a hálóból).
Erkély a Várra és a Várkertre néző panorámával.
Világos, mégis kellemesen hűvös nyáron, meleg télen.
Teljes körű felújítás 2020-ba– új vezetékek, tölgyfa parketta, hő- és hangszigetelt nyílászárók, modern fűtésrendszer.

Belépések két irányból:

1. A társasház főbejáratán keresztül, lifttel, az Attila útról.
2. Közvetlenül a saját garázsból, ahonnan egyenesen a nappaliba léphetsz
Felszereltség:
Az ingatlan ízlésesen, teljesen berendezve eladó.
A bútorok és berendezések kérésre az ár részét képezhetik.
Azonnal költözhető vagy kiadható – eddig 1400 €/hó + rezsi áron bérbe adták.
Környezet:

Csendes, zöld, mégis a város szívében.
2 perc séta a Ybl Miklós tér és a Várkert Bazár, miközben a környék a Budai Vár felújítási programjával folyamatosan értékelődik.
A házban kisbolt, étterem és közösségi kávézó is található – minden kéznél.
Parkolás:

Saját, 15 m²-es garázs a vételárban.
A garázs előtti részen további autó is parkolhat
Kinek ajánljuk:

Diplomatáknak, felsővezetőknek, pároknak, vagy bárkinek, aki a privát luxust, a történelmi környezetet és a letisztult eleganciát** keresi – akár saját otthonnak, akár befektetésnek.

Ez az a lakás, ahol a Vár alatti történelem találkozik a mai élet kényelmével.
Budai hangulat, pesti ritkaság – egyetlen kulccsal.

Hirdetés feltöltve: 2025. 11. 04. Utoljára módosítva: 2025. 11. 04.

3 szobás téglalakások ára Budapesten

Ebből az összehasonlításból megtudhatod, hogyan viszonyul a lakás ára a környékbeli téglalakások átlagos árához. Ez nem azt jelenti, hogy ennyivel olcsóbb vagy drágább, mint amennyit a lakás ér, hanem hogy ennyivel tér el a környékbeli átlagtól.

Ennek a m² ára
I. kerület m² ár
Budapest m² ár
2726 e Ft
2177 e Ft -25%
1685 e Ft -62%
Ennek az ára
I. kerület átlagár
Budapest átlagár
209.9 M Ft m Ft
181.5 m Ft -16%
131.9 m Ft -59%

Az ingatlan elhelyezkedése

Cím: Budapest, I. kerület, 2. emelet

Eladó ingatlanok a környékről

Eladó téglalakás
Eladó téglalakás

I. kerület, Gellérthegy utca

249.9 M Ft
2 szoba
66 m2
Eladó téglalakás
Eladó téglalakás

I. kerület, Tabán, Orom utca

426.8 M Ft
2 szoba
117 m2
Eladó téglalakás
Eladó téglalakás

XIII. kerület, Vizafogó

88.49 M Ft
2 + 1 szoba
61 m2
Eladó téglalakás
Eladó téglalakás

I. kerület

114.9 M Ft
2 szoba
67 m2
Eladó téglalakás
Eladó téglalakás

I. kerület, Víziváros, Bem rakpart

240.078 M Ft
3 szoba
96 m2
Eladó téglalakás
Eladó téglalakás

II. kerület

74.9 M Ft
1 szoba
32 m2
Eladó téglalakás
Eladó téglalakás

I. kerület, Víziváros, 1. kerület, Halász utca

159.9 M Ft
2 szoba
85 m2
Eladó téglalakás
Eladó téglalakás

I. kerület

305 M Ft
4 szoba
133 m2
Eladó téglalakás
Eladó téglalakás

I. kerület, Víziváros, Hunyadi János út

114.9 M Ft
2 szoba
67 m2
Eladó téglalakás
Eladó téglalakás

XI. kerület, Sasad, Dayka Gábor utca

169.9 M Ft
3 szoba
118 m2
Eladó téglalakás
Eladó téglalakás

I. kerület, Krisztinaváros, Alagút utca

99 M Ft
2 + 2 szoba
89 m2
Eladó panellakás
Eladó panellakás

III. kerület

67.9 M Ft
2 szoba
48 m2
Eladó téglalakás
Eladó téglalakás

I. kerület

114.9 M Ft
2 szoba
67 m2
Eladó téglalakás
Eladó téglalakás

I. kerület

99 M Ft
2 + 2 szoba
89 m2
Eladó téglalakás
Eladó téglalakás

IV. kerület, Újpest, Fülek

45.9 M Ft
1 szoba
35 m2
Eladó téglalakás
Eladó téglalakás

VIII. kerület

130 M Ft
2 + 2 szoba
89 m2
Eladó téglalakás
Eladó téglalakás

VIII. kerület

62 M Ft
1 szoba
48 m2
Eladó téglalakás
Eladó téglalakás

I. kerület

199.5 M Ft
3 szoba
94 m2
Eladó családi ház
Eladó családi ház

II. kerület, Adyliget, Bocskai István útja

470 M Ft
5 szoba
200 m2
Eladó téglalakás
Eladó téglalakás

III. kerület

107.9 M Ft
2 szoba
55 m2
Eladó téglalakás
Eladó téglalakás

VII. kerület

64.9 M Ft
2 szoba
48 m2
Eladó téglalakás
Eladó téglalakás

VI. kerület

76.9 M Ft
2 szoba
57 m2
Eladó téglalakás
Eladó téglalakás

I. kerület

114.9 M Ft
2 szoba
67 m2
Eladó téglalakás
Eladó téglalakás

III. kerület

107.9 M Ft
2 szoba
55 m2

Falusi CSOK ingatlanok

Eladó családi ház
Eladó családi ház

Gönyű

111.951 M Ft
4 szoba
105 m2
Eladó családi ház
Eladó családi ház

Ádánd

55.5 M Ft
6 szoba
180 m2
Eladó családi ház
Eladó családi ház

Tóalmás

39 M Ft
6 szoba
220 m2
Eladó családi ház
Eladó családi ház

Bugac

15 M Ft
3 szoba
52 m2
Eladó családi ház
Eladó családi ház

Magyarszék

48.5 M Ft
3 + 1 szoba
86 m2
Eladó családi ház
Eladó családi ház

Kelebia

13 M Ft
3 szoba
76 m2
Eladó családi ház
Eladó családi ház

Nagybaracska

42 M Ft
3 szoba
144 m2
Eladó családi ház
Eladó családi ház

Bugac

55 M Ft
3 szoba
90 m2