Eladó téglalakás
Ács, földszint

62 984 200 Ft62.984 M Ft 828 739 Ft/m2
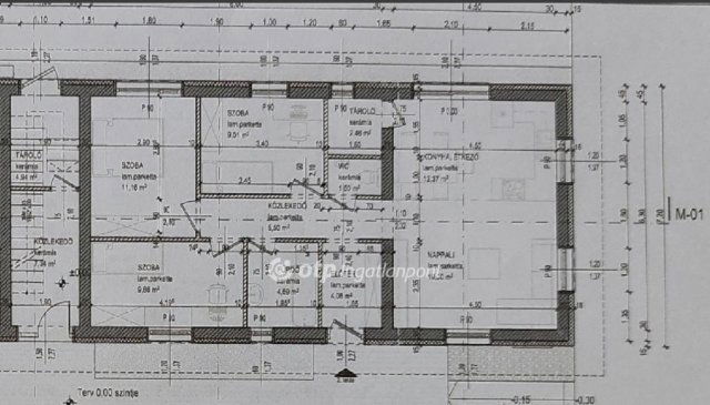
4 szoba
76 m2
földszint
építés éve:2025

Részletes adatok

Fűtés: Egyéb
Energetikai besorolás: Nem adta meg a hirdető

Az OTP Bank lakáshitel ajánlataFizetett hirdetés

+36 20 911
Döbrentei Zsuzsanna Mária
referens

Érdekel az OTP Bank kedvezményes lakáshitel ajánlata? *

* A kérdésre „Igen” válasz bejelölése esetén, az „Üzenet küldése” gombra kattintva kijelentem, hogy az OTP Bank Nyrt. Adatkezelési tájékoztatójának tartalmát megismertem és tudomásul vettem.

Eladó téglalakás leírása

Komárom-Esztergom vármegyében, Ácson modern, 4 lakásos társasházakban új építésű lakások vásárolhatók kiváló műszaki tartalommal és minőségi beépített anyagokkal.Ez a lakás szerkezetkész állapotban azonnal vásárolható. Az épületek monolit vasbeton vázszerkezettel készülnek, falazatuk 30 cm vastag Leier Plan tégla, míg a válaszfalak 10 cm-es hanggátló téglából épülnek. A homlokzati hőszigetelés 15 cm vastagságú. Beépített nyílászárók kiváló minőséget képviselnek, 5 légkamrás, 3 rétegű üveggel, motoros redőnnyel, szúnyoghálóval ellátott ablakok, kívül dió, belül fehér színben.
A földszinti lakások kizárólagos használatú kerttel rendelkeznek, míg az emeleti lakásokhoz tágas erkély tartozik. A fűtésről és melegvízellátásról egyenkénti hőszivattyú gondoskodik, padlófűtéssel.
A projekt nyugodt, zöld környezetben valósul meg, napfényes és tágas lakásokkal, praktikus alaprajzokkal és modern megoldásokkal. Több éves tapasztalattal rendelkező kivitelező garantálja a minőséget, nyugodt,élhető, környezetben.
Amennyiben további kérdése van, forduljon hozzánk bizalommal elérhetőségeinken.

Referencia szám: M311377-ZE

Hirdetés feltöltve: 2025. 10. 24. Utoljára módosítva: 2025. 10. 24.

Az ingatlan elhelyezkedése

Cím: Ács, földszint

Eladó ingatlanok a környékről

Eladó téglalakás
Eladó téglalakás

Komárom, Mártírok útja

35.361 M Ft
2 szoba
45 m2
Eladó téglalakás
Eladó téglalakás

Esztergom

45.9 M Ft
2 szoba
46 m2
Eladó téglalakás
Eladó téglalakás

Ács

62.984 M Ft
4 szoba
76 m2
Eladó téglalakás
Eladó téglalakás

Ács

62.984 M Ft
4 szoba
76 m2
Eladó téglalakás
Eladó téglalakás

Tatabánya, Kertváros, Kamilla utca

75 M Ft
4 szoba
114 m2
Eladó téglalakás
Eladó téglalakás

Tata

85.5 M Ft
3 szoba
66 m2
Eladó téglalakás
Eladó téglalakás

Komárom, Városi

38.9 M Ft
1 szoba
43 m2
Eladó ipari ingatlan
Eladó ipari ingatlan

Tatabánya

65.5 M Ft
2740 m²
2740 m2
Eladó téglalakás
Eladó téglalakás

Ács

59.949 M Ft
3 szoba
70 m2
Eladó téglalakás
Eladó téglalakás

Nyergesújfalu, Kossuth Lajos utca

82.9 M Ft
3 szoba
80 m2
Eladó családi ház
Eladó családi ház

Esztergom

74.9 M Ft
4 szoba
126 m2
Eladó téglalakás
Eladó téglalakás

Komárom

37.1 M Ft
2 szoba
53 m2
Eladó családi ház
Eladó családi ház

Csolnok, Park utca

19.9 M Ft
2 szoba
68 m2
Eladó telek
Eladó telek

Gyermely

25.4 M Ft
748 m²
Eladó téglalakás
Eladó téglalakás

Ács

71.167 M Ft
4 szoba
84 m2
Eladó téglalakás
Eladó téglalakás

Komárom

83 M Ft
3 szoba
104 m2
Eladó téglalakás
Eladó téglalakás

Ács

78.253 M Ft
4 szoba
95 m2
Eladó téglalakás
Eladó téglalakás

Oroszlány

28.499 M Ft
3 szoba
51 m2
Eladó családi ház
Eladó családi ház

Tatabánya

199 M Ft
6 + 3 szoba
280 m2
Eladó téglalakás
Eladó téglalakás

Komárom, Mártírok útja

36.225 M Ft
47 m2
Eladó téglalakás
Eladó téglalakás

Tatabánya

86 M Ft
3 szoba
93 m2
Eladó nyaraló
Eladó nyaraló

Neszmély

9.9 M Ft
1 szoba
58 m2
Eladó téglalakás
Eladó téglalakás

Esztergom

67.7 M Ft
3 szoba
119 m2
Eladó családi ház
Eladó családi ház

Dunaalmás

22.5 M Ft
0 + 2 szoba
26 m2

Falusi CSOK ingatlanok

Eladó családi ház
Eladó családi ház

Újszilvás

9.5 M Ft
3 szoba
57 m2
Eladó családi ház
Eladó családi ház

Karád

39.95 M Ft
3 szoba
100 m2
Eladó családi ház
Eladó családi ház

Csemő

25.9 M Ft
2 szoba
69 m2
Eladó családi ház
Eladó családi ház

Bárdudvarnok

28.7 M Ft
6 szoba
286 m2
Eladó családi ház
Eladó családi ház

Kisnána

27.9 M Ft
4 szoba
180 m2
Eladó családi ház
Eladó családi ház

Recsk

21 M Ft
4 szoba
220 m2
Eladó családi ház
Eladó családi ház

Böhönye, Dózsa körút

20.9 M Ft
5 + 1 szoba
127 m2
Eladó családi ház
Eladó családi ház

Zsámbok

45 M Ft
2 szoba
60 m2