Pesti Házak

Eladó téglalakás
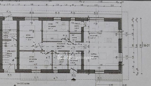
Ács, földszint

62 984 200 Ft62.984 M Ft 828 739 Ft/m2
4 szoba
76 m2
földszint
építés éve:2025

Részletes adatok

Fűtés: Egyéb
Energetikai besorolás: Nem adta meg a hirdető

Az OTP Bank lakáshitel ajánlataFizetett hirdetés

+36 70 321
Berkiné Pölöskei Erzsébet
referens

Érdekel az OTP Bank kedvezményes lakáshitel ajánlata? *

* A kérdésre „Igen” válasz bejelölése esetén, az „Üzenet küldése” gombra kattintva kijelentem, hogy az OTP Bank Nyrt. Adatkezelési tájékoztatójának tartalmát megismertem és tudomásul vettem.

Eladó téglalakás leírása

Komárom-Esztergom vármegyében, Ácson modern, 4 lakásos társasházakban új építésű lakások vásárolhatók kiváló műszaki tartalommal és minőségi beépített anyagokkal.Ez a lakás szerkezetkész állapotban azonnal vásárolható. Az épületek monolit vasbeton vázszerkezettel készülnek, falazatuk 30 cm vastag Leier Plan tégla, míg a válaszfalak 10 cm-es hanggátló téglából épülnek. A homlokzati hőszigetelés 15 cm vastagságú. Beépített nyílászárók kiváló minőséget képviselnek, 5 légkamrás, 3 rétegű üveggel, motoros redőnnyel, szúnyoghálóval ellátott ablakok, kívül dió, belül fehér színben.
A földszinti lakások kizárólagos használatú kerttel rendelkeznek, míg az emeleti lakásokhoz tágas erkély tartozik. A fűtésről és melegvízellátásról egyenkénti hőszivattyú gondoskodik, padlófűtéssel.
A projekt nyugodt, zöld környezetben valósul meg, napfényes és tágas lakásokkal, praktikus alaprajzokkal és modern megoldásokkal. Több éves tapasztalattal rendelkező kivitelező garantálja a minőséget, nyugodt,élhető, környezetben.
Amennyiben további kérdése van, forduljon hozzánk bizalommal elérhetőségeinken.

Referencia szám: M311377-ZE

Hirdetés feltöltve: 2025. 10. 18. Utoljára módosítva: 2025. 12. 16.

Az ingatlan elhelyezkedése

Cím: Ács, földszint

Eladó ingatlanok a környékről

Eladó ipari ingatlan
Eladó ipari ingatlan

Esztergom

780 M Ft
1400 m2
Eladó téglalakás
Eladó téglalakás

Komárom, Mártírok útja

34.02 M Ft
2 szoba
48 m2
Eladó téglalakás
Eladó téglalakás

Komárom, Városi

38.9 M Ft
1 szoba
43 m2
Eladó téglalakás
Eladó téglalakás

Komárom, Mártírok útja

33.946 M Ft
2 szoba
43 m2
Eladó téglalakás
Eladó téglalakás

Tata, Deák Ferenc utca Garden Homes

136.962 M Ft
3 szoba
67 m2
Eladó téglalakás
Eladó téglalakás

Komárom

35 M Ft
1 szoba
50 m2
Eladó téglalakás
Eladó téglalakás

Komárom, Mártírok útja

43.477 M Ft
2 szoba
50 m2
Eladó téglalakás
Eladó téglalakás

Ács

59.949 M Ft
3 szoba
70 m2
Eladó téglalakás
Eladó téglalakás

Komárom, Mártírok útja

46.8 M Ft
2 szoba
65 m2
Eladó családi ház
Eladó családi ház

Esztergom

85 M Ft
4 szoba
90 m2
Eladó családi ház
Eladó családi ház

Nyergesújfalu

86.9 M Ft
4 szoba
120 m2
Eladó családi ház
Eladó családi ház

Tata

129 M Ft
5 szoba
182 m2
Eladó téglalakás
Eladó téglalakás

Oroszlány

29.5 M Ft
2 + 1 szoba
58 m2
Eladó családi ház
Eladó családi ház

Tata

199.99 M Ft
4 szoba
360 m2
Eladó ipari ingatlan
Eladó ipari ingatlan

Dorog

85 M Ft
573 m2
Eladó téglalakás
Eladó téglalakás

Ács

60.77 M Ft
2 szoba
74 m2
Eladó telek
Eladó telek

Környe

4.5 M Ft
1297 m²
Eladó telek
Eladó telek

Nyergesújfalu

7.8 M Ft
3748 m²
Eladó téglalakás
Eladó téglalakás

Komárom

24.75 M Ft
1 szoba
33 m2
Eladó téglalakás
Eladó téglalakás

Tatabánya

48.6 M Ft
3 szoba
56 m2
Eladó családi ház
Eladó családi ház

Tata

36 M Ft
2 szoba
92 m2
Eladó családi ház
Eladó családi ház

Pilismarót

238.1 M Ft
12 szoba
310 m2
Eladó téglalakás
Eladó téglalakás

Nyergesújfalu, Tó utca

39.5 M Ft
2 szoba
55 m2
Eladó téglalakás
Eladó téglalakás

Ács

59.949 M Ft
3 szoba
70 m2

Falusi CSOK ingatlanok

Eladó családi ház
Eladó családi ház

Orci

119.9 M Ft
6 szoba
200 m2
Eladó családi ház
Eladó családi ház

Somogygeszti

38.6 M Ft
3 + 1 szoba
98 m2
Eladó ikerház
Eladó ikerház

Balatonakali

129 M Ft
4 szoba
145 m2
Eladó családi ház
Eladó családi ház

Tápiógyörgye

32 M Ft
3 szoba
86 m2
Eladó családi ház
Eladó családi ház

Ipolyvece

18.9 M Ft
3 + 1 szoba
91 m2
Eladó családi ház
Eladó családi ház

Tápiógyörgye

30 M Ft
3 szoba
65 m2
Eladó családi ház
Eladó családi ház

Kenderes

149.9 M Ft
6 + 2 szoba
420 m2
Eladó családi ház
Eladó családi ház

Törtel

32 M Ft
2 szoba
67 m2