Seven Pearl

Eladó téglalakás
Ács, földszint

59 949 400 Ft59.949 M Ft 856 420 Ft/m2
3 szoba
70 m2
földszint
építés éve:2025

Részletes adatok

Fűtés: Egyéb
Energetikai besorolás: Nem adta meg a hirdető

Az OTP Bank lakáshitel ajánlataFizetett hirdetés

+36 70 321
Berkiné Pölöskei Erzsébet
referens

Érdekel az OTP Bank kedvezményes lakáshitel ajánlata? *

* A kérdésre „Igen” válasz bejelölése esetén, az „Üzenet küldése” gombra kattintva kijelentem, hogy az OTP Bank Nyrt. Adatkezelési tájékoztatójának tartalmát megismertem és tudomásul vettem.

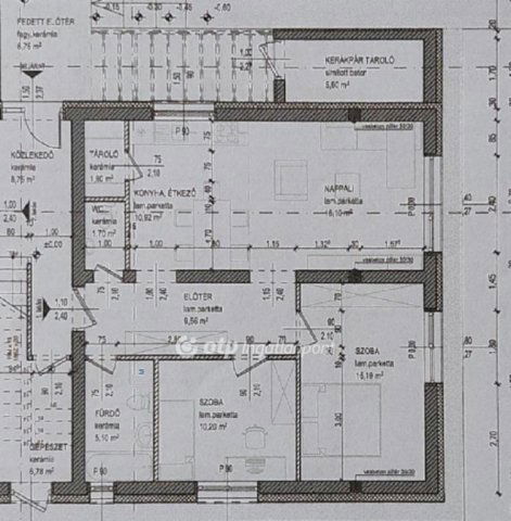
Eladó téglalakás leírása

Komárom-Esztergom vármegyében, Ácson modern, 4 lakásos társasházakban új építésű lakások vásárolhatók kiváló műszaki tartalommal és minőségi beépített anyagokkal. 2026. II. negyedévi átadással emeltszintű fűtés- szerkezetkész állapotban leköthetők, igény szerint kulcsrakész átadást is vállal a kivitelező. Az épületek monolit vasbeton vázszerkezettel készülnek, falazatuk 30 cm vastag Leier Plan tégla, míg a válaszfalak 10 cm-es hanggátló téglából épülnek. A homlokzati hőszigetelés 15 cm vastagságú. Beépített nyílászárók kiváló minőséget képviselnek, 5 légkamrás, 3 rétegű üveggel, motoros redőnnyel, szúnyoghálóval ellátott ablakok, kívül dió, belül fehér színben.
A földszinti lakások kizárólagos használatú kerttel rendelkeznek, míg az emeleti lakásokhoz tágas erkély tartozik. A fűtésről és melegvízellátásról lakásonként saját hőszivattyú gondoskodik, padlófűtéssel fürdőben törölközőszárítóval. A meghirdetett ár szerkezetkész állapotra vonatkozik, MAGÁBAN FOGLALJA A TELEKHÁNYADOT, VALAMINT AJÁNDÉK KOCSIBEÁLLÓT. Ez egy földszinti lakás, 70,67nm +163nm saját használatú kertkapcsolat.
A projekt nyugodt, zöld környezetben valósul meg, napfényes és tágas lakásokkal, praktikus alaprajzokkal és modern megoldásokkal. Több éves tapasztalattal rendelkező kivitelező garantálja a minőséget, nyugodt,élhető, környezetben.
Amennyiben további kérdése van, forduljon hozzánk bizalommal elérhetőségeinken.

Referencia szám: M311378-ZE

Hirdetés feltöltve: 2025. 10. 19. Utoljára módosítva: 2025. 11. 28.

3 szobás téglalakások ára Ácson

Ebből az összehasonlításból megtudhatod, hogyan viszonyul a lakás ára a környékbeli téglalakások átlagos árához. Ez nem azt jelenti, hogy ennyivel olcsóbb vagy drágább, mint amennyit a lakás ér, hanem hogy ennyivel tér el a környékbeli átlagtól.

Ennek a m² ára
Ács m² ár
856 e Ft
526 e Ft -63%
Ennek az ára
Ács átlagár
59.949 M Ft m Ft
31.5 m Ft -90%

Az ingatlan elhelyezkedése

Cím: Ács, földszint

Eladó ingatlanok a környékről

Eladó téglalakás
Eladó téglalakás

Komárom, Mártírok útja

33.946 M Ft
2 szoba
43 m2
Eladó téglalakás
Eladó téglalakás

Nyergesújfalu, Kossuth Lajos utca

82.9 M Ft
3 szoba
80 m2
Eladó téglalakás
Eladó téglalakás

Ács

71.167 M Ft
4 szoba
84 m2
Eladó téglalakás
Eladó téglalakás

Komárom

22.4 M Ft
1 szoba
32 m2
Eladó téglalakás
Eladó téglalakás

Tokod, Kodály Zoltán utca

30.9 M Ft
2 szoba
55 m2
Eladó téglalakás
Eladó téglalakás

Komárom, Mártírok útja

43.477 M Ft
2 szoba
50 m2
Eladó családi ház
Eladó családi ház

Kesztölc

79.5 M Ft
6 szoba
260 m2
Eladó téglalakás
Eladó téglalakás

Dorog

89 M Ft
2 szoba
150 m2
Eladó téglalakás
Eladó téglalakás

Ács

62.984 M Ft
4 szoba
76 m2
Eladó téglalakás
Eladó téglalakás

Esztergom, Bajcsy-Zsilinszky Endre út

178 M Ft
2 szoba
178 m2
Eladó családi ház
Eladó családi ház

Esztergom

89.9 M Ft
5 szoba
100 m2
Eladó mezogazdasagi ingatlan
Eladó mezogazdasagi ingatlan

Tatabánya

22.5 M Ft
830 m²
9 m2
Eladó családi ház
Eladó családi ház

Esztergom

136 M Ft
6 szoba
180 m2
Eladó családi ház
Eladó családi ház

Tarján

71 M Ft
3 + 1 szoba
113 m2
Eladó téglalakás
Eladó téglalakás

Ács

60.77 M Ft
2 szoba
74 m2
Eladó családi ház
Eladó családi ház

Süttő, Ligettér utca

52.99 M Ft
3 szoba
94 m2
Eladó telek
Eladó telek

Esztergom

7.5 M Ft
2579 m²
Eladó téglalakás
Eladó téglalakás

Esztergom, Vaskapui út

99.9 M Ft
4 szoba
140 m2
Eladó téglalakás
Eladó téglalakás

Tatabánya, Kertváros, Kamilla utca

75 M Ft
4 szoba
114 m2
Eladó téglalakás
Eladó téglalakás

Nyergesújfalu

47.158 M Ft
2 szoba
49 m2
Eladó téglalakás
Eladó téglalakás

Oroszlány

28.499 M Ft
3 szoba
51 m2
Eladó téglalakás
Eladó téglalakás

Komárom, Mártírok útja

34.02 M Ft
2 szoba
48 m2
Eladó téglalakás
Eladó téglalakás

Komárom

24.75 M Ft
1 szoba
33 m2
Eladó téglalakás
Eladó téglalakás

Komárom

30.8 M Ft
1 szoba
44 m2

Falusi CSOK ingatlanok

Eladó családi ház
Eladó családi ház

Tokod

89 M Ft
6 szoba
187 m2
Eladó családi ház
Eladó családi ház

Püspökhatvan

44.9 M Ft
3 szoba
80 m2
Eladó családi ház
Eladó családi ház

Geresdlak

44.9 M Ft
4 + 1 szoba
200 m2
Eladó családi ház
Eladó családi ház

Ceglédbercel, Iskola utca

79.99 M Ft
5 szoba
90 m2
Eladó családi ház
Eladó családi ház

Tiszajenő

25.9 M Ft
3 + 1 szoba
120 m2
Eladó téglalakás
Eladó téglalakás

Vasvár

40.52 M Ft
2 szoba
59 m2
Eladó téglalakás
Eladó téglalakás

Nagyharsány

22.5 M Ft
3 szoba
71 m2
Eladó családi ház
Eladó családi ház

Sárosd

21.9 M Ft
3 szoba
86 m2