Oasis Residence

Eladó sorház
Vác

97 500 000 Ft97.5 M Ft 1 059 783 Ft/m2
92 m2

Részletes adatok

Telekméret: 165 m2
Fűtés: Egyéb
Energetikai besorolás: Nem adta meg a hirdető

Az OTP Bank lakáshitel ajánlataFizetett hirdetés

+36 30 846
Zsolnai Júlia
BeMyHome Ingatlan

Érdekel az OTP Bank kedvezményes lakáshitel ajánlata? *

* A kérdésre „Igen” válasz bejelölése esetén, az „Üzenet küldése” gombra kattintva kijelentem, hogy az OTP Bank Nyrt. Adatkezelési tájékoztatójának tartalmát megismertem és tudomásul vettem.

Eladó sorház leírása

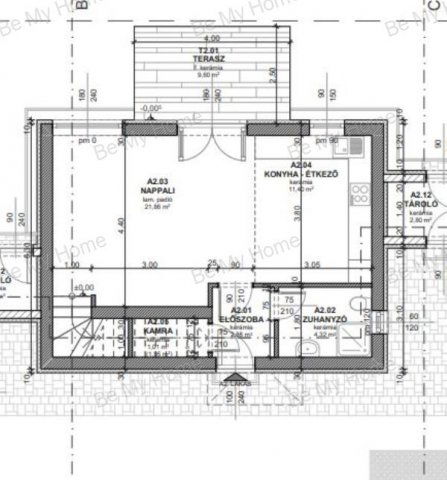
Vác új építésű lakóparkjában 92 nm-es, új építésű, nappali + 3 szobás, belső kétszintes sorházi lakás leköthető. A házak csak a tárolókkal érintkeznek. A lakáshoz 165 nm-es saját kert tartozik.

Az Új építésű,92 nm-es Nappali + 3 szobás, belső kétszintes ingatlan, kivételes adottságokkal, magas műszaki tartalommal, jól átgondolt élhető terekkel rendelkezik. A földszinten található egy 33,26 nm-es amerikai konyhás nappali, 2.88 nm-es előszoba, egy 4,32 nm-es zuhanyzós fürdőszoba, lépcső alatt kialakított 1,95 nm-es kamra, és egy 9,6 nm-es terasz.

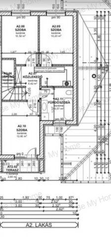
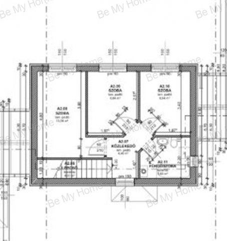
Az emeleten három hálószoba (2 x 8,84 nm és egy 13,06nm), és egy 5,6 nm-es fürdőszoba és egy 4,4 nm-es közlekedő kerül kialakításra.

A ház egyedi mérő órákkal felszerelt, a fűtést és a használati meleg vizet hőszivattyú biztosítja. A ház kulcsrakész állapotban kerül átadásra, szanitereket, burkolatokat a vevő a műszaki tartalomban megjelölt összegben választhatja ki, konyhabútor nélkül.építkezés során lehetőség van egyéni igények figyelemre vételére is. Az építkezés megfelelő szintjén lehetőség van egyéni igények figyelemre vételére is.

A környék infrastruktúrája kiváló: bevásárlási lehetőség, gyógyszertár, iskola, óvoda, a közelben található. Ingyenes hitel ügyintézéssel és ügyvédi háttérrel segítjük ügyfeleinket a vásárlásban.

Ha felkeltettem érdeklődését, várom hívását a hét bármely napján.

További Új építésű ingatlanokkal kapcsolatban, látogasson el weboldalunkra.

Hirdetés feltöltve: 2025. 10. 03. Utoljára módosítva: 2026. 01. 13.

0 szobás sorházak ára Vácon

Ebből az összehasonlításból megtudhatod, hogyan viszonyul a lakás ára a környékbeli sorházak átlagos árához. Ez nem azt jelenti, hogy ennyivel olcsóbb vagy drágább, mint amennyit a lakás ér, hanem hogy ennyivel tér el a környékbeli átlagtól.

Ennek a m² ára
Vác m² ár
1060 e Ft
1055 e Ft 0%
Ennek az ára
Vác átlagár
97.5 M Ft m Ft
111 m Ft 12%

Az ingatlan elhelyezkedése

Cím: Vác

Eladó sorházak a környékről

Eladó sorház
Eladó sorház

Vác

94.9 M Ft
4 szoba
80 m2
Eladó sorház
Eladó sorház

Vác

125 M Ft
3 + 1 szoba
74 m2
Eladó sorház
Eladó sorház

Vác

83.5 M Ft
3 szoba
82 m2
Eladó sorház
Eladó sorház

Szigetszentmiklós

74.5 M Ft
4 + 1 szoba
150 m2
Eladó sorház
Eladó sorház

Vác

100 M Ft
1 + 3 szoba
98 m2
Eladó sorház
Eladó sorház

Érd

299.9 M Ft
631 m²
302 m2
Eladó sorház
Eladó sorház

Dunaharaszti

99.9 M Ft
4 szoba
99 m2
Eladó sorház
Eladó sorház

Mikebuda

7.9 M Ft
2 szoba
70 m2
Eladó sorház
Eladó sorház

Érd

299.9 M Ft
9 szoba
302 m2
Eladó sorház
Eladó sorház

Szob

16 M Ft
2 szoba
45 m2
Eladó sorház
Eladó sorház

Szentendre

120 M Ft
7 szoba
360 m2
Eladó sorház
Eladó sorház

Érd

99.9 M Ft
4 szoba
101 m2
Eladó sorház
Eladó sorház

Kiskunlacháza

47.6 M Ft
3 szoba
68 m2
Eladó sorház
Eladó sorház

Szob

16 M Ft
2 szoba
45 m2
Eladó sorház
Eladó sorház

Leányfalu

80 M Ft
4 szoba
180 m2
Eladó sorház
Eladó sorház

Dunaharaszti

89 M Ft
6 szoba
80 m2
Eladó sorház
Eladó sorház

Veresegyház

250 M Ft
1 szoba
500 m2
Eladó sorház
Eladó sorház

Dunaharaszti

99.9 M Ft
4 szoba
100 m2
Eladó sorház
Eladó sorház

Vác

125 M Ft
4 szoba
100 m2
Eladó sorház
Eladó sorház

Vác

199.9 M Ft
5 szoba
177 m2
Eladó sorház
Eladó sorház

Vác

122 M Ft
5 + 1 szoba
135 m2
Eladó sorház
Eladó sorház

Pécel, Wesselényi utca 47

18.2 M Ft
2 szoba
45 m2
Eladó sorház
Eladó sorház

Pomáz

55 M Ft
3 + 1 szoba
80 m2
Eladó sorház
Eladó sorház

Kiskunlacháza

63.75 M Ft
4 szoba
85 m2

Falusi CSOK ingatlanok

Eladó családi ház
Eladó családi ház

Kenyeri

21.8 M Ft
2 szoba
75 m2
Eladó családi ház
Eladó családi ház

Szakmár

12.9 M Ft
3 + 1 szoba
90 m2
Eladó családi ház
Eladó családi ház

Ábrahámhegy

139 M Ft
4 szoba
106 m2
Eladó családi ház
Eladó családi ház

Szentlőrinckáta

29.9 M Ft
6 szoba
204 m2
Eladó családi ház
Eladó családi ház

Fülöpszállás

299 M Ft
14 + 5 szoba
680 m2
Eladó családi ház
Eladó családi ház

Mályi

84.9 M Ft
4 szoba
100 m2
Eladó családi ház
Eladó családi ház

Lesenceistvánd

75 M Ft
2 szoba
90 m2
Eladó családi ház
Eladó családi ház

Badacsonytomaj

124.9 M Ft
4 + 1 szoba
138 m2