Avico Greentop

Eladó sorház
Vác

97 500 000 Ft97.5 M Ft 1 059 783 Ft/m2
92 m2

Részletes adatok

Telekméret: 165 m2
Fűtés: Egyéb
Energetikai besorolás: Nem adta meg a hirdető

Az OTP Bank lakáshitel ajánlataFizetett hirdetés

+36 30 846
Zsolnai Júlia
BeMyHome Ingatlan

Érdekel az OTP Bank kedvezményes lakáshitel ajánlata? *

* A kérdésre „Igen” válasz bejelölése esetén, az „Üzenet küldése” gombra kattintva kijelentem, hogy az OTP Bank Nyrt. Adatkezelési tájékoztatójának tartalmát megismertem és tudomásul vettem.

Eladó sorház leírása

Vác új építésű lakóparkjában 92 nm-es, új építésű, nappali + 3 szobás, belső kétszintes sorházi lakás leköthető. A házak csak a tárolókkal érintkeznek. A lakáshoz 165 nm-es saját kert tartozik.

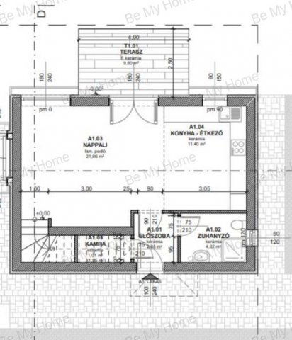
Az Új építésű,92 nm-es Nappali + 3 szobás, belső kétszintes ingatlan, kivételes adottságokkal, magas műszaki tartalommal, jól átgondolt élhető terekkel rendelkezik. A földszinten található egy 33,26 nm-es amerikai konyhás nappali, 2.88 nm-es előszoba, egy 4,32 nm-es zuhanyzós fürdőszoba, lépcső alatt kialakított 1,95 nm-es kamra, és egy 9,6 nm-es terasz.

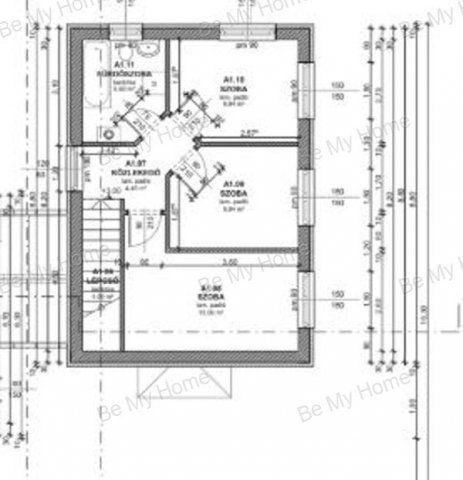
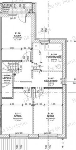
Az emeleten három hálószoba (2 x 8,84 nm és egy 13,06nm), és egy 5,6 nm-es fürdőszoba és egy 4,4 nm-es közlekedő kerül kialakításra.

A ház egyedi mérő órákkal felszerelt, a fűtést és a használati meleg vizet hőszivattyú biztosítja. A ház kulcsrakész állapotban kerül átadásra, szanitereket, burkolatokat a vevő a műszaki tartalomban megjelölt összegben választhatja ki, konyhabútor nélkül. Az építkezés során lehetőség van egyéni igények figyelemre vételére is.

A környék infrastruktúrája kiváló: bevásárlási lehetőség, gyógyszertár, iskola, óvoda, a közelben található. Ingyenes hitel ügyintézéssel és ügyvédi háttérrel segítjük ügyfeleinket a vásárlásban.

Ha felkeltettem érdeklődését, várom hívását a hét bármely napján.

További Új építésű ingatlanokkal kapcsolatban, látogasson el weboldalunkra.

Hirdetés feltöltve: 2025. 10. 03. Utoljára módosítva: 2025. 12. 02.

0 szobás sorházak ára Vácon

Ebből az összehasonlításból megtudhatod, hogyan viszonyul a lakás ára a környékbeli sorházak átlagos árához. Ez nem azt jelenti, hogy ennyivel olcsóbb vagy drágább, mint amennyit a lakás ér, hanem hogy ennyivel tér el a környékbeli átlagtól.

Ennek a m² ára
Vác m² ár
1060 e Ft
1096 e Ft 3%
Ennek az ára
Vác átlagár
97.5 M Ft m Ft
108 m Ft 10%

Az ingatlan elhelyezkedése

Cím: Vác

Eladó sorházak a környékről

Eladó sorház
Eladó sorház

Mikebuda

7.9 M Ft
2 szoba
70 m2
Eladó sorház
Eladó sorház

Vác

144.99 M Ft
4 + 1 szoba
186 m2
Eladó sorház
Eladó sorház

Vác

97.5 M Ft
165 m²
92 m2
Eladó sorház
Eladó sorház

Vác

125 M Ft
4 szoba
100 m2
Eladó sorház
Eladó sorház

Vác

83.5 M Ft
3 szoba
82 m2
Eladó sorház
Eladó sorház

Vác

94.9 M Ft
4 szoba
80 m2
Eladó sorház
Eladó sorház

Vác

87.9 M Ft
3 szoba
87 m2
Eladó sorház
Eladó sorház

Kiskunlacháza, Központ

63 M Ft
4 szoba
98 m2
Eladó sorház
Eladó sorház

Délegyháza

94.9 M Ft
12 szoba
350 m2
Eladó sorház
Eladó sorház

Vác

97.9 M Ft
4 szoba
96 m2
Eladó sorház
Eladó sorház

Vác

125 M Ft
4 szoba
100 m2
Eladó sorház
Eladó sorház

Vác

122 M Ft
5 + 1 szoba
135 m2
Eladó sorház
Eladó sorház

Dunaharaszti

94.9 M Ft
4 szoba
100 m2
Eladó sorház
Eladó sorház

Vác

125 M Ft
4 szoba
100 m2
Eladó sorház
Eladó sorház

Vác, Sejce dűlő

39.9 M Ft
1 szoba
173 m2
Eladó sorház
Eladó sorház

Gödöllő, Csanak, Kard utca

155 M Ft
3 szoba
100 m2
Eladó sorház
Eladó sorház

Dunaharaszti, Csendes, parkos környezet

128 M Ft
4 + 2 szoba
105 m2
Eladó sorház
Eladó sorház

Érd

299.9 M Ft
631 m²
302 m2
Eladó sorház
Eladó sorház

Szigetmonostor

67 M Ft
4 + 1 szoba
109 m2
Eladó sorház
Eladó sorház

Vác

109 M Ft
1 + 3 szoba
98 m2
Eladó sorház
Eladó sorház

Vác

95.9 M Ft
4 szoba
84 m2
Eladó sorház
Eladó sorház

Nagykovácsi

255 M Ft
6 szoba
176 m2
Eladó sorház
Eladó sorház

Szob

16 M Ft
2 szoba
45 m2
Eladó sorház
Eladó sorház

Szob

16 M Ft
2 szoba
45 m2

Falusi CSOK ingatlanok

Eladó családi ház
Eladó családi ház

Enese

78.9 M Ft
4 szoba
90 m2
Eladó családi ház
Eladó családi ház

Döbrönte

110 M Ft
2 + 2 szoba
183 m2
Eladó családi ház
Eladó családi ház

Jászalsószentgyörgy

39.9 M Ft
2 szoba
74 m2
Eladó családi ház
Eladó családi ház

Maráza

29.9 M Ft
3 szoba
96 m2
Eladó családi ház
Eladó családi ház

Bajánsenye

34.9 M Ft
5 szoba
130 m2
Eladó családi ház
Eladó családi ház

Kenyeri

39.9 M Ft
3 szoba
94 m2
Eladó családi ház
Eladó családi ház

Nyáregyháza

45 M Ft
4 szoba
155 m2
Eladó családi ház
Eladó családi ház

Jakabszállás

69.99 M Ft
1 + 4 szoba
91 m2