River Life

Eladó sorház
Monor

1/2
80 000 000 Ft80 M Ft 1 052 632 Ft/m2
1 + 3 szoba
76 m²

Részletes adatok

Telekméret: 400 m2
Fűtés: Egyéb
Közmű: Villany, Szélessáv, KábelTV
Energetikai besorolás: Nem adta meg a hirdető

Az OTP Bank lakáshitel ajánlataFizetett hirdetés

+36 30 625
Moldván Judit
Judit Ingatlan és Hiteliroda Kft.

Érdekel az OTP Bank kedvezményes lakáshitel ajánlata? *

* A kérdésre „Igen” válasz bejelölése esetén, az „Üzenet küldése” gombra kattintva kijelentem, hogy az OTP Bank Nyrt. Adatkezelési tájékoztatójának tartalmát megismertem és tudomásul vettem.

Eladó sorház leírása

HASZNÁLJA KI A CSOK+ KAMATTÁMOGATOTT HITEL ELŐNYEIT, A 4% ILLETÉKKEDVEZMÉNYT, VALAMINT A 3%-OS OTTHON START HITELT!!!!!!

10 % FOGLALÓVAL LEKÖTHETŐ!!!

Monor kertvárosában 2 db társasházi lakás épül saját telekkel, közös kocsibeállóval melyek MÁR FOGLALÓZHATÓAK!!!

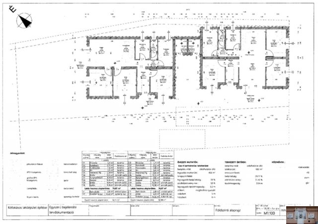
Az 1. lakás lakóterülete 76,87 m2, melyben előszoba (5,11 m2), nappali (18,36 m2), konyha-étkező (8,14 m2), közlekedő (2,75 m2), 1. szoba (10,15 m2), 2. szoba (9,49 m2), 3. szoba (9,36), fürdőszoba (7,12 m2), WC (1,35 m2), és háztartási helyiség (5,04 m2) található, valamint egy fedett terasz (12,42 m2) van a bejárat előtt. A két lakás nem ér össze, közöttük kerti tároló (2,81 m2) van.

Az ingatlanhoz kb. 50 m2 saját telek tartozik.

Fűtés: hőszivattyúval („H” tarifa), hőleadás padlófűtéssel, valamint inverteres klímával.

Közművek közül vezetékes víz, villany („H” tarifával), és csatorna bevezetésre kerül.

ÁRA: 77.000.000.- Ft

A 2. lakás lakóterülete 76,07 m2, melyben előszoba (5,11 m2), nappali (18,11 m2), konyha-étkező (3,86 m2), közlekedő (3,32 m2), 1. szoba (10,15 m2), 2. szoba (10,98 m2), 3. szoba (10,98), fürdőszoba (7,08 m2), WC (1,44 m2), és háztartási helyiség (5,04 m2) található, valamint a bejárati ajtó előtt egy előtér (4,01 m2), és egy fedett terasz (10,00 m2) kapcsolódik a nappalihoz. A két lakás között kerti tároló (2,81 m2) van.

Az ingatlanhoz kb. 400 m2 saját telek tartozik.

Fűtés: hőszivattyúval („H” tarifa), hőleadás padlófűtéssel, valamint inverteres klímával.

Közművek közül a villany („H” tarifával), és vezetékes víz kerül bevezetésre, a szennyvízelvezetés zárt rendszerű emésztőbe történik.

ÁRA: 80.000.000.- Ft

A lakások ytongból épülnek 10 cm külső dryvit szigeteléssel, a födémet 30 cm-es kőzetgyapottal szigetelik, a nyílászárók 3 rétegű, hőszigetelt műanyagok. A locsoláshoz fúrt kút van.

Elektromos kapu!

Burkolatok 10.000.- Ft/m2 árig választhatóak.

Átadás: 2026. október

DÍJMENTES HITELÜGYINTÉZÉS IRODÁNKBAN!!!

OTTHON START HITEL, CSOK+, BABAVÁRÓ KÖLCSÖN, KAMATTÁMOGATOTT LAKÁSHITELEK, ….

2003 ÓTA AZ ÖNÖK BIZALMÁBAN!

Hirdetés feltöltve: 2026. 04. 01. Utoljára módosítva: 2026. 04. 01.

Az ingatlan elhelyezkedése

Cím: Monor

Eladó ingatlanok a környékről

Kiskunlacháza
Eladó sorház

Kiskunlacháza

65.5 M Ft
4 szoba
77 m²
Gyál
Eladó családi ház

Gyál

70 M Ft
2 szoba
128 m²
Érd
Eladó téglalakás

Érd

79.9 M Ft
3 szoba
64 m²
Monor
Eladó téglalakás

Monor

56.9 M Ft
2 szoba
51 m²
Érd
Eladó téglalakás

Érd

64.9 M Ft
2 szoba
48 m²
Vecsés
Eladó családi ház

Vecsés

89.9 M Ft
4 szoba
120 m²
Monor
Eladó sorház

Monor

77 M Ft
1 + 3 szoba
77 m²
Vecsés
Eladó ikerház

Vecsés

132 M Ft
4 szoba
168 m²
Kiskunlacháza
Eladó ikerház

Kiskunlacháza

72.9 M Ft
5 szoba
91 m²
Tököl
Eladó téglalakás

Tököl

48 M Ft
2 szoba
49 m²
Érd
Eladó téglalakás

Érd

64.9 M Ft
2 szoba
49 m²
Vác
Eladó téglalakás

Vác

32 M Ft
1 szoba
33 m²
Érd
Eladó téglalakás

Érd

99.9 M Ft
4 szoba
89 m²
Budaörs
Eladó sorház

Budaörs

220 M Ft
6 szoba
330 m²
Szob
Eladó sorház

Szob

16 M Ft
2 szoba
45 m²
Dömsöd
Eladó ikerház

Dömsöd

61.9 M Ft
4 szoba
77 m²
Monor
Eladó téglalakás

Monor

56.9 M Ft
2 szoba
51 m²
Érd
Eladó téglalakás

Érd

79.9 M Ft
3 szoba
66 m²
Cegléd
Eladó mezogazdasagi ingatlan

Cegléd

4.99 M Ft
1.46 ha
0 m²
Vác, Sejce dűlő
Eladó sorház

Vác

39.9 M Ft
1 szoba
173 m²
Érd
Eladó sorház

Érd

98.3 M Ft
2 + 1 szoba
108 m²
Pilisborosjenő
Eladó téglalakás

Pilisborosjenő

99.9 M Ft
4 szoba
68 m²
Érd
Eladó sorház

Érd

299.9 M Ft
9 szoba
302 m²
Monor
Eladó sorház

Monor

90 M Ft
3 + 1 szoba
92 m²

Falusi CSOK ingatlanok

Felsőlajos
Eladó családi ház

Felsőlajos

100 M Ft
4 szoba
140 m²
Tápióbicske
Eladó ikerház

Tápióbicske

93.5 M Ft
7 szoba
136 m²
Csemő
Eladó családi ház

Csemő

61.9 M Ft
3 szoba
88 m²
Ceglédbercel
Eladó családi ház

Ceglédbercel

65.9 M Ft
3 szoba
97 m²
Ceglédbercel
Eladó családi ház

Ceglédbercel

79.9 M Ft
5 szoba
140 m²
Vatta
Eladó családi ház

Vatta

28.3 M Ft
2 szoba
56 m²
Somlójenő
Eladó családi ház

Somlójenő

64.9 M Ft
4 szoba
221 m²
Berzence, Mátyás utca
Eladó családi ház

Berzence

26.8 M Ft
3 szoba
94 m²