Metrodom

Eladó sorház
Monor

1/2
77 000 000 Ft77 M Ft 1 000 000 Ft/m2
1 + 3 szoba
77 m²

Részletes adatok

Telekméret: 50 m2
Fűtés: Egyéb
Közmű: Villany, Csatorna, Szélessáv, KábelTV
Energetikai besorolás: Nem adta meg a hirdető

Az OTP Bank lakáshitel ajánlataFizetett hirdetés

+36 30 625
Moldván Judit
Judit Ingatlan és Hiteliroda Kft.

Érdekel az OTP Bank kedvezményes lakáshitel ajánlata? *

* A kérdésre „Igen” válasz bejelölése esetén, az „Üzenet küldése” gombra kattintva kijelentem, hogy az OTP Bank Nyrt. Adatkezelési tájékoztatójának tartalmát megismertem és tudomásul vettem.

Eladó sorház leírása

HASZNÁLJA KI A CSOK+ KAMATTÁMOGATOTT HITEL ELŐNYEIT, A 4% ILLETÉKKEDVEZMÉNYT, VALAMINT A 3%-OS OTTHON START HITELT!!!!!!

10 % FOGLALÓVAL LEKÖTHETŐ!!!

Monor kertvárosában 2 db társasházi lakás épül saját telekkel, közös kocsibeállóval melyek MÁR FOGLALÓZHATÓAK!!!

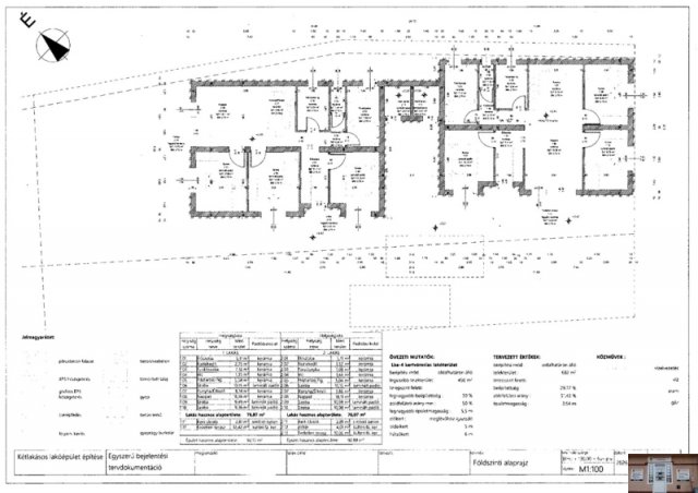
Az 1. lakás lakóterülete 76,87 m2, melyben előszoba (5,11 m2), nappali (18,36 m2), konyha-étkező (8,14 m2), közlekedő (2,75 m2), 1. szoba (10,15 m2), 2. szoba (9,49 m2), 3. szoba (9,36), fürdőszoba (7,12 m2), WC (1,35 m2), és háztartási helyiség (5,04 m2) található, valamint egy fedett terasz (12,42 m2) van a bejárat előtt. A két lakás nem ér össze, közöttük kerti tároló (2,81 m2) van.

Az ingatlanhoz kb. 50 m2 saját telek tartozik.

Fűtés: hőszivattyúval („H” tarifa), hőleadás padlófűtéssel, valamint inverteres klímával.

Közművek közül vezetékes víz, villany („H” tarifával), és csatorna bevezetésre kerül.

ÁRA: 77.000.000.- Ft

A 2. lakás lakóterülete 76,07 m2, melyben előszoba (5,11 m2), nappali (18,11 m2), konyha-étkező (3,86 m2), közlekedő (3,32 m2), 1. szoba (10,15 m2), 2. szoba (10,98 m2), 3. szoba (10,98), fürdőszoba (7,08 m2), WC (1,44 m2), és háztartási helyiség (5,04 m2) található, valamint a bejárati ajtó előtt egy előtér (4,01 m2), és egy fedett terasz (10,00 m2) kapcsolódik a nappalihoz. A két lakás között kerti tároló (2,81 m2) van.

Az ingatlanhoz kb. 400 m2 saját telek tartozik.

Fűtés: hőszivattyúval („H” tarifa), hőleadás padlófűtéssel, valamint inverteres klímával.

Közművek közül a villany („H” tarifával), és vezetékes víz kerül bevezetésre, a szennyvízelvezetés zárt rendszerű emésztőbe történik.

ÁRA: 80.000.000.- Ft

A lakások ytongból épülnek 10 cm külső dryvit szigeteléssel, a födémet 30 cm-es kőzetgyapottal szigetelik, a nyílászárók 3 rétegű, hőszigetelt műanyagok. A locsoláshoz fúrt kút van.

Elektromos kapu!

Burkolatok 10.000.- Ft/m2 árig választhatóak.

Átadás: 2026. október

DÍJMENTES HITELÜGYINTÉZÉS IRODÁNKBAN!!!

OTTHON START HITEL, CSOK+, BABAVÁRÓ KÖLCSÖN, KAMATTÁMOGATOTT LAKÁSHITELEK, ….

2003 ÓTA AZ ÖNÖK BIZALMÁBAN!

Hirdetés feltöltve: 2026. 04. 01. Utoljára módosítva: 2026. 04. 01.

Az ingatlan elhelyezkedése

Cím: Monor

Eladó ingatlanok a környékről

Gyál
Eladó üzlethelyiség

Gyál

1250 M Ft
2 szoba
385 m²
Érd
Eladó családi ház

Érd

165 M Ft
4 szoba
120 m²
Kakucs
Eladó családi ház

Kakucs

249.9 M Ft
5 szoba
255 m²
Nagykovácsi
Eladó sorház

Nagykovácsi

255 M Ft
6 szoba
176 m²
Szigetszentmiklós
Eladó ipari ingatlan

Szigetszentmiklós

84.9 M Ft
725 m²
261 m²
Érd
Eladó sorház

Érd

299.9 M Ft
631 m²
302 m²
Monor
Eladó sorház

Monor

84 M Ft
1 + 3 szoba
76 m²
Monor
Eladó sorház

Monor

90 M Ft
3 + 1 szoba
92 m²
Tököl
Eladó téglalakás

Tököl

73.8 M Ft
3 szoba
74 m²
Gyál
Eladó családi ház

Gyál

39.9 M Ft
1 szoba
79 m²
Kiskunlacháza
Eladó sorház

Kiskunlacháza

65.5 M Ft
4 szoba
77 m²
Dunaharaszti
Eladó sorház

Dunaharaszti

99.9 M Ft
4 szoba
100 m²
Monor
Eladó sorház

Monor

83.8 M Ft
1 + 3 szoba
76 m²
Dunaharaszti
Eladó sorház

Dunaharaszti

99.9 M Ft
4 szoba
100 m²
Érd
Eladó sorház

Érd

116 M Ft
4 szoba
101 m²
Kiskunlacháza
Eladó családi ház

Kiskunlacháza

94.9 M Ft
4 + 1 szoba
99 m²
Albertirsa
Eladó ikerház

Albertirsa

89.9 M Ft
4 szoba
91 m²
Dabas
Eladó telek

Dabas

34 M Ft
1085 m²
Gyál
Eladó üzlethelyiség

Gyál

1250 M Ft
2 szoba
385 m²
Érd
Eladó sorház

Érd

99.99 M Ft
2 + 2 szoba
104 m²
Kerepes
Eladó ikerház

Kerepes

90 M Ft
4 szoba
106 m²
Újhartyán
Eladó ikerház

Újhartyán

114.99 M Ft
5 szoba
106 m²
Pomáz
Eladó sorház

Pomáz

55 M Ft
3 + 1 szoba
80 m²
Kiskunlacháza
Eladó családi ház

Kiskunlacháza

92.9 M Ft
4 + 1 szoba
99 m²

Falusi CSOK ingatlanok

Bozsok
Eladó családi ház

Bozsok

290 M Ft
6 szoba
370 m²
Vértesboglár
Eladó családi ház

Vértesboglár

56.9 M Ft
4 szoba
154 m²
Újlengyel
Eladó ikerház

Újlengyel

78 M Ft
4 szoba
88 m²
Fonyód, Virág utca
Eladó ikerház

Fonyód

58.9 M Ft
2 szoba
36 m²
Pécsvárad, Kossuth Lajos utca
Eladó téglalakás

Pécsvárad

64.99 M Ft
3 szoba
89 m²
Gyöngyössolymos
Eladó családi ház

Gyöngyössolymos

57.99 M Ft
4 szoba
160 m²
Mád
Eladó családi ház

Mád

48 M Ft
3 szoba
181 m²
Tápióbicske
Eladó ikerház

Tápióbicske

93.5 M Ft
7 szoba
136 m²