City Pearl

Eladó sorház
Cegléd

+ 17 kép 1/20
73 120 000 Ft73.12 M Ft 925 570 Ft/m2
4 szoba
79 m²
építés éve:2026

Részletes adatok

Telekméret: 34 m2
Fűtés: Egyéb
Energetikai besorolás: A+

Az OTP Bank lakáshitel ajánlataFizetett hirdetés

+36 70 465
Mészáros Béla
Otthon Centrum Cegléd

Érdekel az OTP Bank kedvezményes lakáshitel ajánlata? *

* A kérdésre „Igen” válasz bejelölése esetén, az „Üzenet küldése” gombra kattintva kijelentem, hogy az OTP Bank Nyrt. Adatkezelési tájékoztatójának tartalmát megismertem és tudomásul vettem.

Eladó sorház leírása

Nappali + 3 szobás, belső kétszintes lakás. A lakáshoz tartozik egy 8 nm-es fedett terasz és egy 6 nm-es tornác is. Az ingatlanhoz tartozik egy kötelezően megvásárolandó gépkocsi beálló, melynek ára 1,5 millió forint valamint saját udvarrésszel is rendelkezik. A lakóparkon belül játszótér, pihenőpark kerül kialakításra.
- 30-as Porotherm tégla falazat
- 18 cm-es hőszigetelés
- Creaton tetőcserép
- műanyag nyílászárók 3 rétegű üvegezéssel, aluredőnyökkel
- egyedi hőszivattyús hűtés-fűtés padlófűtéssel és fan coillokkal
- lakásonként 3x20A elektromos áram + H tarifa

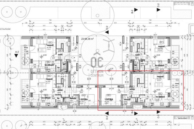
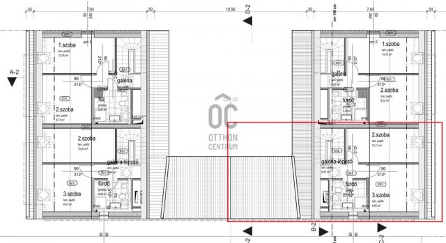
79 m2 alapterületű 4 szobás lakás. A lakás földszint + tetőteres kialakítású.
A földszinten elhelyezett étkezőkonyha és nappali összesített alapterülete meghaladja a 26 m2-t. A nappali mérete
meghaladja a 16 m2-t, amely területből étkező nem foglal el helyet. A lakáshoz nagyméretű, 1, 5 m széles fedett
terasz kapcsolódik, mind az étkezőkonyhából, mind a nappaliból önálló kijutási lehetőséget biztosítottunk a teraszra.
A földszinten a két főtömeget összekötő szárnyban egy szobát alakítottunk ki. A tágas földszinti mosdó helyiségben
helyeztük el a hőszivattyú beltéri egységét. A lakásnak van külön WC-je és kamrája a földszinten.
Az emeletre húzottkarú, gipszbeton szerkezetű lépcső vezet fel. Mindkét tetőtéri szobára 2-2 db tetőablakot terveztünk. A lakások
fűtése/hűtése víz-levegős hőszivattyúval történik , a lakáson belüli hőleadás padlófűtésen és fan-coil berendezésen keresztül történik.
Parkolást a telken belül oldjuk meg szilárd burkolaton, garázsépület nélkül. A hőszivattyú kültéri egységét a földszinti mosdó mellett
a külső falba süllyesztetten alakítottuk ki rácsos takarással, a beltéri egységet az emeleti tágas fürdőszobában helyeztük el.
A kültéri egységet az oldalhatári homlokzatba süllyesztve helyeztük el rácsos takaróajtóval. Az emeleti fürdőszobában mosógép, mosdó WC és tusoló kap helyet.
Projekt bemutatása

Stílus - Minőség - Biztonság - Környezettudatosság - Alacsony fenntartási költségek
Ezek a mai ingatlanfejlesztések legfontosabb hívószavai! Cegléd legújabb lakóparkja ezeknek az elvárásoknak kíván megfelelni szem előtt tartva a közösségépítést és az egyedi igények megvalósítását is!

A Vadvirág Lakópark Cegléd nyugati kapujában épül, közvetlenül természetvédelmi terület szomszédságában, ahol a fokozottan védett Pókbangó nevű ritka orchidea faj legjelentősebb hazai termőterülete található. A városközponttól 2 km-re fekszik, kerékpárúton is megközelíthető. Szupermarket a közvetlen közelben található, a Vasútállomás 3,5 km. A Ceglédi Termálfürdő 5 km, az M4 autópálya legközelebbi felhajtója 3,5 km, Budapest autóval 40 perc alatt elérhető. A terület könnyen megközelíthető mégis csöndes, természetközeli élményt tud nyújtani. A teraszáról a naplementében gyönyörködhet.

Tervek szerint a lakóparkban 40 db lakás épül, 10 db 4 lakásos sorház formájában. A lakások belső kétszintesek, tetőtérbeépítéssel. Minden lakáshoz saját kertrész tartozik. Minden egységhez biztosított egy gépkocsi tárolása garázs, fedett beálló vagy nyitott beálló formájában. A lakások terasszal vagy erkéllyel rendelkeznek. 3 típusú társasház közül lehet majd választani, a lakások mérete 61 és 95 nm közé esik, elrendezésük szerint nappali + 2 vagy 3 hálószobával.

A kortárs stílusú épületek a legjobb minőségű anyagokból készültek, és a legmodernebb technológiákat használtuk a fenntartható életvitel érdekében. Energetikailag a mai kor igényeinek mindenben megfelelnek. Az épületek korszerű homlokzati-, padló- és padlásszigeteléssel, hőszivattyús hűtés-fűtéssel rendelkeznek amit oldalfali fancoilok és padlófűtés biztosítanak. Opcióként az energiahatékonyság növelése érdekében lakásonként egyedi napelemes rendszert is árulunk. A korszerű, színben illeszkedő nyílászárókat alumínium redőnyökkel szereljük.

Az eladó társasházi lakásaink nagyszerű lehetőséget kínálnak mindazoknak, akik egy modern, zöld és közösségi életmódra vágynak. Ezért a saját élettér mellett fontos szerepet játszik a közösségi terek kialakítása is. Saját park, sétányok, szökőkút és játszótér fog gondoskodni a nyugodt pihenésről. A biztonságot a terület körbekerítése és kapukon keresztüli megközelítése fogja garantálni.

A kivitelezés már javában zajlik. Az első húsz lakás már tető alatt van, a belső munkálatokat végzik. Az első lakások átadására várhatóan 2025 őszén kerül sor.
A szerződéskötés részleteiről és feltételeiről személyes találkozó keretében tudom tájékoztatni!
Amennyiben hitel vagy CSOK Plusz érdekli, úgy az Otthon Centrum az ország egyik legnagyobb és legmegbízhatóbb hitelközvetítőjeként teljes körű és
díjmentes hitelügyintézéssel, biztosításkötéssel áll rendelkezésére!
Kérje személyre szabott ajánlatunkat Kollégáinktól!

Hirdetés feltöltve: 2026. 04. 25. Utoljára módosítva: 2026. 04. 26.

4 szobás sorházak ára Cegléden

Ebből az összehasonlításból megtudhatod, hogyan viszonyul a lakás ára a környékbeli sorházak átlagos árához. Ez nem azt jelenti, hogy ennyivel olcsóbb vagy drágább, mint amennyit a lakás ér, hanem hogy ennyivel tér el a környékbeli átlagtól.

Ennek a m² ára
Cegléd m² ár
926 e Ft
490 e Ft -89%
Ennek az ára
Cegléd átlagár
73.12 M Ft m Ft
43.5 m Ft -68%

Az ingatlan elhelyezkedése

Cím: Cegléd

Eladó ingatlanok a környékről

Dunaharaszti
Eladó ikerház

Dunaharaszti

259 M Ft
4 szoba
158 m²
Cegléd
Eladó sorház

Cegléd

29.9 M Ft
2 szoba
60 m²
Maglód
Eladó családi ház

Maglód

85 M Ft
3 szoba
75 m²
Cegléd
Eladó sorház

Cegléd

73.81 M Ft
4 szoba
78 m²
Nagykovácsi
Eladó sorház

Nagykovácsi

255 M Ft
6 szoba
176 m²
Maglód
Eladó családi ház

Maglód

85 M Ft
3 szoba
75 m²
Érd
Eladó családi ház

Érd

129 M Ft
3 + 1 szoba
183 m²
Szob
Eladó sorház

Szob

16 M Ft
2 szoba
45 m²
Szigethalom
Eladó családi ház

Szigethalom

119 M Ft
4 szoba
180 m²
Vác, Deákvár-Óváros, Jégvirág utca
Eladó családi ház

Vác

64 M Ft
2 szoba
93 m²
Páty
Eladó telek

Páty

52 M Ft
1390 m²
0 m²
Cegléd, Keleti kertváros, Dessewffy utca
Eladó sorház

Cegléd

54.7 M Ft
2 + 2 szoba
74 m²
Cegléd
Eladó sorház

Cegléd

29.9 M Ft
2 szoba
60 m²
Érd
Eladó sorház

Érd

115 M Ft
3 + 1 szoba
129 m²
Tököl
Eladó telek

Tököl

10 M Ft
1621 m²
0 m²
Pilisborosjenő
Eladó ikerház

Pilisborosjenő

169 M Ft
5 szoba
120 m²
Veresegyház
Eladó sorház

Veresegyház

250 M Ft
1 szoba
500 m²
Pilisvörösvár
Eladó családi ház

Pilisvörösvár

218 M Ft
6 szoba
243 m²
Szob
Eladó sorház

Szob

16 M Ft
2 szoba
45 m²
Verőce
Eladó nyaraló

Verőce

35 M Ft
1 + 1 szoba
32 m²
Tököl
Eladó sorház

Tököl

69.9 M Ft
1 + 3 szoba
77 m²
Dunaharaszti
Eladó sorház

Dunaharaszti

99.9 M Ft
4 szoba
96 m²
Leányfalu
Eladó sorház

Leányfalu

80 M Ft
4 szoba
180 m²
Dunaharaszti
Eladó ikerház

Dunaharaszti

183.75 M Ft
4 szoba
147 m²

Falusi CSOK ingatlanok

Kislippó
Eladó családi ház

Kislippó

17.99 M Ft
3 szoba
100 m²
Balatonszemes, Ady Endre u
Eladó téglalakás

Balatonszemes

78.9 M Ft
2 szoba
46 m²
Jászkarajenő
Eladó családi ház

Jászkarajenő

17.5 M Ft
2 + 1 szoba
47 m²
Tornyiszentmiklós
Eladó családi ház

Tornyiszentmiklós

29.9 M Ft
3 szoba
110 m²
Győrság
Eladó családi ház

Győrság

89.9 M Ft
4 szoba
92 m²
Bag
Eladó ikerház

Bag

93 M Ft
3 szoba
68 m²
Hegyeshalom, Margaréta utca 12
Eladó téglalakás

Hegyeshalom

35.92 M Ft
1 szoba
31 m²
Cece
Eladó családi ház

Cece

69.8 M Ft
4 szoba
215 m²