Astora Márvány8

Eladó panellakás
Százhalombatta, 1. emelet

+ 6 kép 1/9
53 500 000 Ft53.5 M Ft 1 138 298 Ft/m2
1 + 1 szoba
47 m²
1. emelet
építés éve:1985

Részletes adatok

Fűtés: Távfűtés
Emelet: 1. emelet
Komfort: Összkomfortos
Energetikai besorolás: C

Az OTP Bank lakáshitel ajánlataFizetett hirdetés

+36 20 975
Fodor Ágnes
referens

Érdekel az OTP Bank kedvezményes lakáshitel ajánlata? *

* A kérdésre „Igen” válasz bejelölése esetén, az „Üzenet küldése” gombra kattintva kijelentem, hogy az OTP Bank Nyrt. Adatkezelési tájékoztatójának tartalmát megismertem és tudomásul vettem.

Eladó panellakás leírása

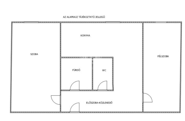
Százhalombattán a Déli lakótelepen kínálunk megvételre egy első emeleti, 47 nm nagyságú, jó állapotú, napfényes, 1+1/2 szobás, középső lakást.

Helyiségei:
- közlekedő
- fürdőszoba
- wc
- konyha, új konyhabútorral
- klímás nappali szoba
- félszoba

Fűtése távfűtés, rezsije alacsony.

A társasház külső szigetelése és az ablakok cseréje megtörtént.

Az ingatlan rövid időn belül birtokba vehető, befektetésnek is kiváló lehetőség.

Irodánk teljes körű banki hitellehetőségekkel, pénzügyi konstrukciókkal, állami támogatásokkal díjmentesen áll az érdeklődők rendelkezésére.

Amennyiben további tájékoztatásra van szüksége, vagy szeretné megtekinteni az ingatlant kérem, hívjon a hét bármely napján.

A hirdetésben szereplő adatok tájékoztató jellegűek, nem minősülnek ajánlattételnek. ...TOVÁBBI, TÖBBEZRES INGATLAN KÍNÁLAT: www.gdn-ingatlan.hu - GDN azonosító: 394596

Hirdetés feltöltve: 2026. 04. 10. Utoljára módosítva: 2026. 05. 19.

2 szobás panellakások ára Százhalombattán

Ebből az összehasonlításból megtudhatod, hogyan viszonyul a lakás ára a környékbeli panellakások átlagos árához. Ez nem azt jelenti, hogy ennyivel olcsóbb vagy drágább, mint amennyit a lakás ér, hanem hogy ennyivel tér el a környékbeli átlagtól.

Ennek a m² ára
Százhalombatta m² ár
1138 e Ft
1122 e Ft -1%
Ennek az ára
Százhalombatta átlagár
53.5 M Ft m Ft
56.9 m Ft 6%

Az ingatlan elhelyezkedése

Cím: Százhalombatta, 1. emelet

Eladó panellakások a környékről

Szigetszentmiklós
Eladó panellakás

Szigetszentmiklós

52 M Ft
2 + 1 szoba
56 m²
Százhalombatta
Eladó panellakás

Százhalombatta

54.9 M Ft
2 szoba
54 m²
Százhalombatta
Eladó panellakás

Százhalombatta

66 M Ft
3 szoba
62 m²
Százhalombatta
Eladó panellakás

Százhalombatta

65.9 M Ft
3 szoba
62 m²
Érd
Eladó panellakás

Érd

59.5 M Ft
2 szoba
57 m²
Százhalombatta
Eladó panellakás

Százhalombatta

55.9 M Ft
2 szoba
52 m²
Százhalombatta
Eladó panellakás

Százhalombatta

62.8 M Ft
2 szoba
52 m²
Százhalombatta, Erkel Ferenc körút
Eladó panellakás

Százhalombatta

71 M Ft
3 szoba
71 m²
Szigetszentmiklós
Eladó panellakás

Szigetszentmiklós

61.9 M Ft
1 + 2 szoba
62 m²
Százhalombatta, Kodály Zoltán sétány
Eladó panellakás

Százhalombatta

54.9 M Ft
2 szoba
50 m²
Százhalombatta
Eladó panellakás

Százhalombatta

76.6 M Ft
2 + 1 szoba
70 m²
Szigetszentmiklós
Eladó panellakás

Szigetszentmiklós

61.9 M Ft
1 + 2 szoba
62 m²
Százhalombatta
Eladó panellakás

Százhalombatta

59.4 M Ft
2 szoba
54 m²
Százhalombatta
Eladó panellakás

Százhalombatta

58.5 M Ft
2 + 1 szoba
61 m²
Szigetszentmiklós
Eladó panellakás

Szigetszentmiklós

61.9 M Ft
1 + 2 szoba
62 m²
Dunakeszi
Eladó panellakás

Dunakeszi

85.9 M Ft
3 szoba
70 m²
Táborfalva
Eladó panellakás

Táborfalva

26.8 M Ft
2 szoba
54 m²
Százhalombatta
Eladó panellakás

Százhalombatta

59.9 M Ft
2 szoba
52 m²
Szigetszentmiklós
Eladó panellakás

Szigetszentmiklós

61.9 M Ft
1 + 2 szoba
62 m²
Százhalombatta
Eladó panellakás

Százhalombatta

57.5 M Ft
3 szoba
51 m²
Százhalombatta
Eladó panellakás

Százhalombatta

62.5 M Ft
2 + 1 szoba
64 m²
Százhalombatta
Eladó panellakás

Százhalombatta

59.9 M Ft
2 szoba
50 m²
Százhalombatta, Erkel Ferenc körút
Eladó panellakás

Százhalombatta

57.9 M Ft
2 szoba
50 m²
Százhalombatta
Eladó panellakás

Százhalombatta

62.5 M Ft
2 + 1 szoba
64 m²

Falusi CSOK ingatlanok

Sály, Kossuth Lajos 128
Eladó családi ház

Sály

26.925 M Ft
6 szoba
160 m²
Felsőlajos
Eladó családi ház

Felsőlajos

100 M Ft
4 szoba
140 m²
Újlengyel
Eladó családi ház

Újlengyel

75.9 M Ft
4 szoba
0 m²
Iváncsa
Eladó családi ház

Iváncsa

93.5 M Ft
5 szoba
283 m²
Magyarhertelend
Eladó családi ház

Magyarhertelend

35.9 M Ft
3 szoba
55 m²
Tápióság
Eladó családi ház

Tápióság

71.5 M Ft
4 szoba
72 m²
Előszállás
Eladó családi ház

Előszállás

69.9 M Ft
6 szoba
238 m²
Badacsonytomaj
Eladó családi ház

Badacsonytomaj

285 M Ft
4 szoba
230 m²