Astora Olive Club House

Eladó panellakás
Budapest, XIV. kerület, földszint

+ 4 kép 1/7
62 900 000 Ft62.9 M Ft 1 283 673 Ft/m2
2 szoba
49 m²
földszint
építés éve:1980

Részletes adatok

Fűtés: Távfűtés
Emelet: földszint
Komfort: Összkomfortos
Extrák: Lift
Energetikai besorolás: E

Az OTP Bank lakáshitel ajánlataFizetett hirdetés

+36 30 544
Reich Melinda
Otp Ingatlanpont Falk Miksa

Érdekel az OTP Bank kedvezményes lakáshitel ajánlata? *

* A kérdésre „Igen” válasz bejelölése esetén, az „Üzenet küldése” gombra kattintva kijelentem, hogy az OTP Bank Nyrt. Adatkezelési tájékoztatójának tartalmát megismertem és tudomásul vettem.

Eladó panellakás leírása

XIV. kerület, Füredi lakótelep: saját kényelem vagy azonnali hozam az Ond vezér útján!

Eladásra kínálunk a XIV. kerület egyik legkeresettebb részén, a Füredi lakótelepen egy 49 m2-es, 2 szobás, loggiás, jó állapotú panellakást. Az ingatlan egy panelprogramon átesett, liftes társasház magasföldszintjén található, nyugati fekvésének köszönhetően pedig rendkívül világos.

Befektetők figyelem!
Az ingatlan jelenleg is megbízható bérlők által lakott, akik az adásvétel után is szívesen maradnának. Ez kiváló lehetőség azoknak, akik azonnali hozamot keresnek, hiszen a beköltözhetővé tétel vagy bérlőkeresés költségei és ideje megspórolhatóak. Stabil kereslet, biztos megtérülés!

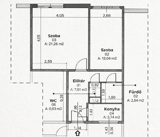
A lakás belső elrendezése:
A lakásba belépve egy praktikus, L alakú előtérbe érkezünk, ahonnan minden helyiség külön megközelíthető. Jobbra található a világos konyha, valamint a különálló WC és fürdőszoba. A közlekedő végén helyezkedik el a két tágas szoba; a kisebbik szobából közvetlen kijárás nyílik a nyugati fekvésű loggiára, amely ideális helyszín az esti kikapcsolódáshoz.

A társasház és a környezet:
A 10 emeletes társasház tiszta, rendezett, liftes és számkódos beléptetőrendszerrel védett. A környék igazi zöldövezeti paradicsom: parkok, játszóterek és sétatávolságra lévő kikapcsolódási lehetőségek jellemzik a Füredi lakótelepet.

Infrastruktúra és közlekedés:
A lokáció párját ritkítja, hiszen minden karnyújtásnyira van, amire a hétköznapokban szükség lehet:
Vásárlás: Árkád, Sugár, IKEA, ALDI, SPAR, pékségek és éttermek.
Szolgáltatások: Óvoda, iskola, posta, gyógyszertár a közvetlen közelben.
Közlekedés: A 80-as troli megállója szinte a ház előtt, az M2-es metró (Örs vezér tere) mindössze 2 megálló. A HÉV és számos buszjárat szintén könnyen elérhető, így a város bármely pontja gyorsan megközelíthető.

Ne maradjon le erről a remek lehetőségről! Akár saját otthonnak, akár kiadásra keres ingatlant, ez a lakás minden szempontból jó döntés.

Az OTP Ingatlanpont teljes körű ügyintézéssel áll az eladók és a vevők rendelkezésére. A kínálatunkból választott ingatlan finanszírozásához kedvezményes hitelkonstrukciót kínálunk. Az adásvételi szerződés megkötéséhez igény szerint megbízható ügyvédi közreműködést biztosítunk, és segítséget nyújtunk az adásvételhez kapcsolódó ügyek intézéséhez is.

Referencia szám: M325598

Hirdetés feltöltve: 2026. 04. 01. Utoljára módosítva: 2026. 05. 13.

2 szobás panellakások ára Budapesten

Ebből az összehasonlításból megtudhatod, hogyan viszonyul a lakás ára a környékbeli panellakások átlagos árához. Ez nem azt jelenti, hogy ennyivel olcsóbb vagy drágább, mint amennyit a lakás ér, hanem hogy ennyivel tér el a környékbeli átlagtól.

Ennek a m² ára
XIV. kerület m² ár
Budapest m² ár
1284 e Ft
1361 e Ft 6%
1348 e Ft 5%
Ennek az ára
XIV. kerület átlagár
Budapest átlagár
62.9 M Ft m Ft
64.3 m Ft 2%
64.8 m Ft 3%

Az ingatlan elhelyezkedése

Cím: Budapest, XIV. kerület, földszint

Eladó ingatlanok a környékről

XIV. kerület
Eladó panellakás

Budapest, XIV. kerület

61.5 M Ft
2 szoba
46 m²
XIV. kerület
Eladó panellakás

Budapest, XIV. kerület

61.5 M Ft
2 szoba
46 m²
XIII. kerület, Angyalföld, Szent László út
Eladó téglalakás

Budapest, XIII. kerület

67.5 M Ft
2 szoba
38 m²
XIV. kerület
Eladó panellakás

Budapest, XIV. kerület

73.85 M Ft
2 szoba
50 m²
XIV. kerület
Eladó panellakás

Budapest, XIV. kerület

61.5 M Ft
2 szoba
46 m²
VII. kerület, Külső Erzsébetváros, Erzsébet körút
Eladó téglalakás

Budapest, VII. kerület

195 M Ft
4 szoba
93 m²
XIV. kerület
Eladó panellakás

Budapest, XIV. kerület

74.9 M Ft
2 szoba
50 m²
VII. kerület, Külső Erzsébetváros, Garay tér
Eladó téglalakás

Budapest, VII. kerület

68.5 M Ft
2 szoba
35 m²
IV. kerület
Eladó téglalakás

Budapest, IV. kerület

52 M Ft
1 szoba
29 m²
III. kerület
Eladó téglalakás

Budapest, III. kerület

26 M Ft
1 szoba
26 m²
XIV. kerület
Eladó panellakás

Budapest, XIV. kerület

61.5 M Ft
2 szoba
46 m²
V. kerület, Lipótváros, Akadémia utca
Eladó téglalakás

Budapest, V. kerület

110 M Ft
3 szoba
61 m²
III. kerület
Eladó panellakás

Budapest, III. kerület

64.9 M Ft
3 szoba
50 m²
XIV. kerület
Eladó panellakás

Budapest, XIV. kerület

61.5 M Ft
2 szoba
46 m²
XIX. kerület
Eladó családi ház

Budapest, XIX. kerület

33.9 M Ft
1 szoba
25 m²
VII. kerület, Külső Erzsébetváros, István utca
Eladó téglalakás

Budapest, VII. kerület

84 M Ft
2 szoba
47 m²
XIV. kerület
Eladó panellakás

Budapest, XIV. kerület

79 M Ft
2 szoba
50 m²
VII. kerület, Külső Erzsébetváros, Dózsa György út
Eladó téglalakás

Budapest, VII. kerület

95.5 M Ft
2 szoba
67 m²
VI. kerület
Eladó téglalakás

Budapest, VI. kerület

493 M Ft
5 szoba
285 m²
XIV. kerület
Eladó panellakás

Budapest, XIV. kerület

79.9 M Ft
3 szoba
56 m²
XIV. kerület
Eladó panellakás

Budapest, XIV. kerület

79.9 M Ft
3 szoba
56 m²
XIV. kerület
Eladó panellakás

Budapest, XIV. kerület

79 M Ft
2 szoba
50 m²
XIV. kerület, Rákosfalva, Füredi
Eladó panellakás

Budapest, XIV. kerület

79.9 M Ft
1 + 2 szoba
56 m²
VIII. kerület
Eladó téglalakás

Budapest, VIII. kerület

39.99 M Ft
1 szoba
30 m²

Falusi CSOK ingatlanok

Beremend, 7827 Beremend, Petőfi Sándor utca 10
Eladó családi ház

Beremend

11.95 M Ft
1 + 1 szoba
124 m²
Csurgó
Eladó családi ház

Csurgó

19.9 M Ft
4 szoba
136 m²
Csabacsűd
Eladó családi ház

Csabacsűd

21 M Ft
3 szoba
125 m²
Bag
Eladó családi ház

Bag

16.9 M Ft
6 szoba
160 m²
Nagyhegyes
Eladó családi ház

Nagyhegyes

54.99 M Ft
2 szoba
79 m²
Zagyvarékas, Erdő utca 16
Eladó családi ház

Zagyvarékas

0.1 M Ft
2 szoba
113 m²
Hegyeshalom, Margaréta utca 12
Eladó téglalakás

Hegyeshalom

35.92 M Ft
1 szoba
31 m²
Csárdaszállás
Eladó családi ház

Csárdaszállás

11.99 M Ft
3 + 2 szoba
100 m²