Aerogate Homes

Eladó panellakás
Budapest, XIV. kerület, földszint

+ 4 kép 1/7
62 900 000 Ft62.9 M Ft 1 283 673 Ft/m2
2 szoba
49 m²
földszint
építés éve:1980

Részletes adatok

Fűtés: Távfűtés
Emelet: földszint
Komfort: Összkomfortos
Extrák: Lift
Energetikai besorolás: Nem adta meg a hirdető

Az OTP Bank lakáshitel ajánlataFizetett hirdetés

+36 20 371
Antal Enikő
referens

Érdekel az OTP Bank kedvezményes lakáshitel ajánlata? *

* A kérdésre „Igen” válasz bejelölése esetén, az „Üzenet küldése” gombra kattintva kijelentem, hogy az OTP Bank Nyrt. Adatkezelési tájékoztatójának tartalmát megismertem és tudomásul vettem.

Eladó panellakás leírása

XIV. kerület, Füredi lakótelep: saját kényelem vagy azonnali hozam az Ond vezér útján!

Eladásra kínálunk a XIV. kerület egyik legkeresettebb részén, a Füredi lakótelepen egy 49 m2-es, 2 szobás, loggiás, jó állapotú panellakást. Az ingatlan egy panelprogramon átesett, liftes társasház magasföldszintjén található, nyugati fekvésének köszönhetően pedig rendkívül világos.

Befektetők figyelem!
Az ingatlan jelenleg is megbízható bérlők által lakott, akik az adásvétel után is szívesen maradnának. Ez kiváló lehetőség azoknak, akik azonnali hozamot keresnek, hiszen a beköltözhetővé tétel vagy bérlőkeresés költségei és ideje megspórolhatóak. Stabil kereslet, biztos megtérülés!

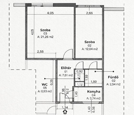
A lakás belső elrendezése:
A lakásba belépve egy praktikus, L alakú előtérbe érkezünk, ahonnan minden helyiség külön megközelíthető. Jobbra található a világos konyha, valamint a különálló WC és fürdőszoba. A közlekedő végén helyezkedik el a két tágas szoba; a kisebbik szobából közvetlen kijárás nyílik a nyugati fekvésű loggiára, amely ideális helyszín az esti kikapcsolódáshoz.

A társasház és a környezet:
A 10 emeletes társasház tiszta, rendezett, liftes és számkódos beléptetőrendszerrel védett. A környék igazi zöldövezeti paradicsom: parkok, játszóterek és sétatávolságra lévő kikapcsolódási lehetőségek jellemzik a Füredi lakótelepet.

Infrastruktúra és közlekedés:
A lokáció párját ritkítja, hiszen minden karnyújtásnyira van, amire a hétköznapokban szükség lehet:
Vásárlás: Árkád, Sugár, IKEA, ALDI, SPAR, pékségek és éttermek.
Szolgáltatások: Óvoda, iskola, posta, gyógyszertár a közvetlen közelben.
Közlekedés: A 80-as troli megállója szinte a ház előtt, az M2-es metró (Örs vezér tere) mindössze 2 megálló. A HÉV és számos buszjárat szintén könnyen elérhető, így a város bármely pontja gyorsan megközelíthető.

Ne maradjon le erről a remek lehetőségről! Akár saját otthonnak, akár kiadásra keres ingatlant, ez a lakás minden szempontból jó döntés.

Az OTP Ingatlanpont teljes körű ügyintézéssel áll az eladók és a vevők rendelkezésére. A kínálatunkból választott ingatlan finanszírozásához kedvezményes hitelkonstrukciót kínálunk. Az adásvételi szerződés megkötéséhez igény szerint megbízható ügyvédi közreműködést biztosítunk, és segítséget nyújtunk az adásvételhez kapcsolódó ügyek intézéséhez is.

Az energetikai tanúsítvány készítése folyamatban van, amint rendelkezésre áll, úgy azzal a hirdetés frissítésre kerül.

Antal Enikő
+36/20-371-2105

Hirdetés feltöltve: 2026. 04. 01. Utoljára módosítva: 2026. 05. 14.

2 szobás panellakások ára Budapesten

Ebből az összehasonlításból megtudhatod, hogyan viszonyul a lakás ára a környékbeli panellakások átlagos árához. Ez nem azt jelenti, hogy ennyivel olcsóbb vagy drágább, mint amennyit a lakás ér, hanem hogy ennyivel tér el a környékbeli átlagtól.

Ennek a m² ára
XIV. kerület m² ár
Budapest m² ár
1284 e Ft
1349 e Ft 5%
1126 e Ft -14%
Ennek az ára
XIV. kerület átlagár
Budapest átlagár
62.9 M Ft m Ft
66.9 m Ft 6%
127.8 m Ft 51%

Az ingatlan elhelyezkedése

Cím: Budapest, XIV. kerület, földszint

Eladó ingatlanok a környékről

XIV. kerület
Eladó panellakás

Budapest, XIV. kerület

95 M Ft
2 + 1 szoba
63 m²
VI. kerület
Eladó hotel

Budapest, VI. kerület

85 M Ft
5 szoba
90 m²
XIV. kerület
Eladó panellakás

Budapest, XIV. kerület

78.999 M Ft
2 szoba
50 m²
XIV. kerület
Eladó panellakás

Budapest, XIV. kerület

79.9 M Ft
3 szoba
56 m²
XIV. kerület, Rákosfalva, Füredi
Eladó panellakás

Budapest, XIV. kerület

79.9 M Ft
1 + 2 szoba
56 m²
XIV. kerület
Eladó téglalakás

Budapest, XIV. kerület

62.9 M Ft
2 szoba
38 m²
XV. kerület, Mátyás utca
Eladó családi ház

Budapest, XV. kerület

157.9 M Ft
6 + 1 szoba
199 m²
XIV. kerület
Eladó panellakás

Budapest, XIV. kerület

69 M Ft
2 szoba
50 m²
XIV. kerület
Eladó panellakás

Budapest, XIV. kerület

73.85 M Ft
2 szoba
50 m²
VII. kerület, Külső Erzsébetváros, Alsó erdősor utca
Eladó téglalakás

Budapest, VII. kerület

107.5 M Ft
3 szoba
86 m²
XIV. kerület
Eladó panellakás

Budapest, XIV. kerület

61.5 M Ft
2 szoba
46 m²
XIV. kerület
Eladó panellakás

Budapest, XIV. kerület

61.5 M Ft
1 + 1 szoba
46 m²
XX. kerület
Eladó téglalakás

Budapest, XX. kerület

53.9 M Ft
2 szoba
51 m²
XIII. kerület
Eladó panellakás

Budapest, XIII. kerület

74.9 M Ft
3 szoba
56 m²
XIV. kerület
Eladó panellakás

Budapest, XIV. kerület

72.9 M Ft
1 + 2 szoba
56 m²
II. kerület
Eladó téglalakás

Budapest, II. kerület

99 M Ft
3 szoba
66 m²
XIII. kerület
Eladó panellakás

Budapest, XIII. kerület

51.9 M Ft
1 szoba
28 m²
XIII. kerület
Eladó téglalakás

Budapest, XIII. kerület

72.65 M Ft
1 szoba
36 m²
VIII. kerület
Eladó téglalakás

Budapest, VIII. kerület

57.9 M Ft
2 szoba
44 m²
VI. kerület
Eladó téglalakás

Budapest, VI. kerület

69.9 M Ft
2 szoba
47 m²
XI. kerület
Eladó panellakás

Budapest, XI. kerület

75.9 M Ft
2 szoba
48 m²
XIV. kerület
Eladó panellakás

Budapest, XIV. kerület

79 M Ft
2 szoba
50 m²
XIV. kerület
Eladó panellakás

Budapest, XIV. kerület

74.2 M Ft
2 szoba
50 m²
XVIII. kerület
Eladó téglalakás

Budapest, XVIII. kerület

64.9 M Ft
1 + 1 szoba
46 m²

Falusi CSOK ingatlanok

Badacsonytomaj
Eladó családi ház

Badacsonytomaj

285 M Ft
4 szoba
230 m²
Mesteri
Eladó családi ház

Mesteri

29.7 M Ft
4 szoba
140 m²
Győrság
Eladó családi ház

Győrság

79.9 M Ft
4 szoba
92 m²
Galgahévíz
Eladó családi ház

Galgahévíz

43 M Ft
3 szoba
115 m²
Jobbágyi
Eladó családi ház

Jobbágyi

399 M Ft
6 + 1 szoba
200 m²
Halimba
Eladó családi ház

Halimba

59.9 M Ft
6 szoba
182 m²
Bag
Eladó családi ház

Bag

110 M Ft
5 szoba
320 m²
Porva
Eladó családi ház

Porva

74.6 M Ft
3 szoba
115 m²