City Pearl

Eladó panellakás
Budapest, III. kerület, 4. emelet

+ 3 kép 1/6
66 800 000 Ft66.8 M Ft 1 171 930 Ft/m2
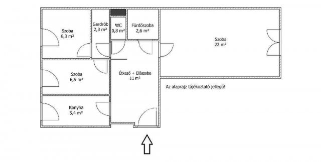
1 + 2 szoba
57 m²
4. emelet
építés éve:1978

Részletes adatok

Állapot: Átlagos
Fűtés: Távfűtés
Emelet: 4. emelet
Extrák: Lift
Energetikai besorolás: F

Az OTP Bank lakáshitel ajánlataFizetett hirdetés

+36 30 428
Lengyel József
referens

Érdekel az OTP Bank kedvezményes lakáshitel ajánlata? *

* A kérdésre „Igen” válasz bejelölése esetén, az „Üzenet küldése” gombra kattintva kijelentem, hogy az OTP Bank Nyrt. Adatkezelési tájékoztatójának tartalmát megismertem és tudomásul vettem.

Eladó panellakás leírása

Eladó 57 négyzetméteres jó állapotú negyedik emeleti panellakás a Gyűrű utcában. Kiváló elosztású egy plusz két félszobás nagyon praktikus gardróbbal! Az épület panelprogramban részt vett, homlokzata rendezett. A műanyag ablakok redőnyösek és lakó szobánként egy nyitható ablak rovarhálós. A fűtést és a meleg vizet távhőn kapja a lakás, a radiátorok egyedi mérővel vannak ellátva. A háznak jelentős megtakarítása van így a fejlesztéseket folyamatosan tervezik, a közös költség emelkedése a közeljövőben nem várható. A közelben oktatási intézmények, üzletek és bevásárlóközpont is van, a tömegközlekedés kiváló a környéken. Parkolni a ház előtt kialakított parkolóban lehet közterületen ingyenesen. Ezt a remek elosztású lakást pároknak vagy családosoknak ajánlom elsősorban. Az ingatlan tehermentes, szinte azonnal költözhető! Ha érdekesnek találta jöjjön el és tekintse meg élőben is! Időpont egyeztetéshez hívjon bizalommal!

Teljes körű ügyintézéssel állunk az eladók és a vevők rendelkezésére! A kínálatunkból választott ingatlan finanszírozásához minősített fogyasztóbarát, piaci és kedvezményes hitel- és lízingkonstrukciókat kínálunk (lakásvásárlási hitel, szabad felhasználású hitel, babaváró hitel, CSOK Plusz intézés, Otthonfelújítási Támogatás, egyéb felújítási hitelek). Az adásvételi szerződés megkötéséhez igény szerint megbízható ügyvédi közreműködést biztosítunk, és segítséget nyújtunk az adásvételhez kapcsolódó egyéb ügyek intézéséhez.

Kérdéseire az esti órákban és hétvégén is szívesen válaszolok! Ha az új ingatlana megvásárlásához a jelenlegi ingatlanát el kell adnia, abban is szívesen segítünk.

Referencia szám: M324472

Hirdetés feltöltve: 2026. 03. 14. Utoljára módosítva: 2026. 04. 04.

3 szobás panellakások ára Budapesten

Ebből az összehasonlításból megtudhatod, hogyan viszonyul a lakás ára a környékbeli panellakások átlagos árához. Ez nem azt jelenti, hogy ennyivel olcsóbb vagy drágább, mint amennyit a lakás ér, hanem hogy ennyivel tér el a környékbeli átlagtól.

Ennek a m² ára
III. kerület m² ár
Budapest m² ár
1172 e Ft
1277 e Ft 8%
1231 e Ft 5%
Ennek az ára
III. kerület átlagár
Budapest átlagár
66.8 M Ft m Ft
79.9 m Ft 16%
75.8 m Ft 12%

Az ingatlan elhelyezkedése

Cím: Budapest, III. kerület, 4. emelet

Eladó ingatlanok a környékről

III. kerület
Eladó panellakás

Budapest, III. kerület

73.9 M Ft
1 + 2 szoba
57 m²
III. kerület
Eladó panellakás

Budapest, III. kerület

110 M Ft
3 szoba
73 m²
III. kerület, Békásmegyer, Zsirai Miklós utca
Eladó panellakás

Budapest, III. kerület

149.99 M Ft
6 szoba
114 m²
III. kerület, Táborhegy
Eladó panellakás

Budapest, III. kerület

69.9 M Ft
3 szoba
61 m²
III. kerület
Eladó panellakás

Budapest, III. kerület

75.5 M Ft
2 szoba
48 m²
III. kerület
Eladó panellakás

Budapest, III. kerület

108 M Ft
2 + 2 szoba
67 m²
III. kerület
Eladó panellakás

Budapest, III. kerület

110 M Ft
3 szoba
73 m²
III. kerület
Eladó panellakás

Budapest, III. kerület

78.5 M Ft
3 szoba
66 m²
VIII. kerület
Eladó téglalakás

Budapest, VIII. kerület

19.9 M Ft
1 szoba
15 m²
II. kerület
Eladó téglalakás

Budapest, II. kerület

126 M Ft
3 szoba
66 m²
XVI. kerület
Eladó családi ház

Budapest, XVI. kerület

49.5 M Ft
3 + 1 szoba
62 m²
III. kerület
Eladó panellakás

Budapest, III. kerület

110 M Ft
3 szoba
73 m²
III. kerület
Eladó panellakás

Budapest, III. kerület

74 M Ft
3 szoba
66 m²
III. kerület
Eladó panellakás

Budapest, III. kerület

108 M Ft
2 + 2 szoba
67 m²
XIV. kerület
Eladó téglalakás

Budapest, XIV. kerület

92.5 M Ft
2 szoba
64 m²
III. kerület
Eladó panellakás

Budapest, III. kerület

110 M Ft
3 szoba
73 m²
III. kerület
Eladó panellakás

Budapest, III. kerület

110 M Ft
3 szoba
73 m²
XVI. kerület
Eladó iroda

Budapest, XVI. kerület

49.5 M Ft
3 + 1 szoba
62 m²
III. kerület
Eladó téglalakás

Budapest, III. kerület

195 M Ft
5 szoba
130 m²
II. kerület
Eladó családi ház

Budapest, II. kerület

970 M Ft
6 szoba
320 m²
III. kerület
Eladó panellakás

Budapest, III. kerület

78.5 M Ft
3 szoba
66 m²
III. kerület, Csillaghegy
Eladó panellakás

Budapest, III. kerület

94.5 M Ft
3 szoba
73 m²
XIX. kerület, Kispest, Hofherr Albert u
Eladó családi ház

Budapest, XIX. kerület

172 M Ft
6 + 1 szoba
200 m²
VI. kerület, Külső Terézváros, Dessewffy utca
Eladó téglalakás

Budapest, VI. kerület

79.9 M Ft
2 szoba
46 m²

Falusi CSOK ingatlanok

Bakonybél
Eladó családi ház

Bakonybél

84.9 M Ft
5 szoba
211 m²
Balatonszemes
Eladó téglalakás

Balatonszemes

244.5 M Ft
3 szoba
107 m²
Balatonszemes
Eladó téglalakás

Balatonszemes

123.3 M Ft
2 szoba
70 m²
Tápióság
Eladó családi ház

Tápióság

59.9 M Ft
4 szoba
99 m²
Ceglédbercel
Eladó családi ház

Ceglédbercel

65.9 M Ft
3 szoba
97 m²
Tápióság
Eladó családi ház

Tápióság

59.9 M Ft
4 szoba
99 m²
Bőny
Eladó sorház

Bőny

37.8 M Ft
3 szoba
63 m²
Tápiógyörgye
Eladó családi ház

Tápiógyörgye

14.9 M Ft
2 szoba
60 m²