Astora Art House

Eladó panellakás
Budapest, III. kerület, Békásmegyer, 4. emelet

+ 3 kép 1/6
66 800 000 Ft66.8 M Ft 1 171 930 Ft/m2
1 + 2 szoba
57 m²
4. emelet
építés éve:1978

Részletes adatok

Állapot: Átlagos
Fűtés: Távfűtés
Emelet: 4. emelet
Extrák: Lift
Energetikai besorolás: Nem adta meg a hirdető

Az OTP Bank lakáshitel ajánlataFizetett hirdetés

+36 70 458
Potoczki László
referens

Érdekel az OTP Bank kedvezményes lakáshitel ajánlata? *

* A kérdésre „Igen” válasz bejelölése esetén, az „Üzenet küldése” gombra kattintva kijelentem, hogy az OTP Bank Nyrt. Adatkezelési tájékoztatójának tartalmát megismertem és tudomásul vettem.

Eladó panellakás leírása

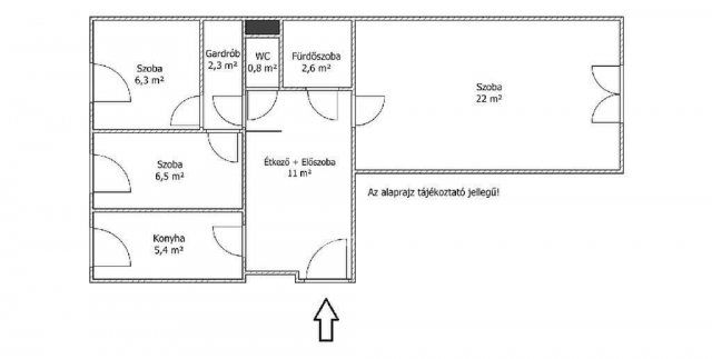
Eladó 57 négyzetméteres jó állapotú negyedik emeleti panellakás a Gyűrű utcában. Kiváló elosztású egy plusz két félszobás nagyon praktikus gardróbbal! Az épület panelprogramban részt vett, homlokzata rendezett. A műanyag ablakok redőnyösek és lakó szobánként egy nyitható ablak rovarhálós. A fűtést és a meleg vizet távhőn kapja a lakás, a radiátorok egyedi mérővel vannak ellátva. A háznak jelentős megtakarítása van így a fejlesztéseket folyamatosan tervezik, a közös költség emelkedése a közeljövőben nem várható. A közelben oktatási intézmények, üzletek és bevásárlóközpont is van, a tömegközlekedés kiváló a környéken. Parkolni a ház előtt kialakított parkolóban lehet közterületen ingyenesen. Ezt a remek elosztású lakást pároknak vagy családosoknak ajánlom elsősorban. Az ingatlan tehermentes, szinte azonnal költözhető! Ha érdekesnek találta jöjjön el és tekintse meg élőben is! Időpont egyeztetéshez hívjon bizalommal!

Teljes körű ügyintézéssel állunk az eladók és a vevők rendelkezésére! A kínálatunkból választott ingatlan finanszírozásához minősített fogyasztóbarát, piaci és kedvezményes hitel- és lízingkonstrukciókat kínálunk (lakásvásárlási hitel, szabad felhasználású hitel, babaváró hitel, CSOK Plusz intézés, Otthonfelújítási Támogatás, egyéb felújítási hitelek). Az adásvételi szerződés megkötéséhez igény szerint megbízható ügyvédi közreműködést biztosítunk, és segítséget nyújtunk az adásvételhez kapcsolódó egyéb ügyek intézéséhez.

Kérdéseire az esti órákban és hétvégén is szívesen válaszolok! Ha az új ingatlana megvásárlásához a jelenlegi ingatlanát el kell adnia, abban is szívesen segítünk.

Referencia szám: M324472

Hirdetés feltöltve: 2026. 03. 12. Utoljára módosítva: 2026. 03. 12.

3 szobás panellakások ára Budapesten

Ebből az összehasonlításból megtudhatod, hogyan viszonyul a lakás ára a környékbeli panellakások átlagos árához. Ez nem azt jelenti, hogy ennyivel olcsóbb vagy drágább, mint amennyit a lakás ér, hanem hogy ennyivel tér el a környékbeli átlagtól.

Ennek a m² ára
Békásmegyer m² ár
III. kerület m² ár
Budapest m² ár
1172 e Ft
1226 e Ft 4%
1300 e Ft 10%
1220 e Ft 4%
Ennek az ára
Békásmegyer átlagár
III. kerület átlagár
Budapest átlagár
66.8 M Ft m Ft
76 m Ft 12%
81.8 m Ft 18%
76.9 m Ft 13%

Az ingatlan elhelyezkedése

Cím: Budapest, III. kerület, Békásmegyer, 4. emelet

Eladó ingatlanok a környékről

III. kerület
Eladó panellakás

Budapest, III. kerület

110 M Ft
3 szoba
73 m²
XVII. kerület
Eladó téglalakás

Budapest, XVII. kerület

71.9 M Ft
2 szoba
62 m²
III. kerület
Eladó panellakás

Budapest, III. kerület

110 M Ft
3 szoba
73 m²
III. kerület
Eladó panellakás

Budapest, III. kerület

78.5 M Ft
3 szoba
66 m²
III. kerület
Eladó panellakás

Budapest, III. kerület

110 M Ft
3 szoba
73 m²
III. kerület
Eladó panellakás

Budapest, III. kerület

108 M Ft
2 + 2 szoba
67 m²
XVIII. kerület
Eladó téglalakás

Budapest, XVIII. kerület

68.5 M Ft
3 szoba
47 m²
III. kerület
Eladó panellakás

Budapest, III. kerület

110 M Ft
3 szoba
73 m²
XVI. kerület
Eladó családi ház

Budapest, XVI. kerület

349 M Ft
7 szoba
317 m²
VII. kerület
Eladó téglalakás

Budapest, VII. kerület

94.9 M Ft
3 + 1 szoba
74 m²
XX. kerület
Eladó téglalakás

Budapest, XX. kerület

59.5 M Ft
2 szoba
48 m²
XVIII. kerület
Eladó téglalakás

Budapest, XVIII. kerület

100 M Ft
3 szoba
135 m²
XX. kerület
Eladó téglalakás

Budapest, XX. kerület

55.99 M Ft
2 szoba
55 m²
III. kerület
Eladó panellakás

Budapest, III. kerület

110 M Ft
3 szoba
73 m²
III. kerület
Eladó panellakás

Budapest, III. kerület

110 M Ft
3 szoba
73 m²
XVIII. kerület
Eladó panellakás

Budapest, XVIII. kerület

62.9 M Ft
3 szoba
59 m²
VIII. kerület, Tisztviselőtelep
Eladó téglalakás

Budapest, VIII. kerület

157.9 M Ft
4 szoba
85 m²
XXIII. kerület
Eladó téglalakás

Budapest, XXIII. kerület

36 M Ft
2 szoba
35 m²
III. kerület, Békásmegyer
Eladó panellakás

Budapest, III. kerület

73.9 M Ft
1 + 2 szoba
57 m²
XIII. kerület
Eladó téglalakás

Budapest, XIII. kerület

64.9 M Ft
2 szoba
40 m²
III. kerület
Eladó panellakás

Budapest, III. kerület

110 M Ft
3 szoba
73 m²
III. kerület, Csillaghegy
Eladó panellakás

Budapest, III. kerület

94.5 M Ft
3 szoba
73 m²
XVIII. kerület
Eladó téglalakás

Budapest, XVIII. kerület

89 M Ft
3 szoba
117 m²
III. kerület, Békásmegyer
Eladó panellakás

Budapest, III. kerület

66.9 M Ft
2 szoba
51 m²

Falusi CSOK ingatlanok

Újhartyán
Eladó családi ház

Újhartyán

79.9 M Ft
3 szoba
72 m²
Halimba
Eladó családi ház

Halimba

59.9 M Ft
6 szoba
182 m²
Bernecebaráti
Eladó családi ház

Bernecebaráti

86 M Ft
4 szoba
95 m²
Szilsárkány
Eladó családi ház

Szilsárkány

39.99 M Ft
3 szoba
110 m²
Bogács
Eladó családi ház

Bogács

32.5 M Ft
4 szoba
180 m²
Herend
Eladó családi ház

Herend

114.3 M Ft
5 szoba
108 m²
Porva
Eladó családi ház

Porva

74.6 M Ft
3 szoba
115 m²
Arnót
Eladó családi ház

Arnót

34.9 M Ft
3 + 1 szoba
120 m²