Eladó panellakás
Budapest, III. kerület, 3. emelet

+ 12 kép 1/15
66 900 000 Ft66.9 M Ft 1 311 765 Ft/m2
3 szoba
51 m2
3. emelet
építés éve:1980

Részletes adatok

Fűtés: Távfűtés
Extrák: Lift
Energetikai besorolás: Nem adta meg a hirdető

Az OTP Bank lakáshitel ajánlataFizetett hirdetés

+36 1 690
Miskolci Gréta
PT Property Kft.

Érdekel az OTP Bank kedvezményes lakáshitel ajánlata? *

* A kérdésre „Igen” válasz bejelölése esetén, az „Üzenet küldése” gombra kattintva kijelentem, hogy az OTP Bank Nyrt. Adatkezelési tájékoztatójának tartalmát megismertem és tudomásul vettem.

Eladó panellakás leírása

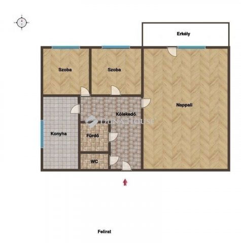
Eladó egy teljes körű panelprogram keretében felújított, 3. emeleti 51nm- es, 2+1 szobás erkélyes lakás, liftes társasházban. Az ingatlanban új nyílászárók, beépített étkezőpult és konyhaszekrény található. Az előszobából külön WC és fürdőszoba is nyílik, utóbbiban kád található. A lakás nappali+ 2 szobás, egyik szoba hálószobaként, a másik pedig tetszés szerint alakítható. A tágas nappaliból egy erkélyre léphetünk, ahonnan a parkra nyílik szép kilátás, és galambháló biztosítja a nyugalmat. A szomszédok kedvesek, és csak egy közvetlen fal szomszéd van, így a lakás igazán nyugodt környezetet biztosít. A házban új liftek találhatóak, és a bejárat kamerás megfigyeléssel, kóddal illetve chip-kártyával nyitható. A rezsi költsége alacsony, a téli hónapokban pedig szinte nem is szükséges fűteni. Az ingatlanhoz internet, kábel TV és vezetékes telefon is elérhető igény szerint. A parkolás közvetlenül a ház előtt megoldható, emellett fizetős magánparkolók is a közelben találhatóak. A lakás elhelyezkedése is kiváló: közel van a piac, boltok, a Duna-part és a Pünkösdfürdői strand. A HÉV, buszmegállók, valamint autóval a Szentendrei út és a Megyeri híd is könnyen elérhető, így gyorsan bejuthatunk akár a város központjába is. Ez az ingatlan nemcsak saját célra, hanem remek befektetési lehetőséget is kínál, hiszen könnyen kiadható, és az elhelyezkedése miatt mindig keresett lesz.

Hirdetés feltöltve: 2025. 10. 01.

3 szobás panellakások ára Budapesten

Ebből az összehasonlításból megtudhatod, hogyan viszonyul a lakás ára a környékbeli panellakások átlagos árához. Ez nem azt jelenti, hogy ennyivel olcsóbb vagy drágább, mint amennyit a lakás ér, hanem hogy ennyivel tér el a környékbeli átlagtól.

Ennek a m² ára
III. kerület m² ár
Budapest m² ár
1312 e Ft
1280 e Ft -2%
1160 e Ft -13%
Ennek az ára
III. kerület átlagár
Budapest átlagár
66.9 M Ft m Ft
82.9 m Ft 19%
74.1 m Ft 10%

Az ingatlan elhelyezkedése

Cím: Budapest, III. kerület, 3. emelet

Eladó ingatlanok a környékről

Eladó panellakás
Eladó panellakás

III. kerület

105 M Ft
3 szoba
73 m2
Eladó téglalakás
Eladó téglalakás

V. kerület, Belváros

69.9 M Ft
1 + 1 szoba
30 m2
Eladó családi ház
Eladó családi ház

XXI. kerület, Csillagtelep

69.9 M Ft
3 + 1 szoba
106 m2
Eladó panellakás
Eladó panellakás

III. kerület

105 M Ft
3 szoba
73 m2
Eladó téglalakás
Eladó téglalakás

V. kerület

143 M Ft
2 szoba
86 m2
Eladó téglalakás
Eladó téglalakás

III. kerület

91.5 M Ft
2 + 1 szoba
68 m2
Eladó panellakás
Eladó panellakás

III. kerület, Óbuda, Ágoston u 16

42.5 M Ft
2 + 1 szoba
66 m2
Eladó panellakás
Eladó panellakás

III. kerület

105 M Ft
3 szoba
73 m2
Eladó téglalakás
Eladó téglalakás

VIII. kerület, Józsefváros, Corvin sétány

123.6 M Ft
2 szoba
52 m2
Eladó panellakás
Eladó panellakás

III. kerület

105 M Ft
3 szoba
73 m2
Eladó panellakás
Eladó panellakás

III. kerület, Békásmegyer

77 M Ft
3 szoba
56 m2
Eladó panellakás
Eladó panellakás

III. kerület

105 M Ft
3 szoba
73 m2
Eladó panellakás
Eladó panellakás

III. kerület, Óbuda

110 M Ft
3 szoba
85 m2
Eladó panellakás
Eladó panellakás

III. kerület, Békásmegyer, Zemplén Győző utca

77 M Ft
3 szoba
56 m2
Eladó téglalakás
Eladó téglalakás

XXII. kerület, Nagytétény, Tenkes

54.9 M Ft
1 + 1 szoba
44 m2
Eladó téglalakás
Eladó téglalakás

III. kerület, Rómaifürdő

97 M Ft
3 szoba
61 m2
Eladó téglalakás
Eladó téglalakás

V. kerület

90 M Ft
1 szoba
28 m2
Eladó téglalakás
Eladó téglalakás

III. kerület, Törökkő, Kisbojtár 31

119.9 M Ft
3 szoba
70 m2
Eladó panellakás
Eladó panellakás

XI. kerület, Kelenföld

84.9 M Ft
3 szoba
65 m2
Eladó téglalakás
Eladó téglalakás

VIII. kerület, Palotanegyed, Bródy Sándor utca

98 M Ft
2 + 1 szoba
55 m2
Eladó családi ház
Eladó családi ház

XIX. kerület

139.9 M Ft
5 szoba
200 m2
Eladó panellakás
Eladó panellakás

III. kerület

105 M Ft
3 szoba
73 m2
Eladó panellakás
Eladó panellakás

III. kerület, Óbuda

75.5 M Ft
2 szoba
48 m2
Eladó panellakás
Eladó panellakás

III. kerület

105 M Ft
3 szoba
73 m2

Falusi CSOK ingatlanok

Eladó családi ház
Eladó családi ház

Fonyód

79.9 M Ft
7 szoba
149 m2
Eladó családi ház
Eladó családi ház

Jászkarajenő

11 M Ft
2 szoba
52 m2
Eladó családi ház
Eladó családi ház

Homokbödöge

49.9 M Ft
4 + 1 szoba
167 m2
Eladó családi ház
Eladó családi ház

Táborfalva

119.723 M Ft
5 szoba
105 m2
Eladó családi ház
Eladó családi ház

Somogygeszti

38.6 M Ft
3 + 1 szoba
98 m2
Eladó családi ház
Eladó családi ház

Nagyszénás, Zrínyi

8.5 M Ft
3 szoba
94 m2
Eladó családi ház
Eladó családi ház

Hajós

63 M Ft
3 szoba
210 m2
Eladó családi ház
Eladó családi ház

Váckisújfalu

40 M Ft
2 szoba
62 m2